Renovated apartment with balcony in a period building in Sant Antoni
Property description
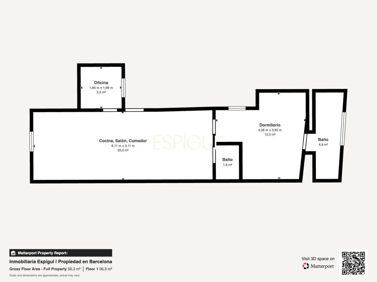
The property is functionally distributed into a spacious and bright living-dining room with direct access to a balcony, a fully equipped integrated kitchen, two bedrooms (one double with an en-suite bathroom and one single), and a guest toilet.
The property stands out for its great luminosity thanks to its orientation towards a wide avenue, as well as the preservation of original elements such as high ceilings with Catalan vaults, which provide character and architectural value. Regarding quality and equipment, it features split air conditioning, individual heating via radiators, and aluminum exterior carpentry with Climalit double glazing, ensuring thermal and acoustic comfort.
The location is unbeatable, with excellent public transport connections: metro lines L1 (Rocafort and Urgell), L2 (Sant Antoni), and L3 (Poble Sec), as well as multiple bus lines (including the Aerobús) and proximity to the train station at Plaça Espanya. The immediate surroundings offer all types of services: health centers, schools, universities, children’s areas, and a wide range of shops.
Sant Antoni is one of Barcelona’s neighborhoods with the greatest potential, recognized for its quality of life, dynamism, and gastronomic and commercial offerings. Highlights include the emblematic Sant Antoni Market and its proximity to key points in the city such as the renovated Plaza de España and the Las Arenas shopping center.
An ideal opportunity for both a primary residence and an investment in one of the most sought-after areas of Barcelona.
- Built 65 m2
- Bedrooms 2
- Bathrooms 2
- Heating Gas natural
- Air conditioning
- Terraces 4.00 m2
- Energy certification E
Property location
Similar properties
Interested? Schedule a call
If you would like more information about this property, please fill out all the fields in the form
Please provide your details, and an advisor will contact you to provide more information
Message sent
Thanks for contacting Espígul
The team will review your request, and an advisor will get in touch with you soon