Centro, Madrid, Madrid

Duplex apartment with terrace on Calle Barquillo, Chueca-Justicia

1.060.000 €
77m2
1
2
E

Property description

Located on the prestigious Calle Barquillo, in the heart of the Salesas neighborhood, this duplex penthouse with two terraces offers a unique residential experience in one of the most vibrant and sophisticated areas of Madrid. The property, situated on a fourth floor, merges the historic character of the center with a modern interior, full of light and designed for comfort.

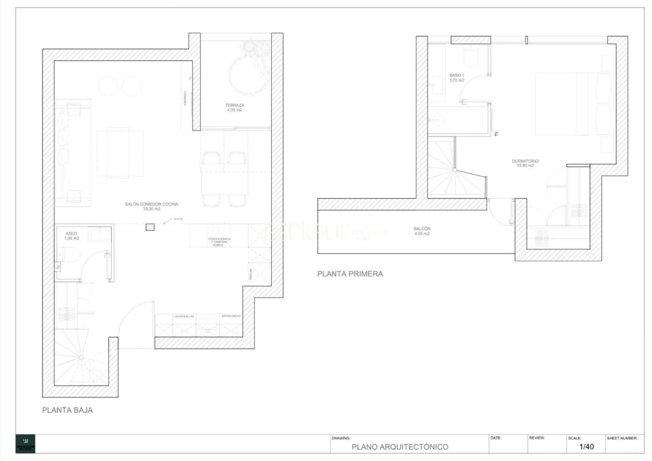
The first floor is presented as an open and fluid space where the living-dining room and the integrated kitchen coexist, creating a spacious, practical, and welcoming environment. The large windows bathe the room in natural light and open onto a private terrace, a perfect extension to enjoy the outdoors, have a quiet breakfast, or share moments in an intimate and serene setting. On this level, there is also a guest toilet that adds functionality to everyday life.

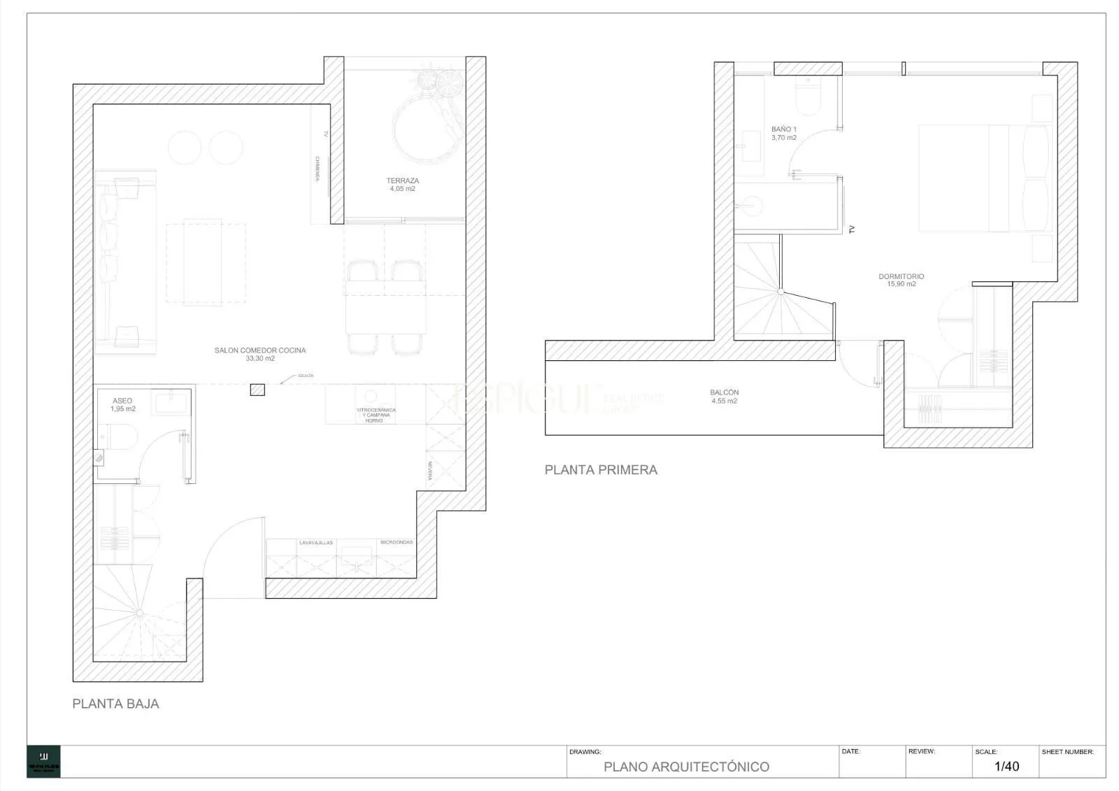
The upper floor is entirely dedicated to rest and privacy. The master bedroom, bright and carefully designed, has an en-suite bathroom and direct access to the second terrace, an elevated outdoor space that becomes an authentic urban refuge, ideal for disconnecting or enjoying the views of the neighborhood.

The entire property stands out for its warmth, the quality of the materials, and a distribution that takes advantage of every corner, making it an ideal option both as a permanent residence and for those looking for an exclusive property in the center of Madrid.

Living on Calle Barquillo means being part of an environment full of life, design, and creativity. Surrounded by boutiques, art galleries, charming cafes, and renowned restaurants, this penthouse is located a few steps from Chueca, Recoletos, and Alonso Martínez, connecting the tranquility of an elegant home with the energy of one of the most valued neighborhoods in the city. A perfect balance between style, comfort, and location.

  • Built 77 m2
  • Bedrooms 1
  • Bathrooms 2
  • Heating Gas natural
  • Air conditioning
  • Lift
  • Energy certification E

Property location

Ref 4643

Interested?

Similar properties

Madrid

Exclusive 3-Bedroom, 3-Bathroom Apartment in Sol

Surface 112 m2
Bedrooms 3
Bathrooms 3
Madrid

Exterior apartment for sale in Pelayo, Justicia

Surface 128 m2
Bedrooms 3
Bathrooms 3
Madrid

Renovated apartment for sale in Plaza Dos de Mayo, Malasaña

Surface 158 m2
Bedrooms 3
Bathrooms 3