Villa de lujo con impresionantes vistas al mar en Cabrils, Maresme
Descripción de la propiedad
Una casa pensada para quienes valoran la privacidad, la amplitud de espacios, la calidad constructiva y unas vistas incomparables al mar Mediterráneo. La vivienda, de estilo moderno y líneas elegantes, se alza sobre una gran parcela de 1.489 m² completamente ajardinada, con una vegetación cuidada al detalle, diversos espacios para el descanso y el entretenimiento, y una espectacular piscina desbordante con zona solárium, ideal para disfrutar del buen clima todo el año.
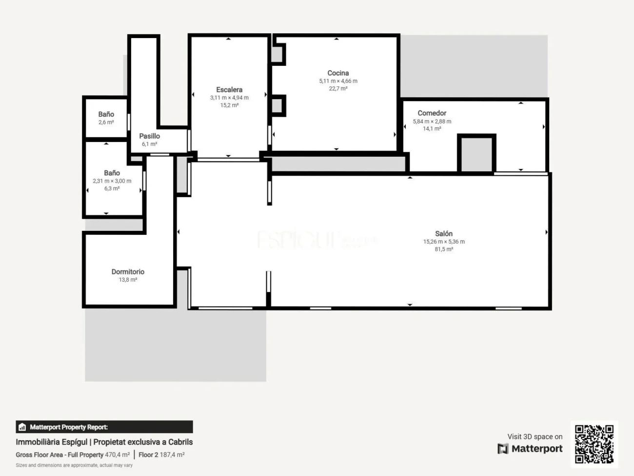
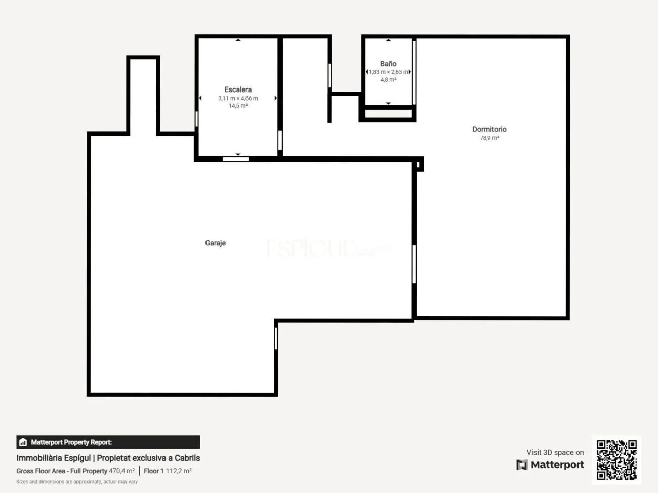
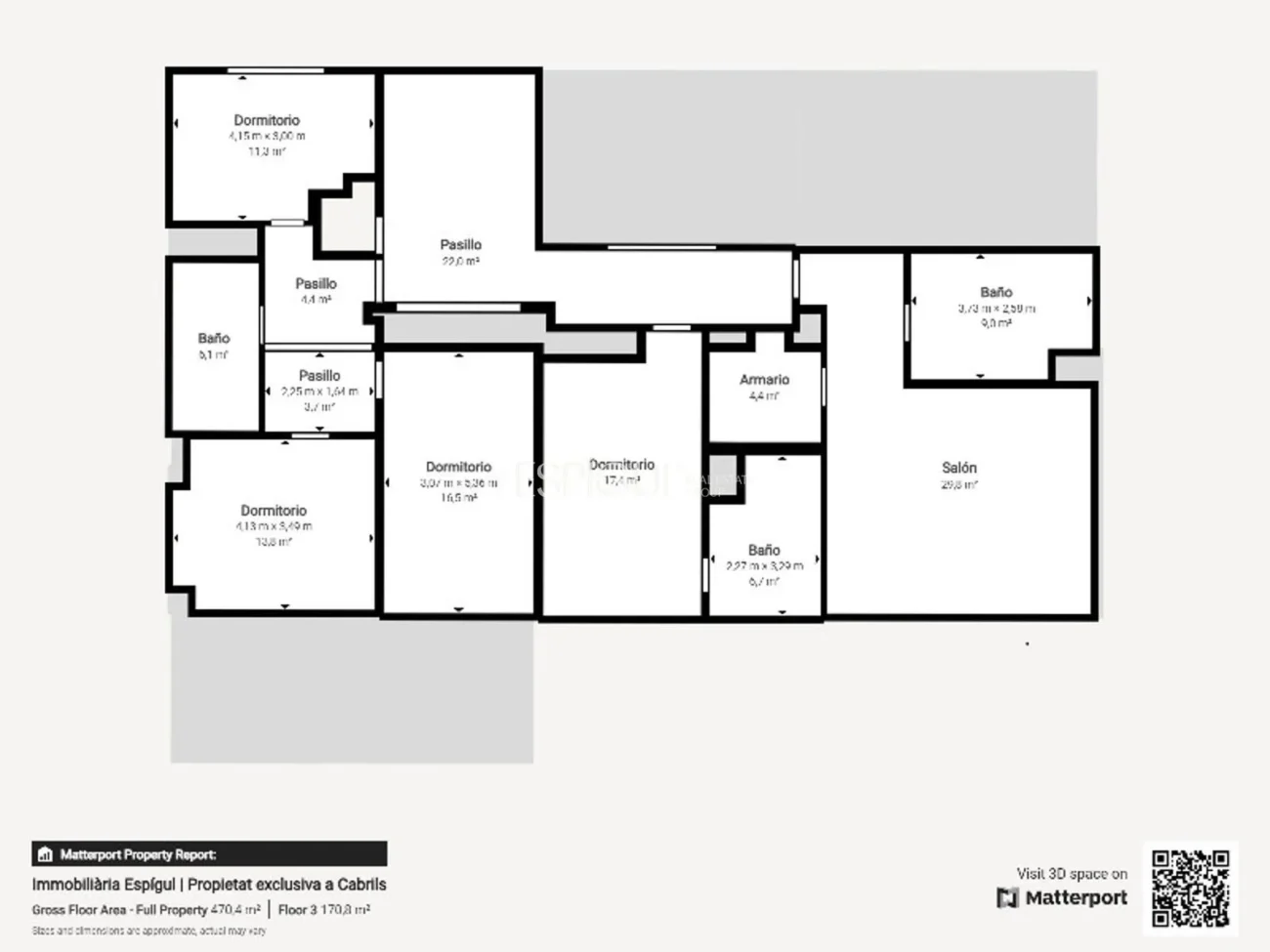
La casa cuenta con 786 m² construidos distribuidos en tres niveles conectados por un moderno ascensor panorámico de acero inoxidable. Cada rincón de esta propiedad ha sido diseñado para proporcionar bienestar, luz natural y máxima funcionalidad.
Planta principal: amplitud, luz y conexión con el exterior
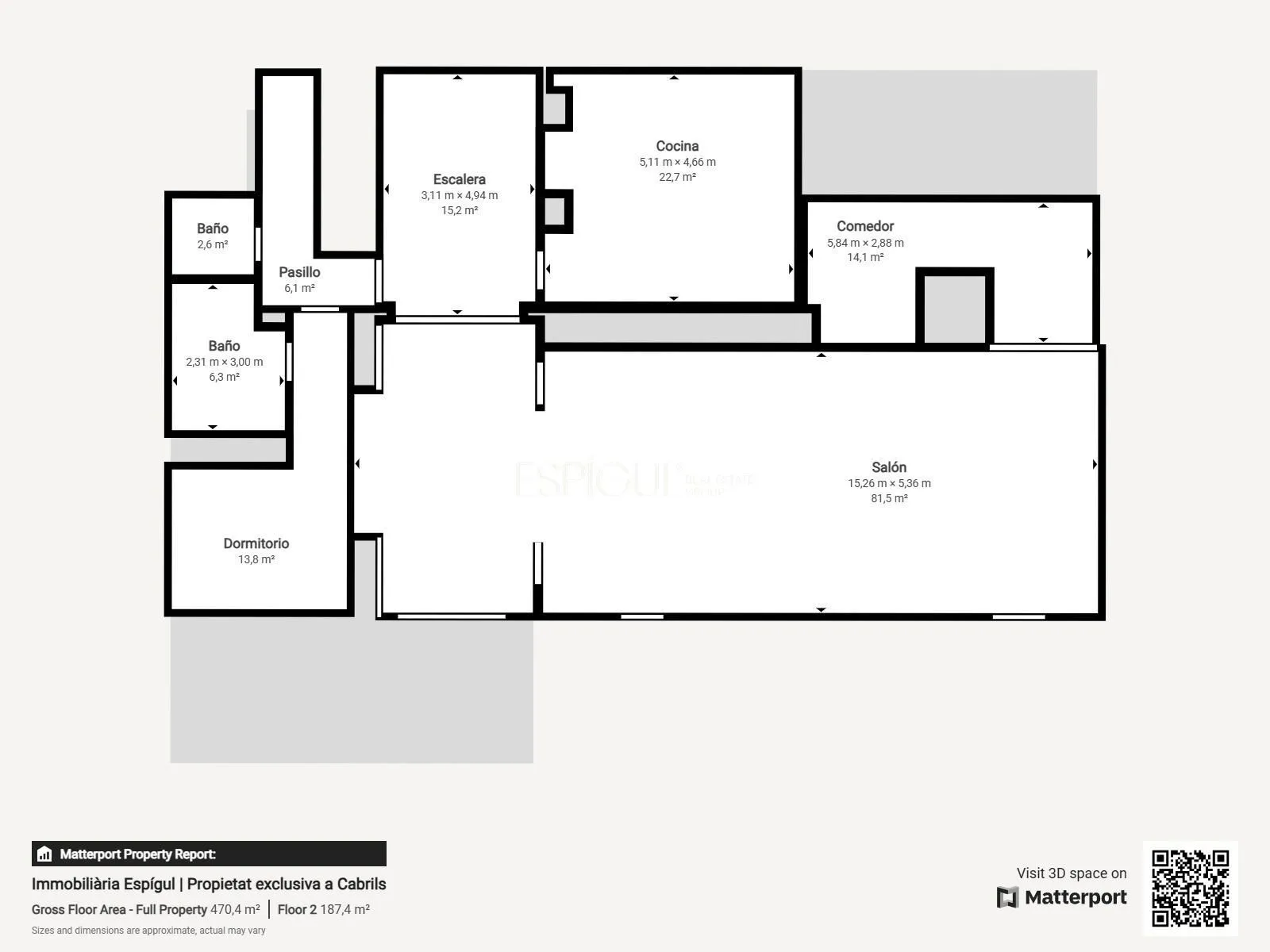
Accedemos a la vivienda a través de un elegante recibidor que da paso a un impresionante salón-comedor con grandes ventanales que integran el interior con el jardín, permitiendo disfrutar de las vistas desde cualquier ángulo. La cocina, de grandes dimensiones y completamente equipada con electrodomésticos de alta gama, es perfecta tanto para el día a día como para organizar reuniones familiares o con amigos. Esta planta cuenta además con una habitación tipo suite ideal para invitados o para despacho, y una práctica zona de lavandería independiente.
Primera planta: zona de noche privada con vistas espectaculares
En el nivel superior se sitúa la zona de descanso, presidida por una majestuosa master suite con baño completo, vestidor de ensueño y acceso a una terraza privada con vistas panorámicas al mar. A esta estancia la acompañan otra suite completa, dos habitaciones dobles adicionales (una de ellas actualmente reconvertida en vestidor), y un cuarto de baño completo.
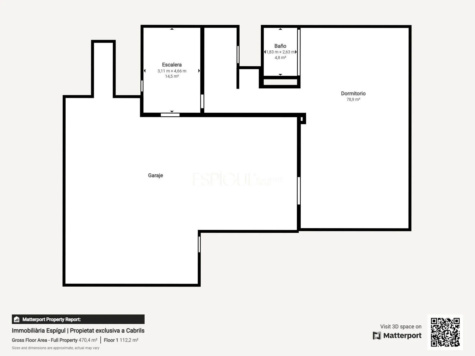
Planta subterránea: zona de bienestar y garaje
El sótano es otro de los grandes atractivos de la casa. Aquí encontramos una elegante sala polivalente con chimenea, perfecta para cine en casa, reuniones o zona de juegos, además de una exclusiva área wellness con jacuzzi para seis personas, sauna y baño completo. La planta se completa con un amplio garaje con capacidad para hasta seis vehículos.
Calidades y equipamiento premium
La propiedad ha sido construida con materiales de primer nivel: carpintería de aluminio con doble acristalamiento, climatización por aire acondicionado y calefacción, suelos de alta resistencia, sistema de alarma, y una excelente eficiencia energética que permite un consumo reducido sin renunciar al confort.
Ubicación privilegiada en Cabrils
Cabrils es uno de los pueblos más codiciados del Maresme por su calidad de vida, su entorno natural, su excelente gastronomía y su proximidad a Barcelona. Vivir aquí es disfrutar de un entorno tranquilo, seguro y exclusivo, con todos los servicios al alcance: colegios internacionales, centros deportivos, comercios y acceso rápido a la autopista y transporte público.
Una propiedad única y exclusiva para quienes buscan lo mejor.
No dejes escapar esta joya inmobiliaria. Contáctanos y descubre en persona la casa de tus sueños.
- Construido 786 m2
- Dormitorios 6
- Baños 6
- Calefacción Gas natural
- Aire acondicionado
- Certificación energética B
Ubicación de la propiedad
¿Interesado/a? Programar una llamada
Si deseas obtener más información sobre esta propiedad, por favor completa todos los campos del formulario
Por favor, proporciona tus datos y un asesor se pondrá en contacto contigo para brindarte más información
Mensaje enviado
Gracias por contactar con Espígul
El equipo revisará su solicitud y un asesor se pondrá en contacto con usted pronto