Maresme, Cabrils

Villa de luxe amb impressionants vistes al mar a Cabrils, Maresme

3.500.000 €
12.500 € / mes
786m2
6
6
B

Descripció de la propietat

Una casa pensada per a qui valora la privacitat, l’amplitud d’espais, la qualitat constructiva i unes vistes incomparables al mar Mediterrani. L’habitatge, d’estil modern i línies elegants, s’alça sobre una gran parcel·la de 1.489 m² completament enjardinada, amb una vegetació cuidada al detall, diversos espais per al descans i l’entreteniment, i una espectacular piscina desbordant amb zona solàrium, ideal per gaudir del bon clima tot l’any.

La casa compta amb 786 m² construïts distribuïts en tres nivells connectats per un modern ascensor panoràmic d’acer inoxidable. Cada racó d’aquesta propietat ha estat dissenyat per proporcionar benestar, llum natural i màxima funcionalitat.

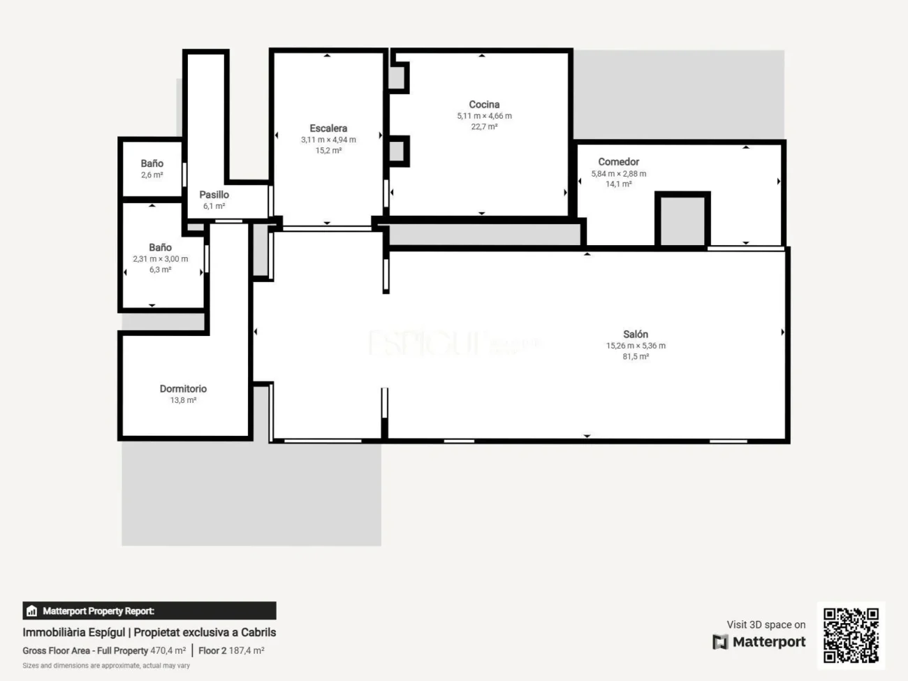
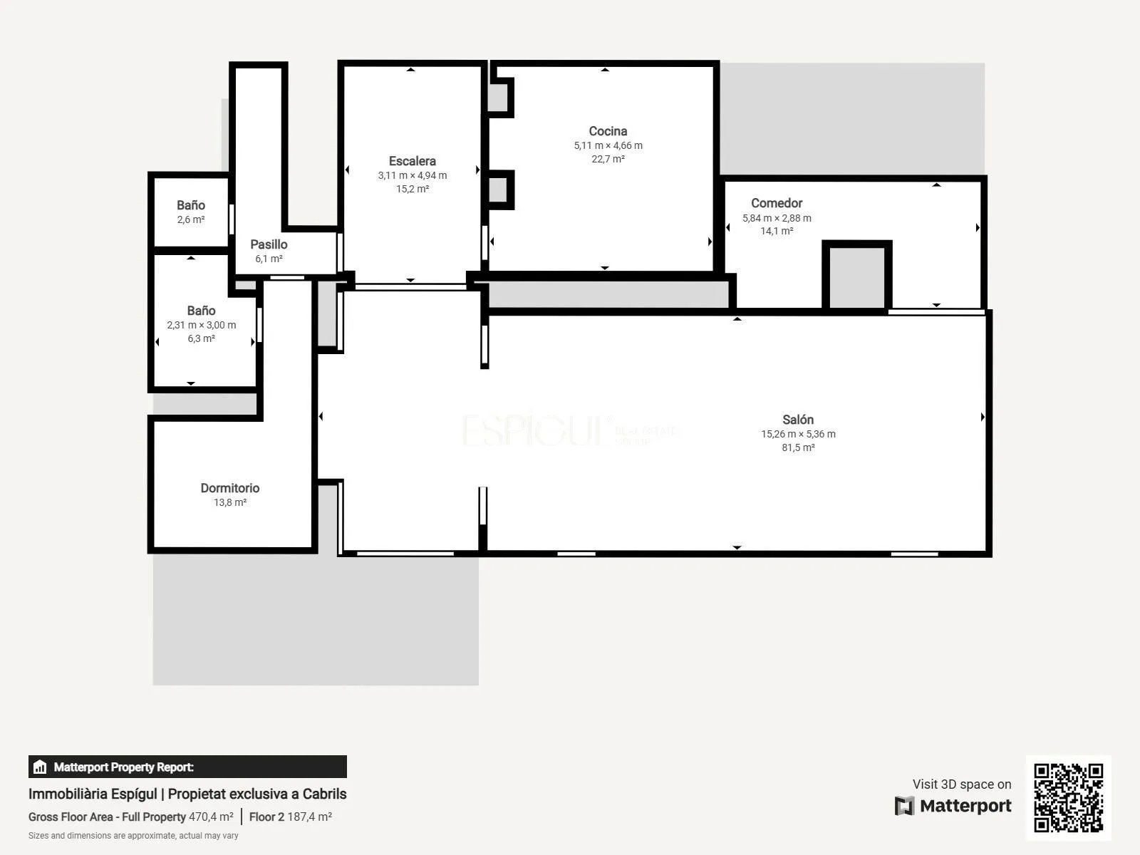
Planta principal: amplitud, llum i connexió amb l’exterior

Accedim a l’habitatge a través d’un elegant rebedor que dona pas a un impressionant saló-menjador amb grans finestrals que integren l’interior amb el jardí, permetent gaudir de les vistes des de qualsevol angle. La cuina, de grans dimensions i completament equipada amb electrodomèstics d’alta gamma, és perfecta tant per al dia a dia com per organitzar reunions familiars o amb amics. Aquesta planta compta a més amb una habitació tipus suite ideal per a convidats o per a despatx, i una pràctica zona de bugaderia independent.

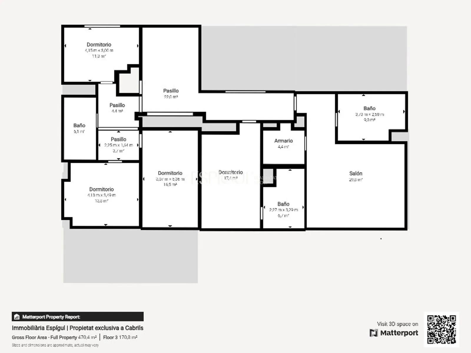
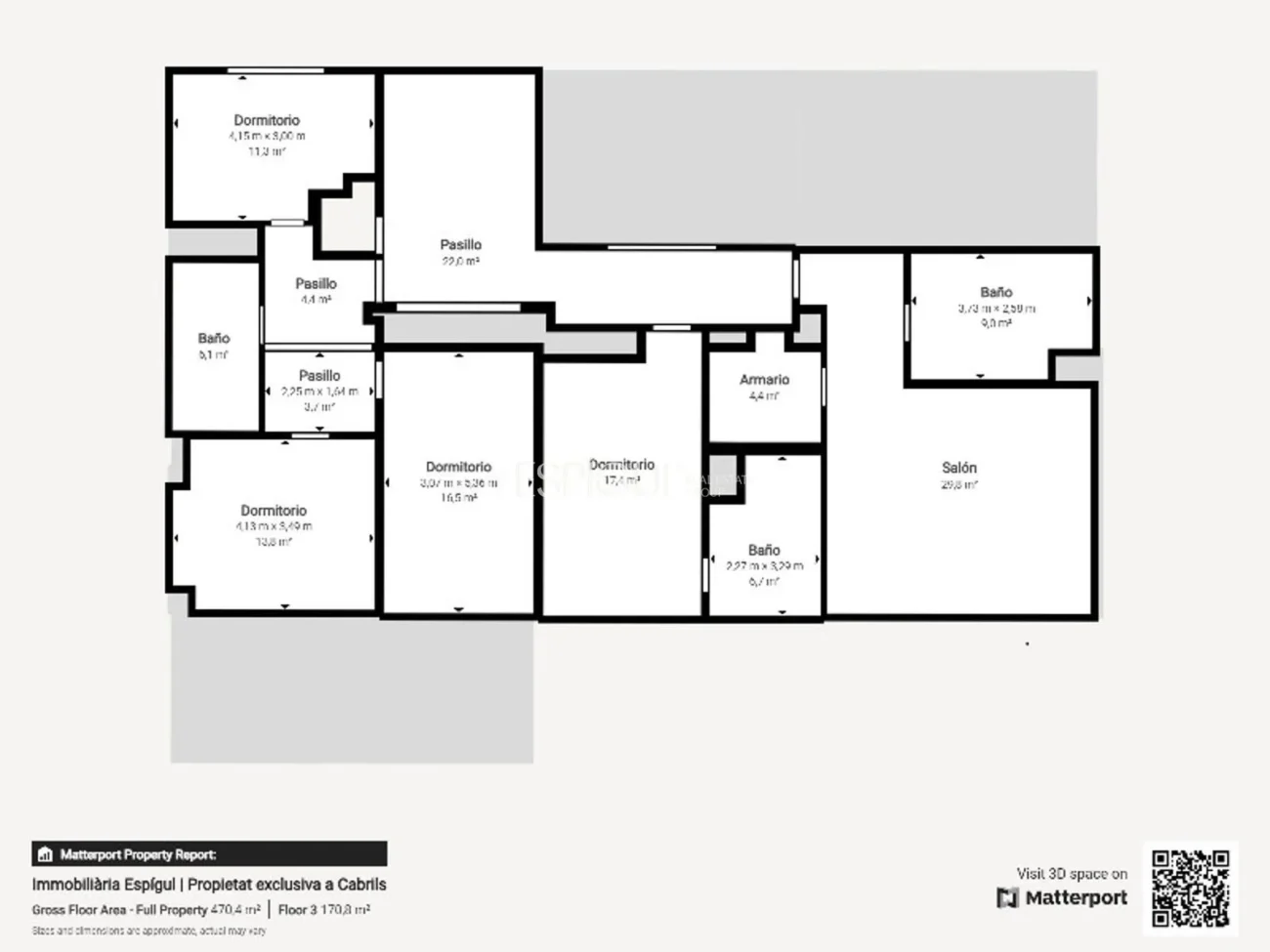
Primera planta: zona de nit privada amb vistes espectaculars

Al nivell superior se situa la zona de descans, presidida per una majestuosa master suite amb bany complet, vestidor de somni i accés a una terrassa privada amb vistes panoràmiques al mar. A aquesta estança l’acompanyen una altra suite completa, dues habitacions dobles addicionals (una d’elles actualment reconvertida en vestidor), i un quart de bany complet.

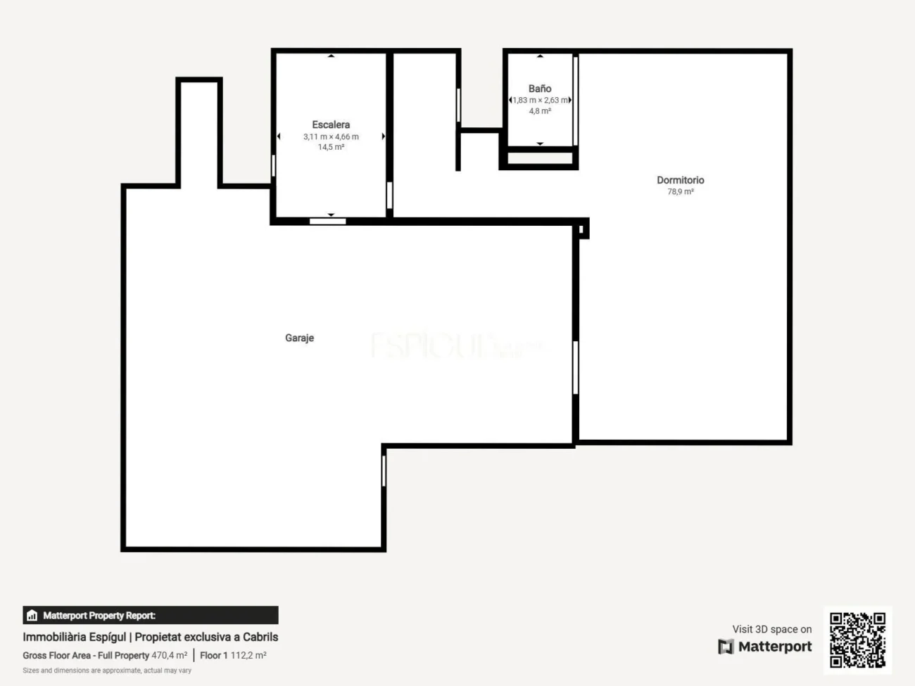
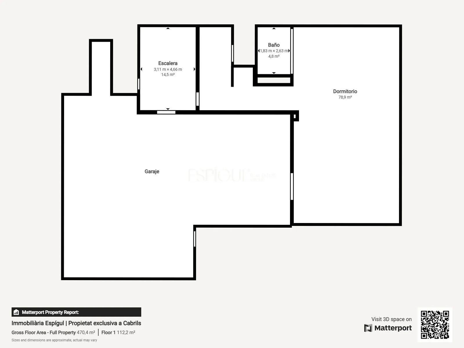
Planta subterrània: zona de benestar i garatge

El soterrani és un altre dels grans atractius de la casa. Aquí trobem una elegant sala polivalent amb xemeneia, perfecta per a cinema a casa, reunions o zona de jocs, a més d’una exclusiva àrea wellness amb jacuzzi per a sis persones, sauna i bany complet. La planta es completa amb un ampli garatge amb capacitat per a fins a sis vehicles.

Qualitats i equipament premium

La propietat ha estat construïda amb materials de primer nivell: fusteria d’alumini amb doble envidrat, climatització per aire condicionat i calefacció, terres d’alta resistència, sistema d’alarma, i una excel·lent eficiència energètica que permet un consum reduït sense renunciar al confort.

Ubicació privilegiada a Cabrils

Cabrils és un dels pobles més cobejats del Maresme per la seva qualitat de vida, el seu entorn natural, la seva excel·lent gastronomia i la seva proximitat a Barcelona. Viure aquí és gaudir d’un entorn tranquil, segur i exclusiu, amb tots els serveis a l’abast: col·legis internacionals, centres esportius, comerços i accés ràpid a l’autopista i transport públic.

Una propietat única i exclusiva per a qui busca el millor.

No deixis escapar aquesta joia immobiliària. Contacta’ns i descobreix en persona la casa dels teus somnis.

  • Construïts 786 m2
  • Habitacions 6
  • Banys 6
  • Calefacció Gas natural
  • Aire condicionat
  • Certificació energètica B

Ubicació de la propietat

Ref 4138

T’interessa?

Propietats similars

Teià

Casa de 5 habitacions amb jardí i piscina comunitària a Teià

Superfície 294 m2
Habitacions 5
Banys 3
Maresme

Exclusiva casa unifamiliar d’obra nova a Can Quirze, Mataró

Superfície 323 m2
Habitacions 4
Banys 4
Maresme

Casa adossada completament exterior, 5 habitacions i vistes al mar a Montgat

Superfície 379 m2
Habitacions 5
Banys 4