Espígul Real Estate presenta este exclusivo loft en planta baja con terraza privada, una oportunidad poco común en Poble-sec tanto para quien busca una futura vivienda con personalidad como para inversores que priorizan ubicación y potencial de revalorización.
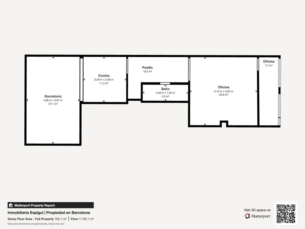
La propiedad dispone de 103 m² construidos según Catastro y una agradable terraza privada de 10 m², un valor diferencial en esta tipología. Se ubica en una finca en buen estado en una zona urbana plenamente consolidada, con todos los servicios, comercios, oferta gastronómica y excelentes comunicaciones.
Reformado integralmente en 2018, el inmueble se encuentra en muy buen estado de conservación y se comercializa amueblado y equipado. Su distribución destaca por la amplitud de espacios, la altura de techos y su carácter funcional, con dos ambientes claramente diferenciados:
La zona frontal, con acceso directo desde la calle, ofrece techos de 3,5–3,8 m, buena luz natural y acondicionamiento acústico. Un espacio ideal como despacho profesional, estudio creativo, zona de trabajo o dormitorio adicional.
La zona posterior concentra el uso residencial con salón-comedor, cocina abierta integrada, dormitorio tipo loft y salida directa a la terraza interior, que aporta tranquilidad y confort.
Actualmente la vivienda se encuentra arrendada y generando ingresos, con previsión de disponibilidad en el corto/medio plazo. Esto permite al comprador combinar rentabilidad inicial con planificación de uso futuro como vivienda habitual o reposicionamiento del activo.
Además, existe viabilidad para redistribuir y crear una segunda habitación y un segundo baño, lo que incrementaría notablemente funcionalidad y valor de mercado.
Ubicado a pocos minutos de Plaza España, Montjuïc y el centro de la ciudad, en un entorno con demanda sostenida, este inmueble reúne ubicación, singularidad y potencial.
Una propiedad con carácter y recorrido de valor en una de las zonas más dinámicas de Barcelona.
Per oferir les millors experiències, utilitzem tecnologies com ara galetes per emmagatzemar i/o accedir a la informació del dispositiu. Donar el consentiment a aquestes tecnologies ens permetrà processar dades com ara el comportament de navegació o identificadors únics en aquest lloc. No consentir o retirar el consentiment, pot afectar negativament determinades característiques i funcions.
Funcional
Siempre activo
The technical storage or access is strictly necessary for the legitimate purpose of enabling the use of a specific service explicitly requested by the subscriber or user, or for the sole purpose of carrying out the transmission of a communication over an electronic communications network.
Preferències
The technical storage or access is necessary for the legitimate purpose of storing preferences that are not requested by the subscriber or user.
Estadístiques
The technical storage or access that is used exclusively for statistical purposes.The technical storage or access that is used exclusively for anonymous statistical purposes. Without a subpoena, voluntary compliance on the part of your Internet Service Provider, or additional records from a third party, information stored or retrieved for this purpose alone cannot usually be used to identify you.
Màrqueting
The technical storage or access is required to create user profiles to send advertising, or to track the user on a website or across several websites for similar marketing purposes.