Castell-Platja d'Aro, Costa Brava

Exclusiva vivienda entre Platja d’Aro y Calonge

690.000 €
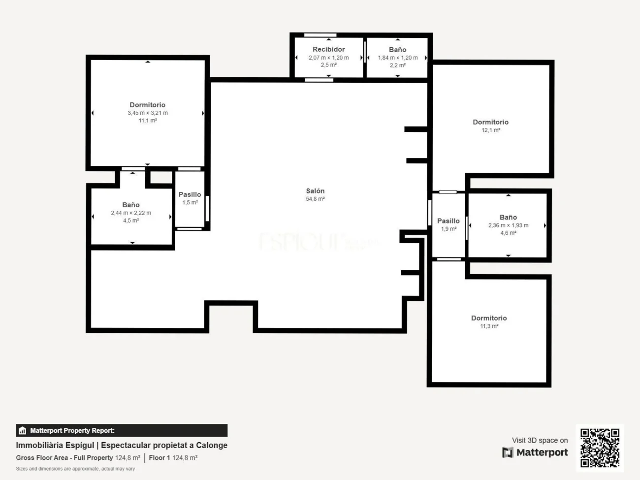
173m2
3
2
En trámite

Descripción de la propiedad

Ubicada en una de las zonas más exclusivas y cotizadas de Platja d’Aro y Calonge, esta magnífica vivienda ofrece una combinación ideal de tranquilidad, confort y proximidad a las mejores playas de la Costa Brava. A solo 5 minutos a pie de las calas Cap Roig y Belladona, y a 15 minutos caminando del centro de Platja d’Aro, esta propiedad se presenta como una excelente oportunidad tanto para residencia habitual como para segunda residencia o inversión.

La casa cuenta con tres luminosas habitaciones, una cocina independiente, un amplio salón comedor con acceso directo a la terraza, dos baños completos y un jardín privado equipado con zona de barbacoa. Desde la propiedad se disfrutan de unas vistas espectaculares, ideales para relajarse y disfrutar de la naturaleza. La vivienda destaca por su luminosidad, su excelente orientación y su ubicación privilegiada, con todos los servicios al alcance.

La urbanización en la que se encuentra goza de gran prestigio por su tranquilidad, privacidad y el alto nivel de las propiedades que la componen, convirtiéndose en una de las áreas residenciales más valoradas de la Costa Brava.

Además, está perfectamente comunicada: a tan solo 35 minutos en coche de Girona y su aeropuerto, y a aproximadamente 1 hora y 15 minutos de Barcelona, lo que facilita los desplazamientos tanto nacionales como internacionales.

Una propiedad lista para entrar a vivir, en un enclave único, ideal para quienes buscan exclusividad y calidad de vida.

  • Construido 173 m2
  • Dormitorios 3
  • Baños 2
  • Calefacción Eléctrica
  • Certificación energética En trámite

Ubicación de la propiedad

Ref 4140

¿Interesado/a?

Propiedades similares

Costa Brava

Exclusivo chalet en el golf del Masnou

Superficie 397 m2
Dormitorios 4
Baños 4
Costa Brava

Exclusivo chalet en el golf del Masnou

Superficie 385 m2
Dormitorios 5
Baños 3
Costa Brava

Amplia casa reformada de 6 habitaciones con jardín en Palafrugell

Superficie 318 m2
Dormitorios 6
Baños 4
Llámanos WhatsApp Más información