Sant Feliu De Guixols, Costa Brava

Encantadora casa de pueblo a pocos pasos del mar en Sant Feliu de Guíxols

395.000 €
144m2
4
3
E

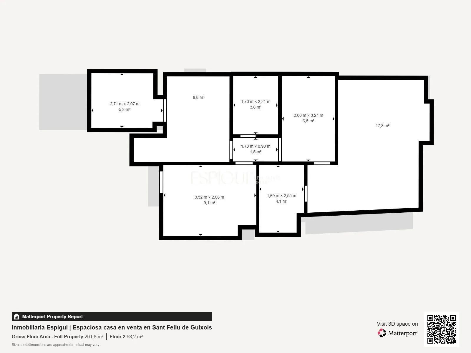
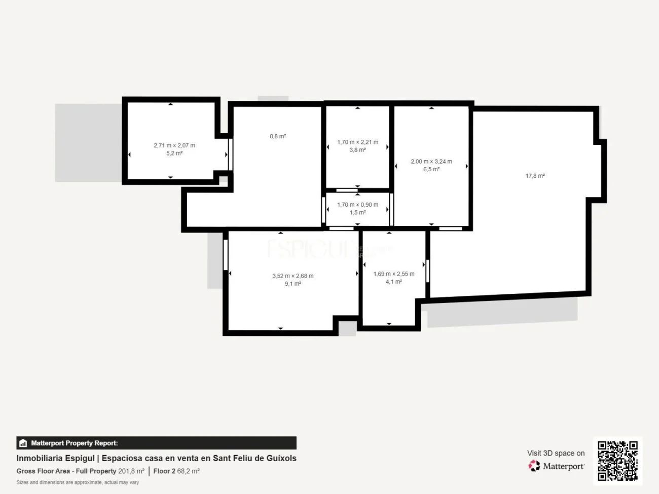
Descripción de la propiedad

Encantadora casa de pueblo de 144 m² en excelente ubicación, a solo 3-4 minutos a pie del paseo marítimo y la playa de Sant Feliu de Guíxols. En muy buen estado, combina el encanto tradicional con una distribución práctica en tres plantas.

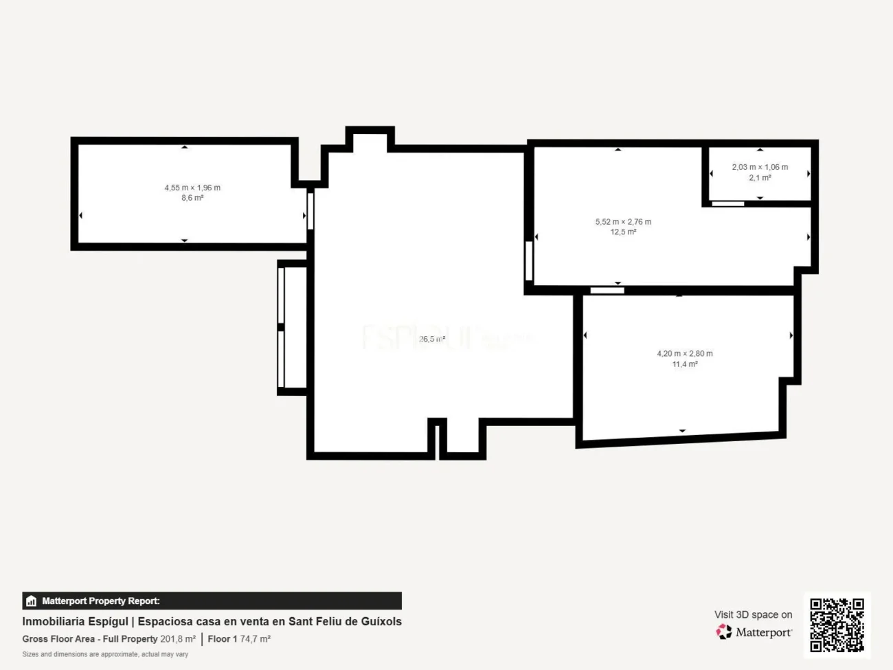
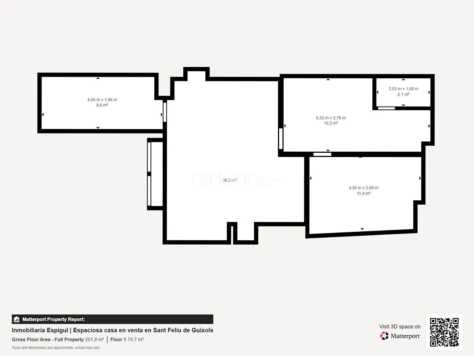
En la planta baja cuenta con salón comedor con chimenea, cocina independiente, un dormitorio, baño completo y acceso a un bonito patio de 27 m² ideal para disfrutar al aire libre. En la primera planta se encuentran tres dormitorios, incluyendo una suite principal con baño privado y dos habitaciones con salida a balcón y terraza que comparten otro baño completo.

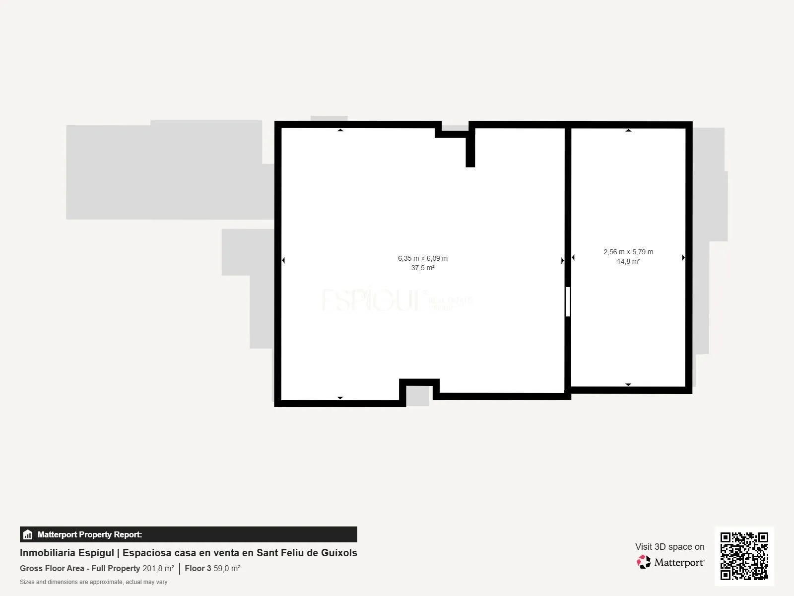
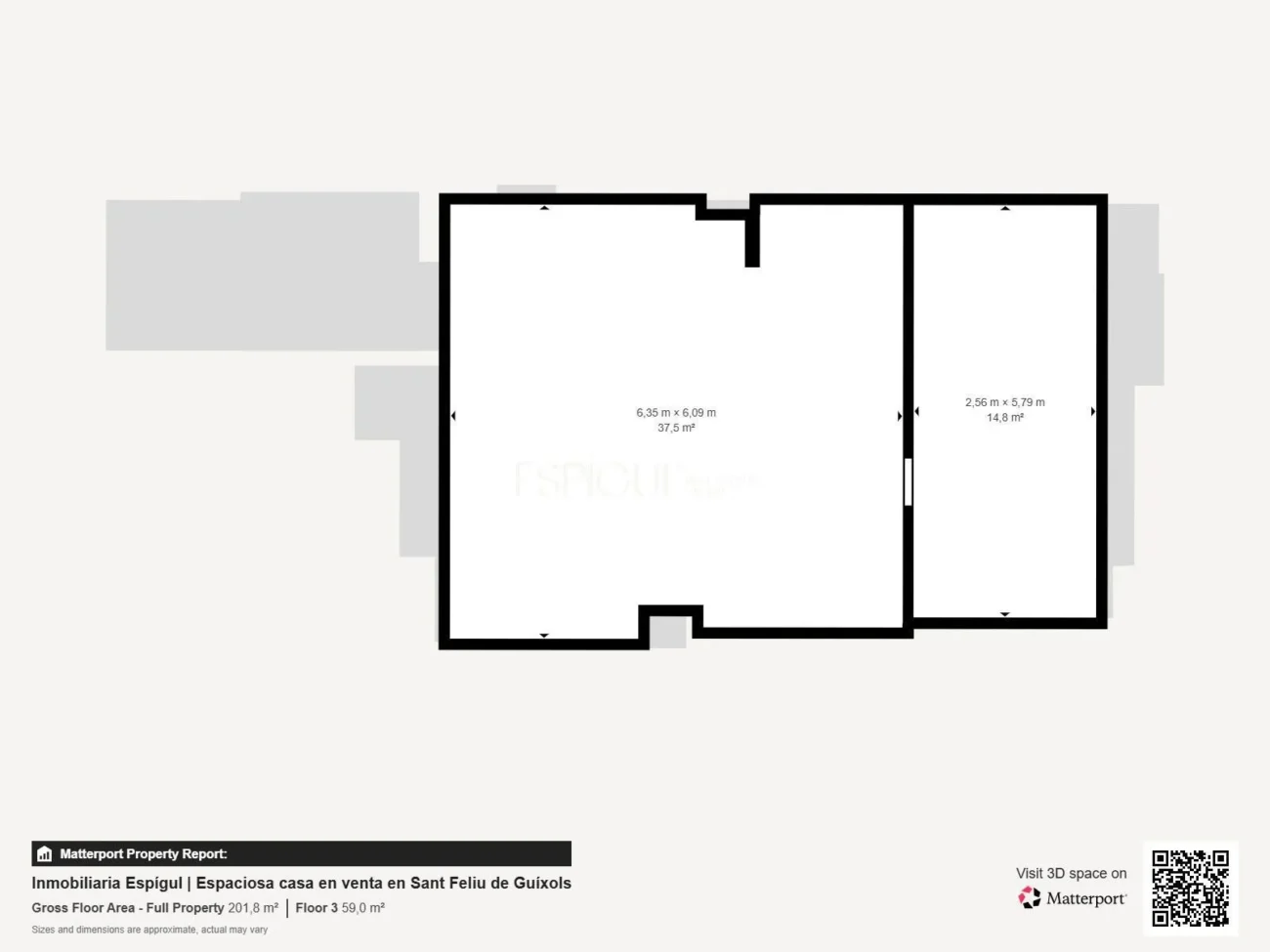
La última planta ofrece una amplia sala abuhardillada con luz natural, perfecta como zona de juegos, despacho o chill out, además de una semihabitación que puede usarse como vestidor o trastero.

Una vivienda con mucho encanto, perfecta para vivir cerca del mar o disfrutar como segunda residencia en la Costa Brava. Excelente ubicación, a solo 30 min del aeropuerto de Girona y a 1 hora de Barcelona.

  • Construido 144 m2
  • Dormitorios 4
  • Baños 3
  • Calefacción Gas natural
  • Certificación energética E

Ubicación de la propiedad

Ref 4347

¿Interesado/a?

Propiedades similares

Costa Brava

Fantástica casa en Port Salvi, Sant Feliu de Guíxols

Superficie 132 m2
Dormitorios 4
Baños 3
Costa Brava

Encantadora casa de pueblo con jardín y garaje en el corazón de Gualta

Superficie 310 m2
Dormitorios 5
Baños 4
Costa Brava

Casa independiente en Urbanización Rosamar

Superficie 211 m2
Dormitorios 3
Baños 2
Llámanos WhatsApp Más información