Exclusiva vivienda entre Platja d’Aro y Calonge
Descripción de la propiedad
Ubicada en una de las zonas más exclusivas y cotizadas de Platja d’Aro y Calonge, esta magnífica vivienda ofrece una combinación ideal de tranquilidad, confort y proximidad a las mejores playas de la Costa Brava. A solo 5 minutos a pie de las calas Cap Roig y Belladona, y a 15 minutos caminando del centro de Platja d’Aro, esta propiedad se presenta como una excelente oportunidad tanto para residencia habitual como para segunda residencia o inversión.
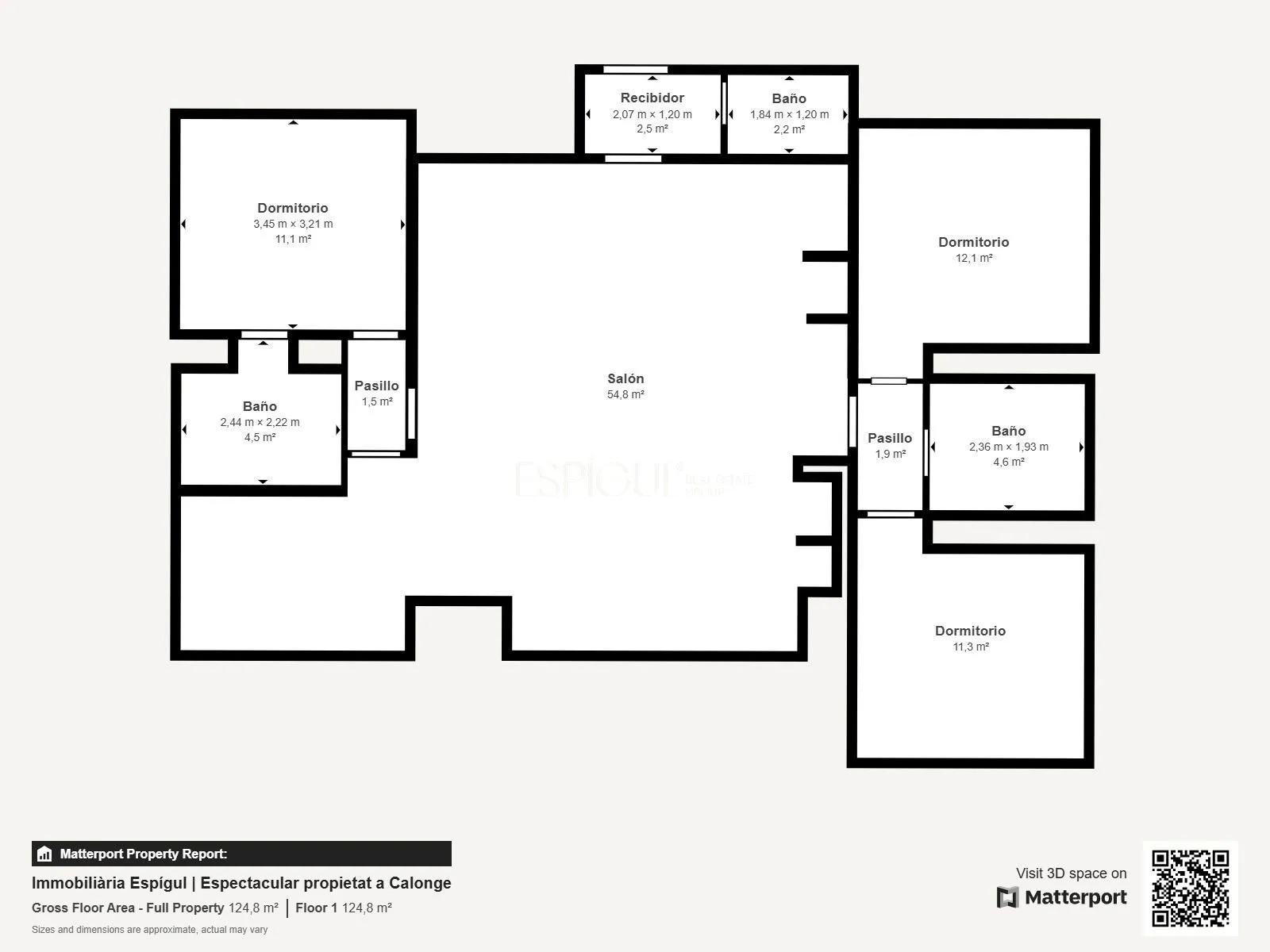
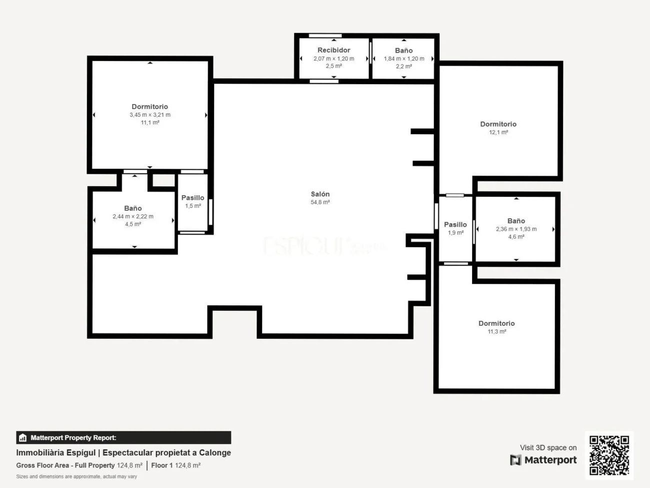
La casa cuenta con tres luminosas habitaciones, una cocina independiente, un amplio salón comedor con acceso directo a la terraza, dos baños completos y un jardín privado equipado con zona de barbacoa. Desde la propiedad se disfrutan de unas vistas espectaculares, ideales para relajarse y disfrutar de la naturaleza. La vivienda destaca por su luminosidad, su excelente orientación y su ubicación privilegiada, con todos los servicios al alcance.
La urbanización en la que se encuentra goza de gran prestigio por su tranquilidad, privacidad y el alto nivel de las propiedades que la componen, convirtiéndose en una de las áreas residenciales más valoradas de la Costa Brava.
Además, está perfectamente comunicada: a tan solo 35 minutos en coche de Girona y su aeropuerto, y a aproximadamente 1 hora y 15 minutos de Barcelona, lo que facilita los desplazamientos tanto nacionales como internacionales.
Una propiedad lista para entrar a vivir, en un enclave único, ideal para quienes buscan exclusividad y calidad de vida.
- Construido 173 m2
- Dormitorios 3
- Baños 2
- Calefacción Eléctrica
- Certificación energética En trámite
Ubicación de la propiedad
Propiedades similares
Exclusivo chalet en el golf del Masnou
Exclusivo chalet en el golf del Masnou
¿Interesado/a? Programar una llamada
Si deseas obtener más información sobre esta propiedad, por favor completa todos los campos del formulario
Por favor, proporciona tus datos y un asesor se pondrá en contacto contigo para brindarte más información
Mensaje enviado
Gracias por contactar con Espígul
El equipo revisará su solicitud y un asesor se pondrá en contacto con usted pronto