Casa con licencia turística, dos viviendas independientes, piscina privada y espectaculares vistas al mar en Santa Susanna
Descripción de la propiedad
Presentamos esta singular propiedad en Santa Susanna, que destaca por sus vistas despejadas al mar y a la montaña, su excelente luminosidad y sus amplios espacios exteriores, ideales para disfrutar del sol y de los atardeceres. La finca dispone de dos viviendas totalmente independientes, lo que la convierte en una opción idónea para familias numerosas, convivencia intergeneracional o como inversión de alta versatilidad, al contar con licencia turística.
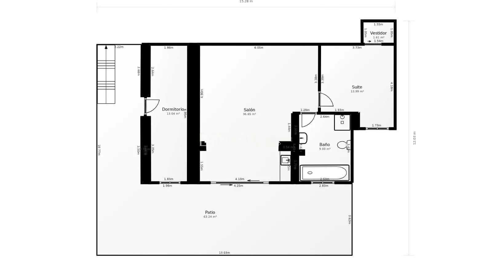
La planta superior alberga la vivienda principal, formada por una cocina americana integrada en el salón-comedor, un espacio amplio y muy luminoso gracias a un gran ventanal que da acceso directo a una terraza de grandes dimensiones, con vistas abiertas al mar. En esta planta se distribuyen tres dormitorios (dos dobles y uno individual) y dos baños completos, uno con bañera y otro con plato de ducha.
La planta baja alberga la segunda vivienda, concebida como un espacio cómodo y bien resuelto. Destaca su salón-comedor con cocina abierta, amplio y elegante, que incorpora una vinoteca y cuenta con salida directa a una generosa terraza, aportando funcionalidad y carácter al conjunto. La vivienda dispone de un dormitorio doble con vestidor independiente y un baño completo equipado con ducha y bañera de hidromasaje. Además, existe una sala contigua ideal como despacho, gimnasio o taller.
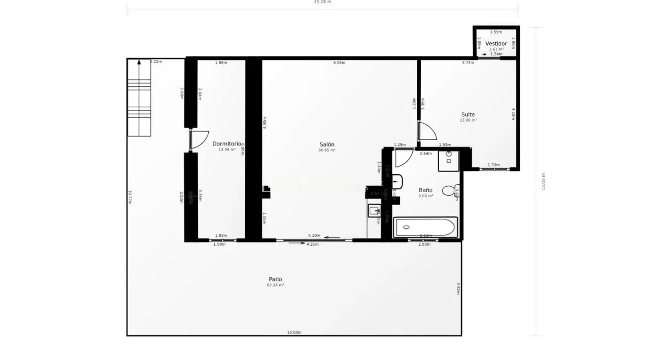
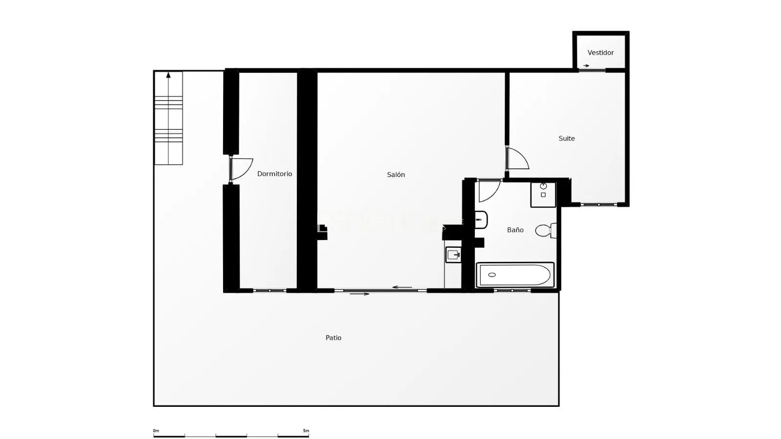
La planta baja corresponde a la segunda vivienda, concebida como un espacio cómodo, funcional y bien distribuido. Dispone de un salón-comedor con cocina abierta, amplio y elegante, que incorpora una vinoteca y cuenta con salida directa a una generosa terraza. La vivienda ofrece un dormitorio doble con vestidor independiente y un baño completo equipado con ducha y bañera de hidromasaje. Además, dispone de una sala polivalente contigua, ideal como despacho, gimnasio o taller.
La entrada principal a la propiedad dispone de una zona exterior descubierta, actualmente utilizada como acceso, con posibilidad de habilitarse como plaza de aparcamiento para un vehículo, según necesidades. La propiedad se completa con lavadero, aire acondicionado con bomba de frío y calor en todas las estancias y una piscina con vistas panorámicas al mar y a la montaña, perfectamente integrada en el entorno.
Una vivienda versátil, bien ubicada y con múltiples posibilidades de uso, en un entorno tranquilo y privilegiado.
- Construido 248 m2
- Dormitorios 5
- Baños 3
- Calefacción Gas natural
- Aire acondicionado
- Certificación energética C
Ubicación de la propiedad
Propiedades similares
¿Interesado/a? Programar una llamada
Si deseas obtener más información sobre esta propiedad, por favor completa todos los campos del formulario
Por favor, proporciona tus datos y un asesor se pondrá en contacto contigo para brindarte más información
Mensaje enviado
Gracias por contactar con Espígul
El equipo revisará su solicitud y un asesor se pondrá en contacto con usted pronto