Tu refugio entre el mar y la ciudad: Estrena casa con jardín en el corazón de Palafolls.
Descripción de la propiedad
Descubre una promoción única de obra nueva en el corazón de Palafolls (Maresme). Estas viviendas combinan un diseño de vanguardia con la calidez de un entorno sereno, situándose estratégicamente a un paso de los servicios locales y con una conectividad excelente: a solo 35 minutos de Girona y 40 de Barcelona. Además, disfrutarás de la cercanía al mar, con las playas de Malgrat de Mar a 2,5 km y las calas más espectaculares de la Costa Brava a solo 10 minutos.
Equipamiento de alta gama y confort sostenible
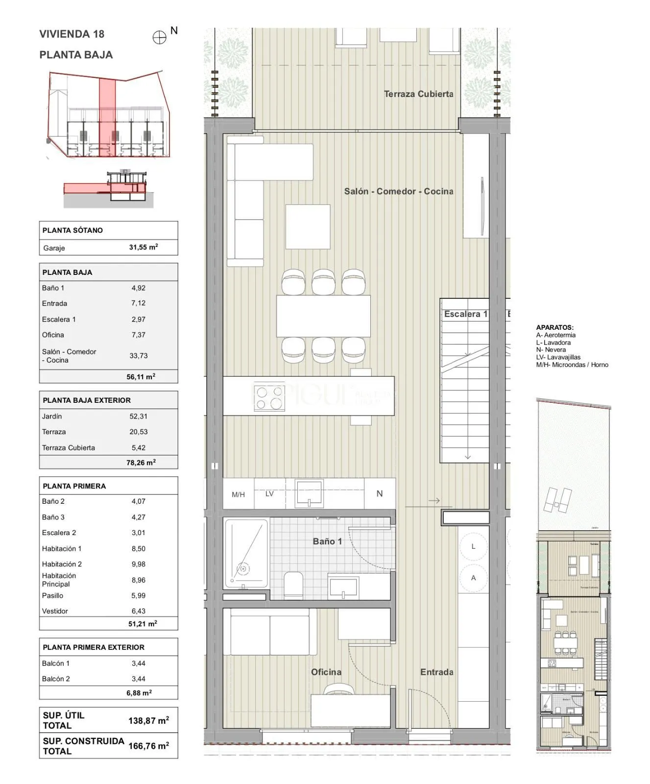
Este conjunto residencial consta de seis viviendas unifamiliares diseñadas para maximizar el bienestar. Cada casa cuenta con:
Espacios versátiles: 3 dormitorios dobles + una estancia adicional ideal para teletrabajo o invitados.
Eficiencia y calidez: Climatización mediante aerotermia, cerramientos térmicos de alta gama y elegantes acabados en madera que garantizan un aislamiento acústico superior.
Exteriores privados: Jardín propio, terraza parcialmente porcheada y dos balcones.
Comodidad total: Cocinas equipadas, tres baños completos y parking subterráneo privado con zona de trastero.
Fecha de entrega prevista: Primer trimestre de 2025.
Distribución inteligente y funcional
Las viviendas presentan una arquitectura simétrica y optimizada, diferenciándose principalmente por la superficie de su jardín privado:
Planta Principal: Un amplio recibidor nos conduce a la zona de día, donde el salón-comedor se integra con una cocina moderna. Desde aquí, se accede directamente al porche y al jardín. En esta planta también encontramos un baño completo y la habitación polivalente.
Planta Superior: La zona de descanso alberga la suite principal (con vestidor, baño privado y balcón), además de dos dormitorios individuales con acceso a un segundo balcón y otro baño completo.
Sótano: Conexión directa desde el salón al garaje privado, que ofrece un amplio espacio de almacenamiento.
- Construido 166 m2
- Dormitorios 3
- Baños 3
- Calefacción Aerotermia
- Aire acondicionado
- Certificación energética B
Ubicación de la propiedad
Propiedades similares
¿Interesado/a? Programar una llamada
Si deseas obtener más información sobre esta propiedad, por favor completa todos los campos del formulario
Por favor, proporciona tus datos y un asesor se pondrá en contacto contigo para brindarte más información
Mensaje enviado
Gracias por contactar con Espígul
El equipo revisará su solicitud y un asesor se pondrá en contacto con usted pronto