Alella, Maresme

Espectacular casa en Alella, totalmente actualizada en 2025, con ascensor y piscina.

990.000 €
315m2
4
3
A

Descripción de la propiedad

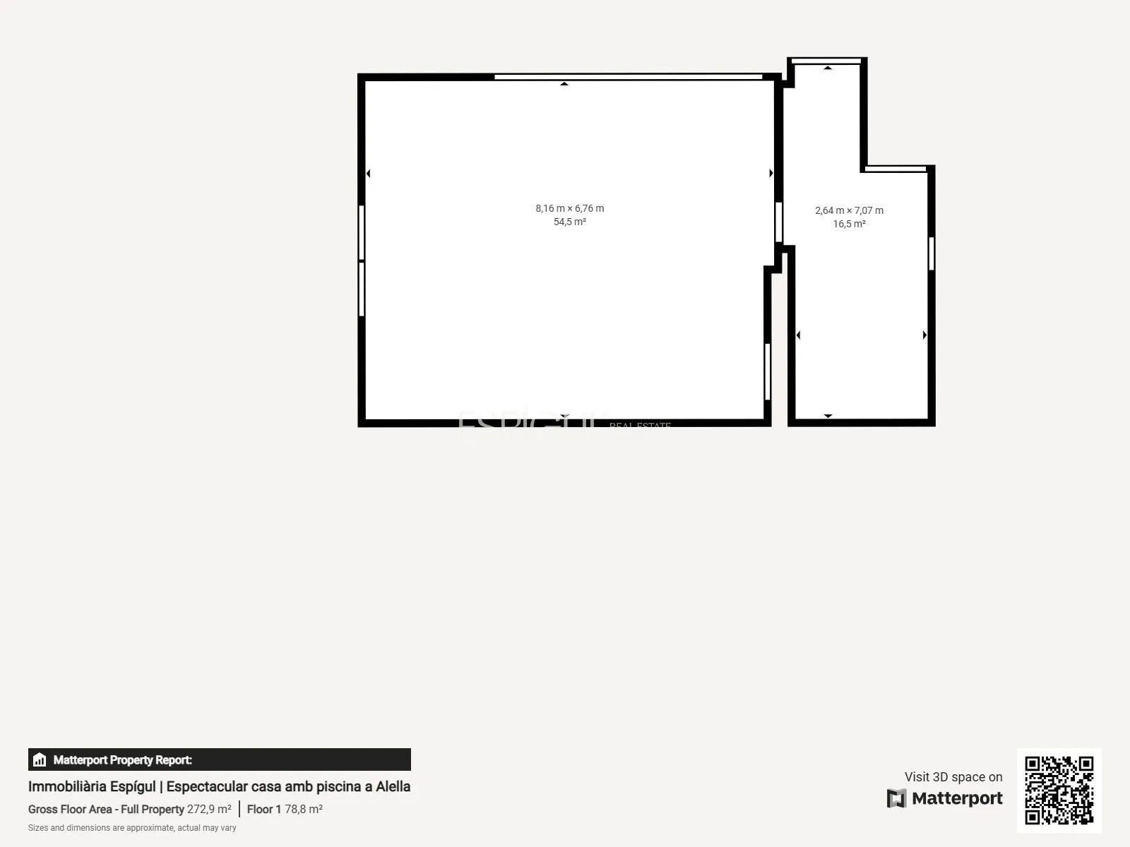
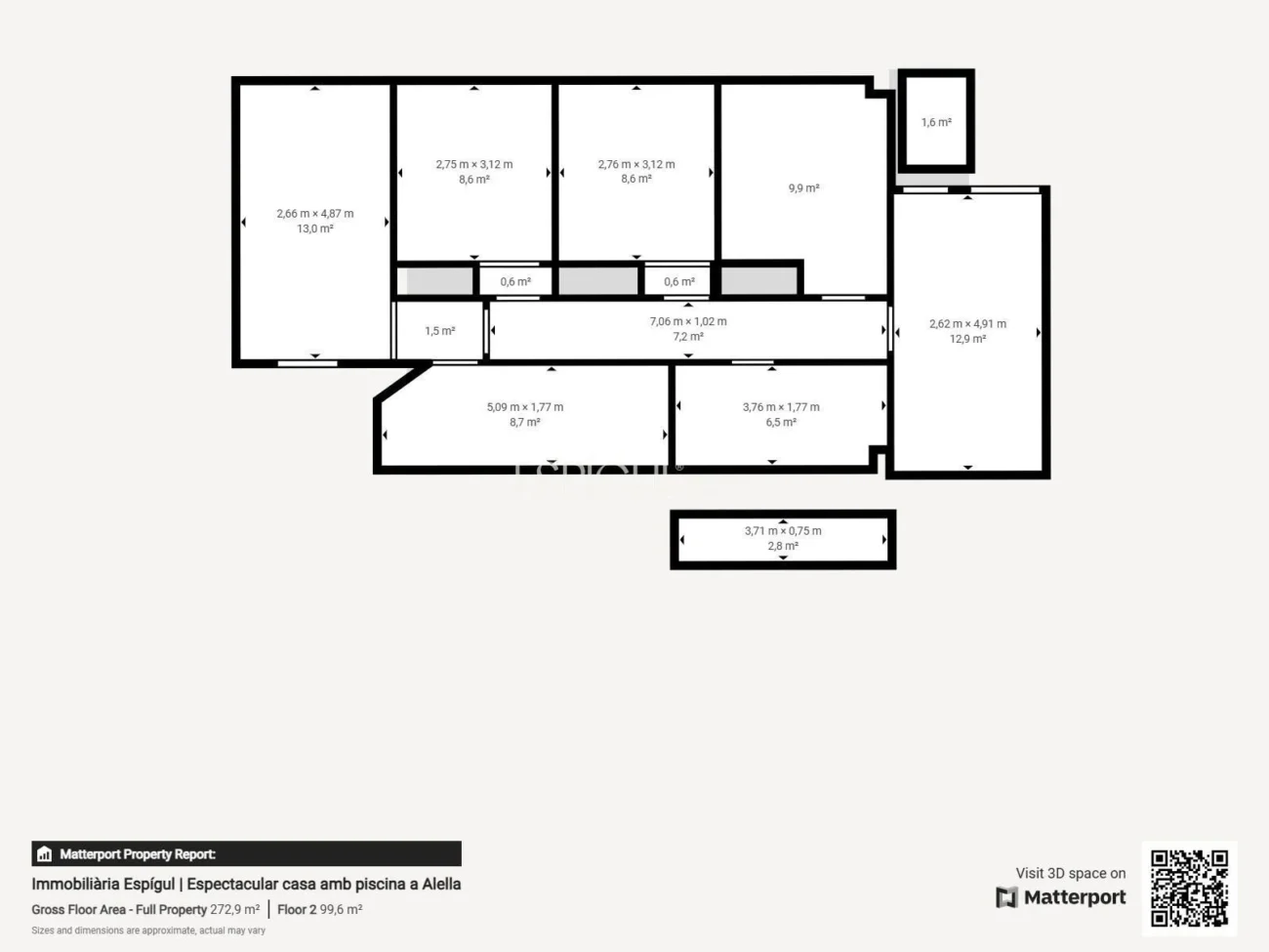
Distribuida en tres plantas, la vivienda ofrece:

Planta baja: garaje y trasteros.

Primera planta: zona de noche.

Segunda planta: zona de día.

La zona de día es el corazón de la vivienda, con un amplio y luminoso salón comedor de 60 m² con cocina abierta, que se integra perfectamente con el jardín privado. Este espacio exterior es ideal para relajarse y disfrutar de cualquier estación del año, gracias a su fantástica piscina, una elegante pérgola y una chimenea de obra.

La zona de noche dispone de cuatro dormitorios, dos baños completos, un aseo y una práctica zona de lavadero independiente. Todas las estancias ofrecen unas vistas privilegiadas.

Construida en 2007, la casa ha sido completamente renovada y está lista para entrar a vivir. Su ubicación es excepcional, a pocos minutos del centro de Alella y con excelentes conexiones con Barcelona, a tan solo 20 minutos en coche.

Alella es un enclave privilegiado entre el mar Mediterráneo y la sierra de la Marina, ofreciendo un estilo de vida exclusivo con un clima suave durante todo el año. Además, cuenta con excelentes conexiones por carretera y transporte público, facilitando el acceso a las playas cercanas y a otros destinos importantes.

  • Construido 315 m2
  • Dormitorios 4
  • Baños 3
  • Calefacción Gas natural
  • Aire acondicionado
  • Certificación energética A

Ubicación de la propiedad

Ref 4016

¿Interesado/a?

Propiedades similares

Maresme

Espectacular casa con vistas al mar y la montaña en Alella Parc

Superficie 296 m2
Dormitorios 5
Baños 2
Maresme

Casa de estilo moderno en Alella con jardín, piscina y vistas a la montaña

Superficie 332 m2
Dormitorios 4
Baños 3
Maresme

Bonita casa de 5 habitaciones, jardín y piscina en Can Teixidó

Superficie 412 m2
Dormitorios 5
Baños 3
Llámanos WhatsApp Más información