Mataró, Maresme

Preciosa casa independiente con piscina en Vallveric, Mataró

795.000 €
351m2
4
2
E

Descripción de la propiedad

Ubicada en la prestigiosa zona residencial de Vallveric en Mataró, esta casa independiente ofrece 351 m² construidos sobre una parcela de 520 m². Su arquitectura de líneas modernas, espacios generosos y excelente orientación asegura una luminosidad natural excepcional y una integración armoniosa con el entorno.

La planta principal distingue de manera clara la zona de día de la de noche. La primera alberga un salón-comedor amplio, bañado por luz natural gracias a sus grandes ventanales que conectan directamente con el jardín y la piscina. La cocina, de diseño contemporáneo y funcional, se presenta totalmente equipada con electrodomésticos de alta gama. La zona de descanso incluye dos dormitorios dobles que comparten un baño completo con bañera y ducha, así como un vestidor adaptable que puede convertirse en un tercer dormitorio según las necesidades.

La planta superior está dedicada a la suite principal, que cuenta con vestidor independiente y acceso a una amplia terraza con vistas panorámicas al mar. Este nivel se complementa con un espacio abierto versátil, ideal como despacho, área de lectura o zona de entretenimiento.

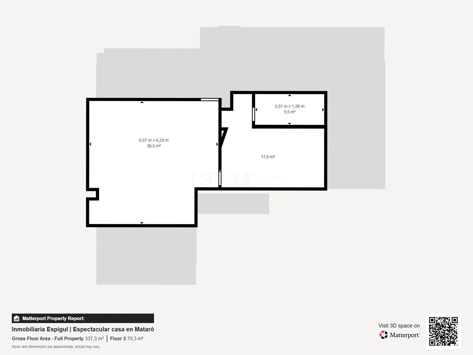
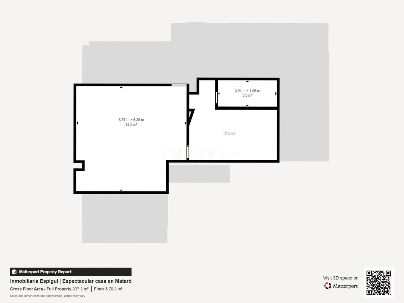
En la planta sótano se encuentra una sala polivalente de gran tamaño, actualmente habilitada como gimnasio y área de almacenamiento, con luz natural y ventilación exterior que garantizan su versatilidad. También dispone de un garaje con capacidad para cuatro vehículos y punto de recarga para coche eléctrico, asegurando comodidad y funcionalidad diaria.

Cabe mencionar como dato importante, que a pesar de que el certificado energético oficial marca una calificación E, en la práctica la casa tiene un rendimiento mucho más eficiente gracias a la instalación de 16 placas solares fotovoltaicas. Éstas cubren prácticamente todas las necesidades eléctricas de la vivienda, lo que reduce drásticamente el consumo mensual real.

Código cédula de habitabilidad: CHB05036523001

Código certificado eficiencia energética: 6JCWXE6NC1

Impuestos y gastos de compraventa no incluidos (IVA o ITP, notario, registro, gestoría…).

No se cobran honorarios al comprador.

Identificación profesional: Espígul Real Estate Group | API 0975 | AICAT 5098.

Espígul Real Estate Group, bienvenidos a casa.

  • Construido 351 m2
  • Dormitorios 4
  • Baños 2
  • Aire acondicionado
  • Certificación energética E

Ubicación de la propiedad

Ref 4285

¿Interesado/a?

Propiedades similares

Maresme

Elegancia, vistas y privacidad a 5 minutos de Mataró

Superficie 422 m2
Dormitorios 5
Baños 4
Maresme

Casa de estilo moderno en Alella con jardín, piscina y vistas a la montaña

Superficie 332 m2
Dormitorios 4
Baños 3
Llámanos WhatsApp Más información