Sant Feliu De Guixols, Costa Brava

Fantástica casa en Port Salvi, Sant Feliu de Guíxols

485.000 €
132m2
4
3
G

Descripción de la propiedad

Situada en la exclusiva y tranquila urbanización de Les Penyes, en Port Salvi, a solo cinco minutos del centro de Sant Feliu de Guíxols y de sus playas, esta magnífica casa adosada ofrece el equilibrio perfecto entre comodidad, privacidad y ubicación privilegiada.

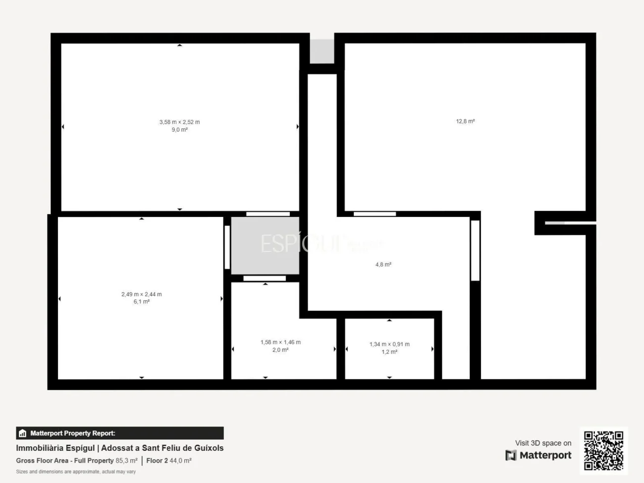
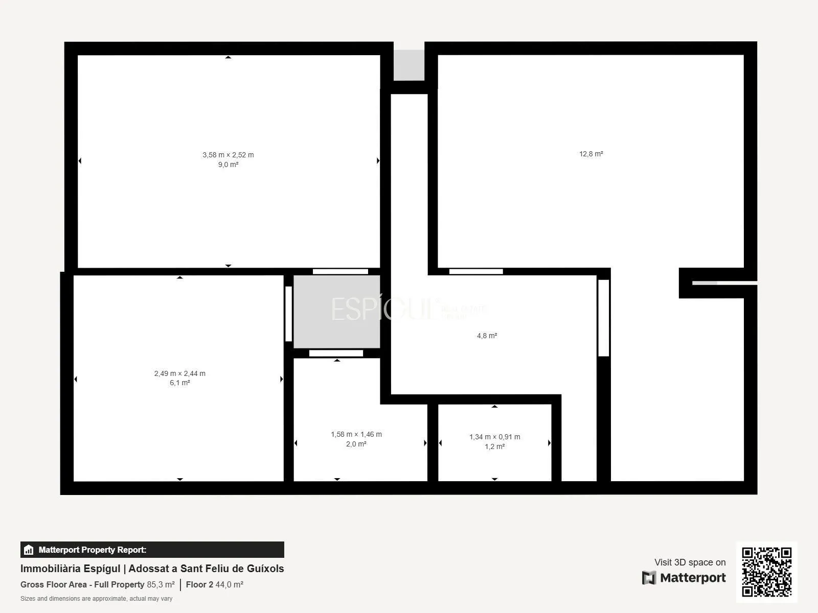
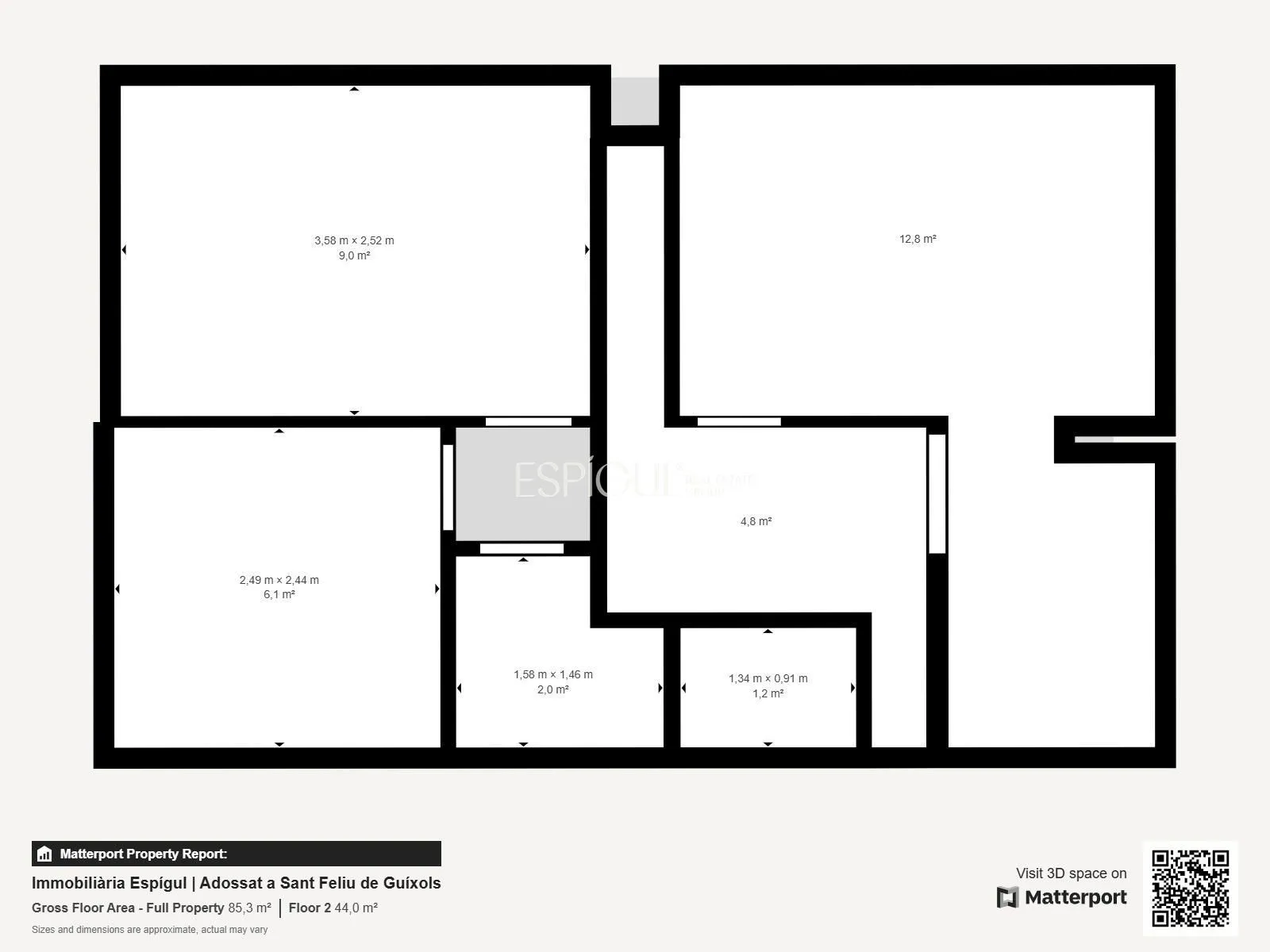
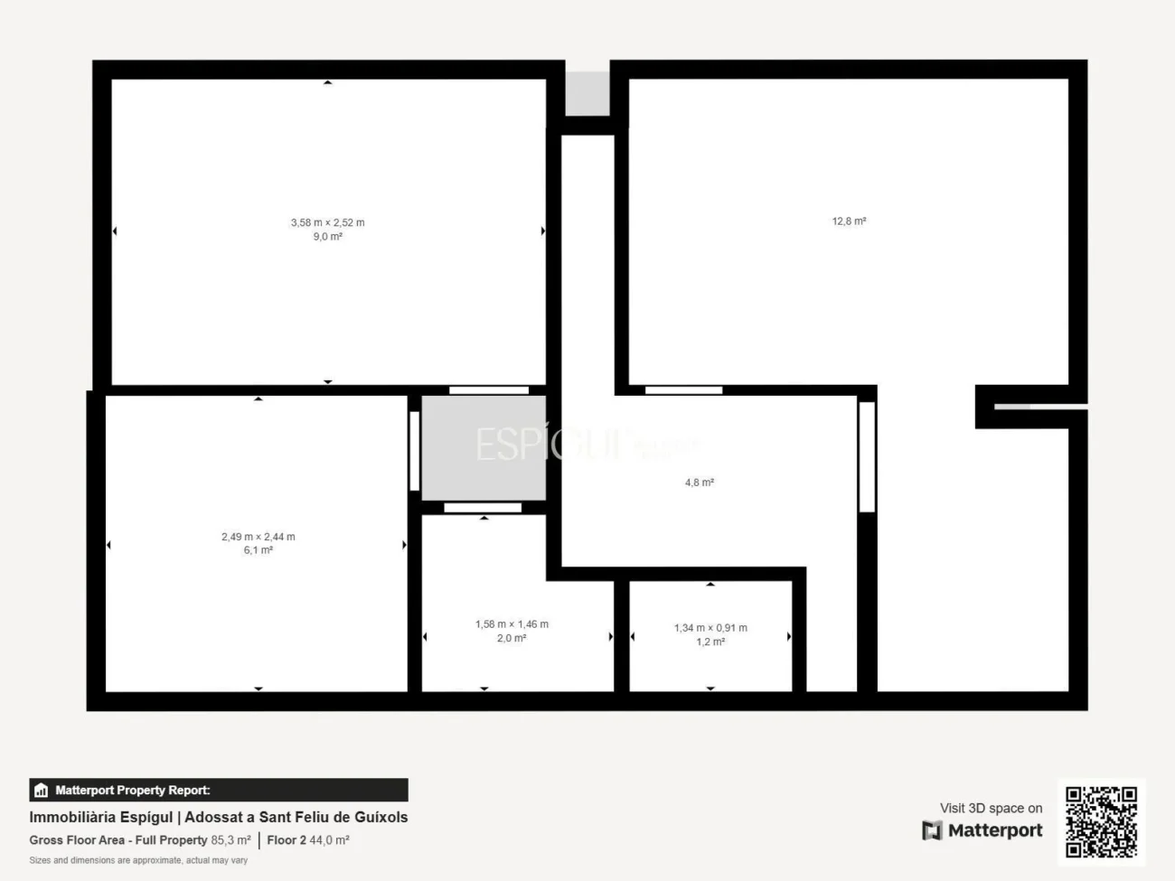
Construida en 2006, la vivienda se distribuye en tres plantas y destaca por su luminosidad, amplitud y excelentes acabados. En la planta principal encontramos un elegante recibidor, un aseo de cortesía, la cocina independiente completamente equipada y un amplio salón comedor con acceso directo a una soleada terraza y al jardín privado, ideal para disfrutar de momentos al aire libre en familia o con amigos.

En la primera planta se ubican tres dormitorios dobles, uno de ellos tipo suite con baño privado, y un segundo baño completo que da servicio al resto de habitaciones, garantizando el máximo confort para toda la familia.

La segunda planta ofrece un espacio polivalente tipo buhardilla, perfecto como dormitorio adicional, despacho, zona de juegos o de relax. Desde aquí se accede a una terraza privada con agradables vistas al mar, un rincón perfecto para desconectar y disfrutar del entorno.

Además, la propiedad dispone de garaje privado y acceso a una amplia zona comunitaria con jardín y piscina, ideal para aprovechar los días soleados de la Costa Brava.

Sant Feliu de Guíxols es una localidad con encanto, perfectamente conectada: a 30 minutos del aeropuerto de Girona, 40 minutos de la estación AVE de Girona y a solo 60 minutos de Barcelona. La ciudad ofrece una variada oferta de ocio, gastronomía, cultura y deporte, además de un precioso paseo marítimo, puerto deportivo y la vía verde del Carrilet, perfecta para los amantes de la naturaleza.

  • Construido 132 m2
  • Dormitorios 4
  • Baños 3
  • Calefacción Gas natural
  • Piscina comunitaria
  • Certificación energética G

Ubicación de la propiedad

Ref 4145

¿Interesado/a?

Propiedades similares

Costa Brava

Encantadora casa de pueblo a pocos pasos del mar en Sant Feliu de Guíxols

Superficie 144 m2
Dormitorios 4
Baños 3
Costa Brava

Confort y diseño en Llagostera – Vivienda de obra nueva de una planta

Superficie 168 m2
Dormitorios 4
Baños 2
Costa Brava

Encantadora casa de pueblo con jardín y garaje en el corazón de Gualta

Superficie 310 m2
Dormitorios 5
Baños 4
Llámanos WhatsApp Más información