Exclusiva casa con vistas al mar y piscina privada en Santa Susanna
Descripción de la propiedad
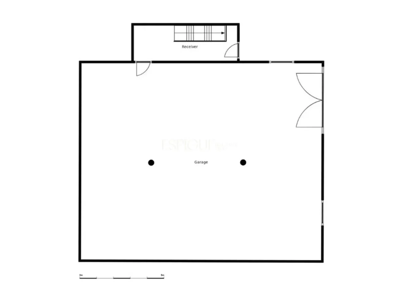
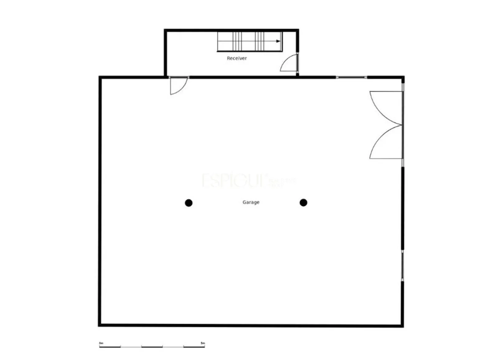
Enclavada en un entorno privilegiado, esta exclusiva propiedad de 445m2 construidos y de líneas modernas combina a la perfección diseño, confort y eficiencia energética. La vivienda se alza sobre cuatro plantas conectadas por ascensor, ofreciendo desde cada rincón espectaculares vistas al mar y a la montaña.
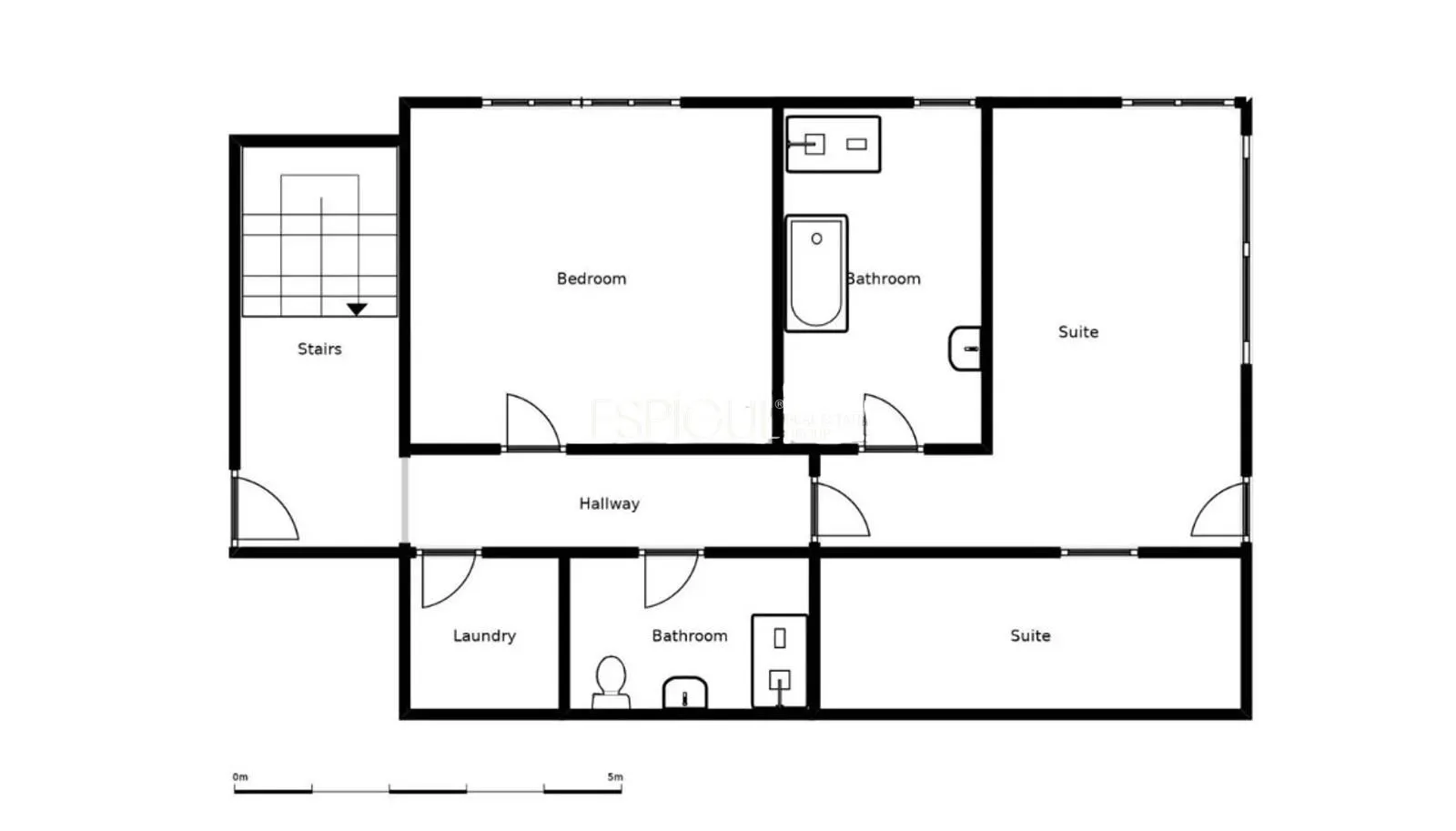
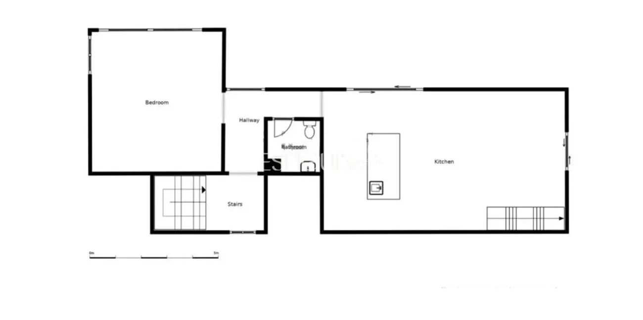
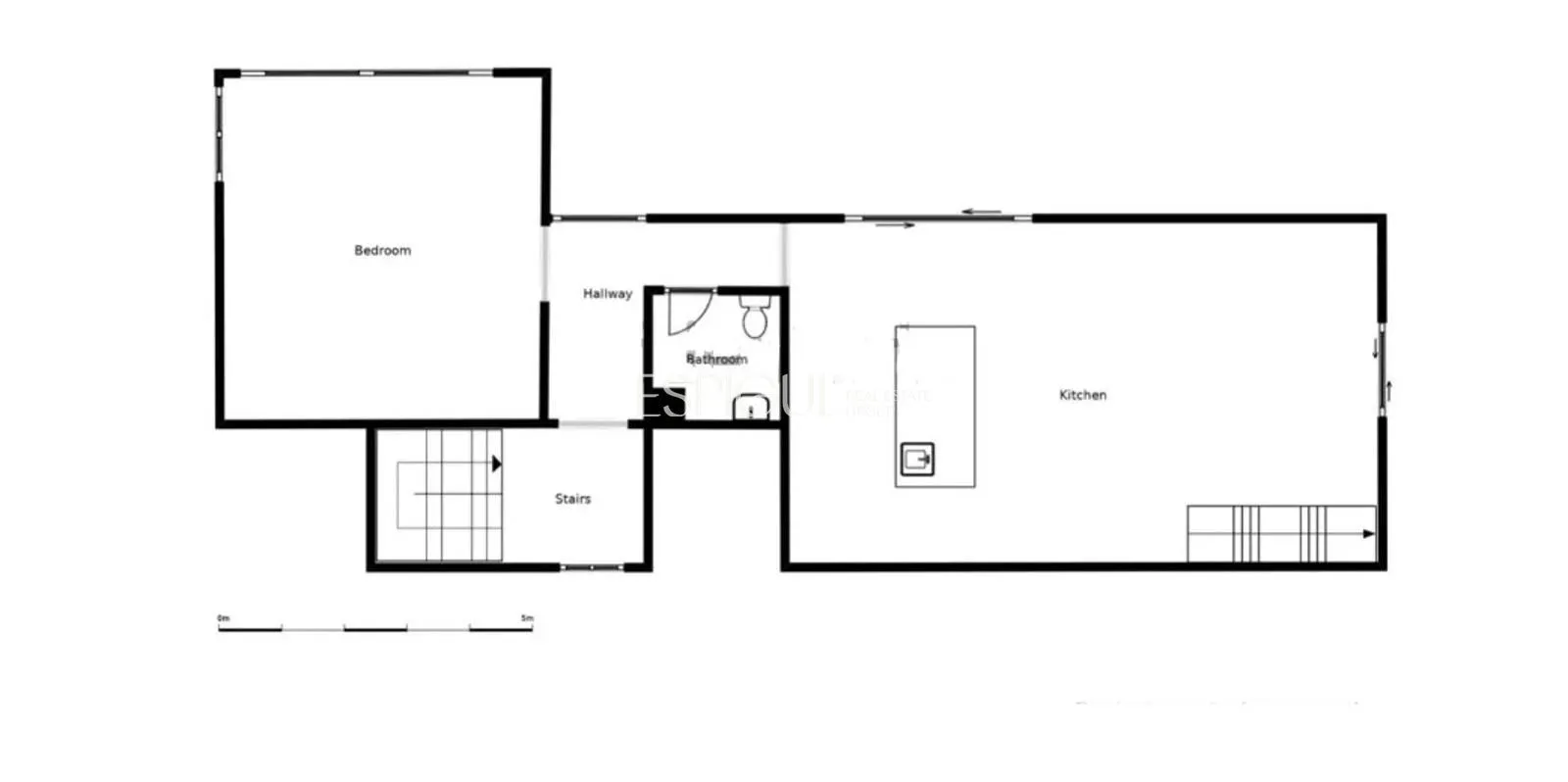
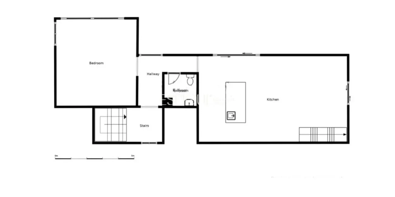
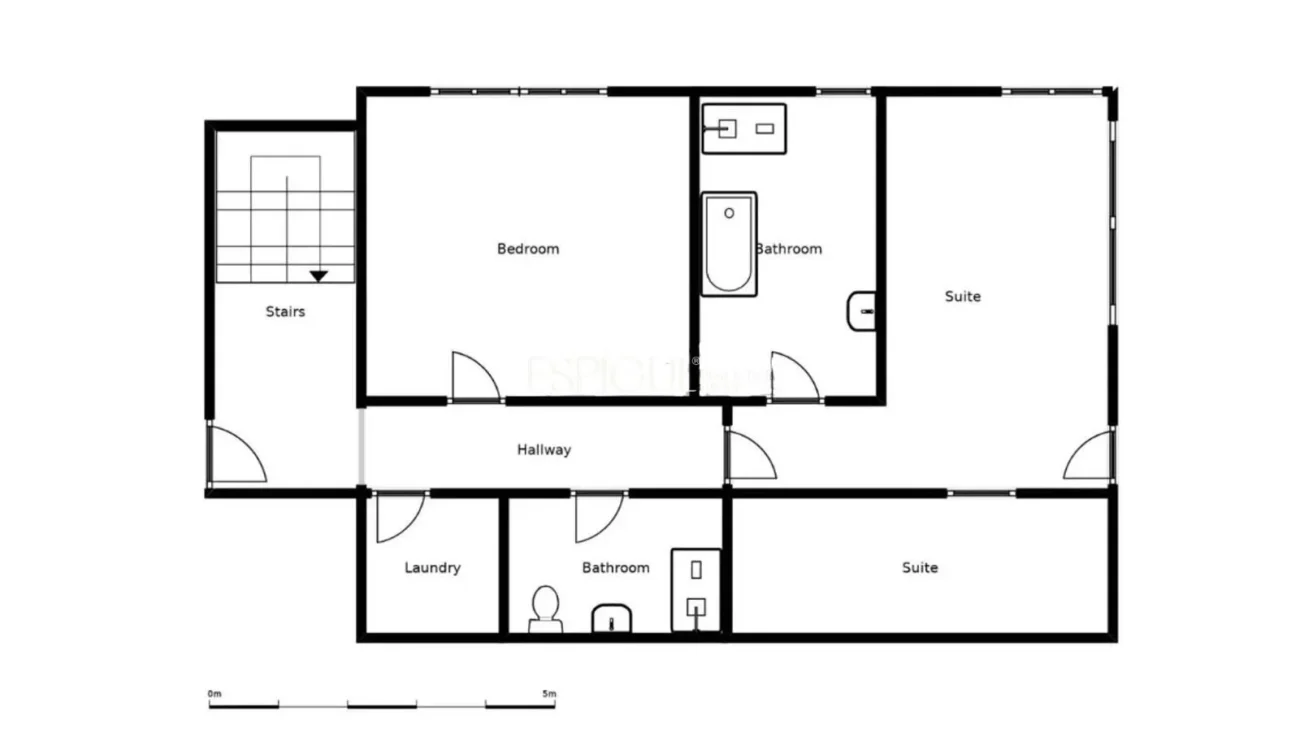
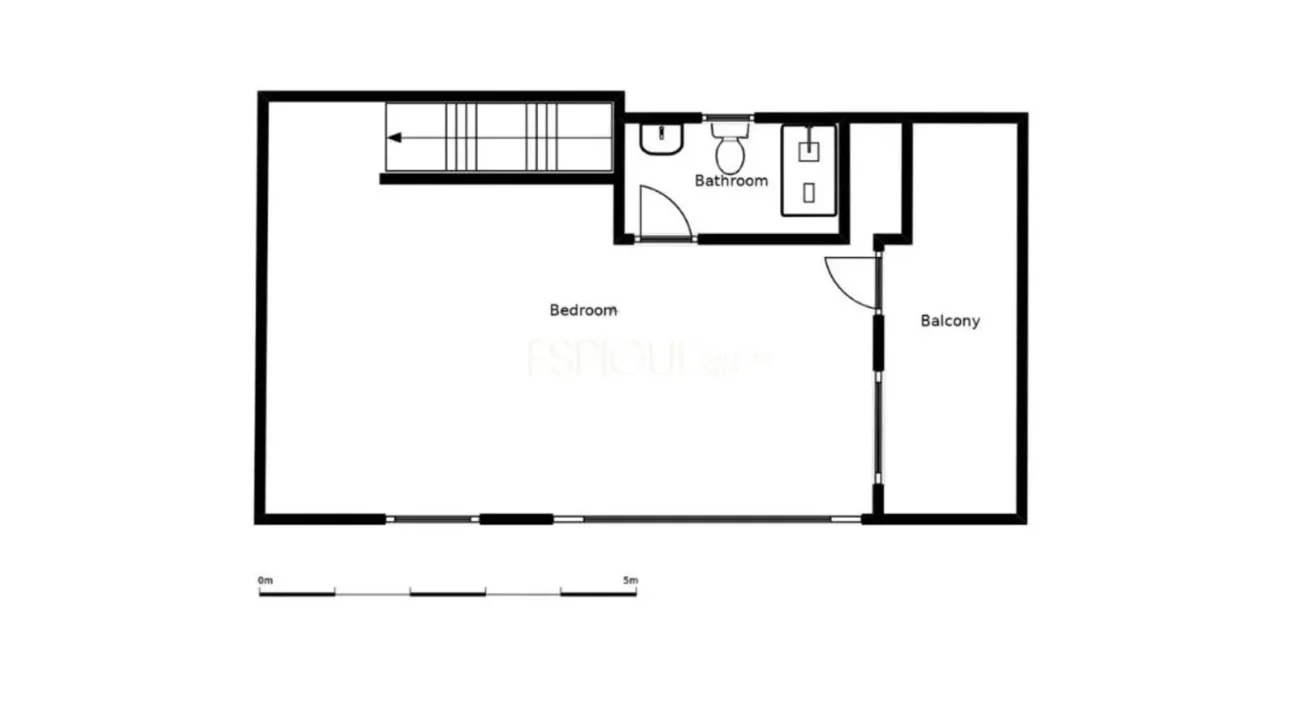
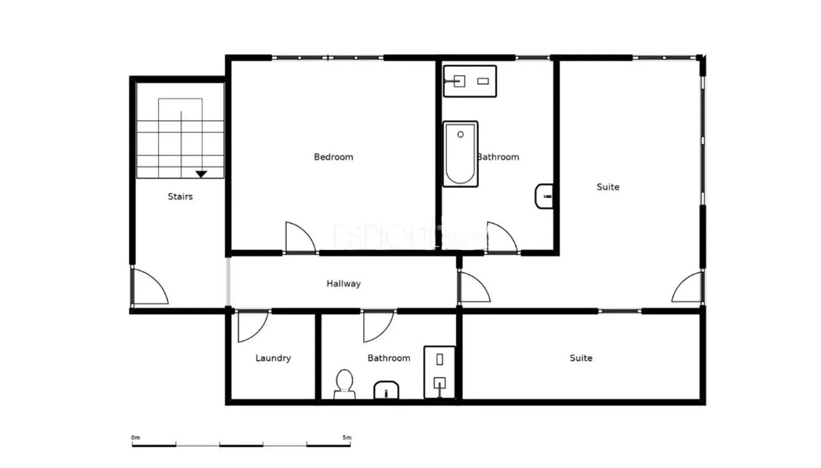
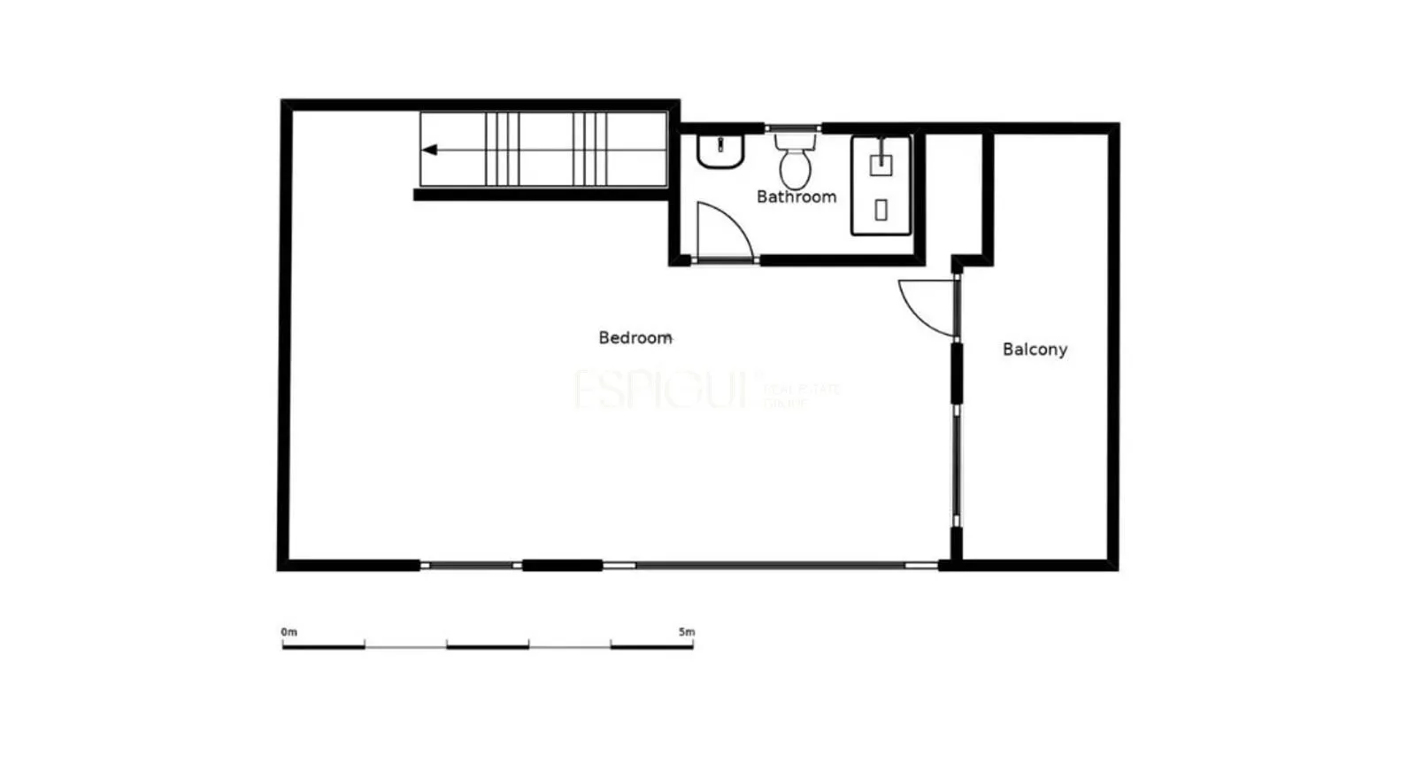
La primera planta está destinada al descanso e integra una habitación doble, un baño completo y una imponente suite principal con baño privado, dotado de ducha y bañera, y un generoso vestidor. Además ofrece una zona de aguas independiente. En la segunda planta se despliega la zona de día, presidida por un luminoso salón-comedor de concepto abierto que se fusiona con una cocina de diseño con isla central. Este espacio diáfano se prolonga hacia el exterior, conectando con el jardín donde destacan la piscina de agua salada, una terraza solárium, ideal para el relax y, una zona de barbacoa perfecta para el entretenimiento al aire libre, siempre con el mar como telón de fondo. La planta se completa con un aseo de cortesía y una amplia habitación, actualmente destinada a oficina privada. Finalmente, la planta superior alberga una gran sala polivalente, actualmente destinada a gimnasio, acompañada de un baño completo y un balcón privado que enmarca unas vistas privilegiadas.
La vivienda ha sido concebido con criterios de sostenibilidad y confort, equipada con aerotermia, placas solares en cubierta y acabados de alta gama que realzan su carácter exclusivo. Una propiedad singular que conjuga modernidad, amplitud y una ubicación inigualable, pensada para quienes buscan disfrutar del lujo en armonía con la naturaleza.
- Construido 445 m2
- Dormitorios 4
- Baños 4
- Calefacción Aerotermia
- Certificación energética A
Ubicación de la propiedad
Propiedades similares
¿Interesado/a? Programar una llamada
Si deseas obtener más información sobre esta propiedad, por favor completa todos los campos del formulario
Por favor, proporciona tus datos y un asesor se pondrá en contacto contigo para brindarte más información
Mensaje enviado
Gracias por contactar con Espígul
El equipo revisará su solicitud y un asesor se pondrá en contacto con usted pronto