Estudio con identidad propia en calle Muntaner
Descripción de la propiedad
¡Descubre tu próximo espacio ideal!
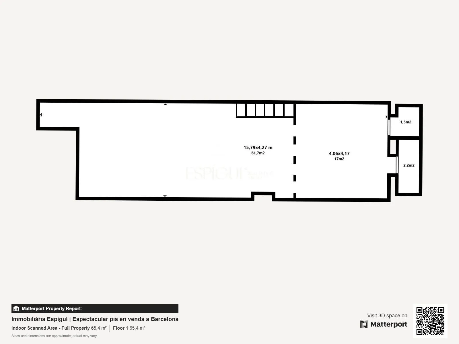
Estudio en planta baja en un estado espectacular, ubicado en la cotizada calle Muntaner. Con 87 m² construidos y techos de 4 metros de altura, este espacio ofrece la amplitud y calidez necesarias para desarrollar tu trabajo y descansar cuando lo necesites.
Características destacadas:
– Altillo de 16 m²: perfecto para crear un espacio adicional, ya sea como área de descanso, oficina o almacenamiento.
– Muros de ladrillo visto: un toque industrial y moderno que aporta calidez y estilo único.
– Salida a un pequeño patio: ideal para disfrutar de momentos al aire libre o crear tu propio rincón verde.
– Altura de techos de 4 metros: sensación de amplitud y libertad, con posibilidad de personalizar el espacio a tu gusto.
Este estudio es una oportunidad única para aquellos que buscan un espacio versátil, ya sea para vivir, trabajar o emprender. Su diseño y distribución lo convierten en un lugar lleno de posibilidades en el que pasar innumerables horas de manera cómoda y en un entorno lleno de comodidades.
¡No dejes pasar esta oportunidad! Agenda tu visita y descubre todo el potencial que este espacio tiene para ofrecerte.
- Construido 87 m2
- Ascensor
- Certificación energética D
Ubicación de la propiedad
¿Interesado/a? Programar una llamada
Si deseas obtener más información sobre esta propiedad, por favor completa todos los campos del formulario
Por favor, proporciona tus datos y un asesor se pondrá en contacto contigo para brindarte más información
Mensaje enviado
Gracias por contactar con Espígul
El equipo revisará su solicitud y un asesor se pondrá en contacto con usted pronto