Chalet de obra nueva en Valldoreix
Descripción de la propiedad
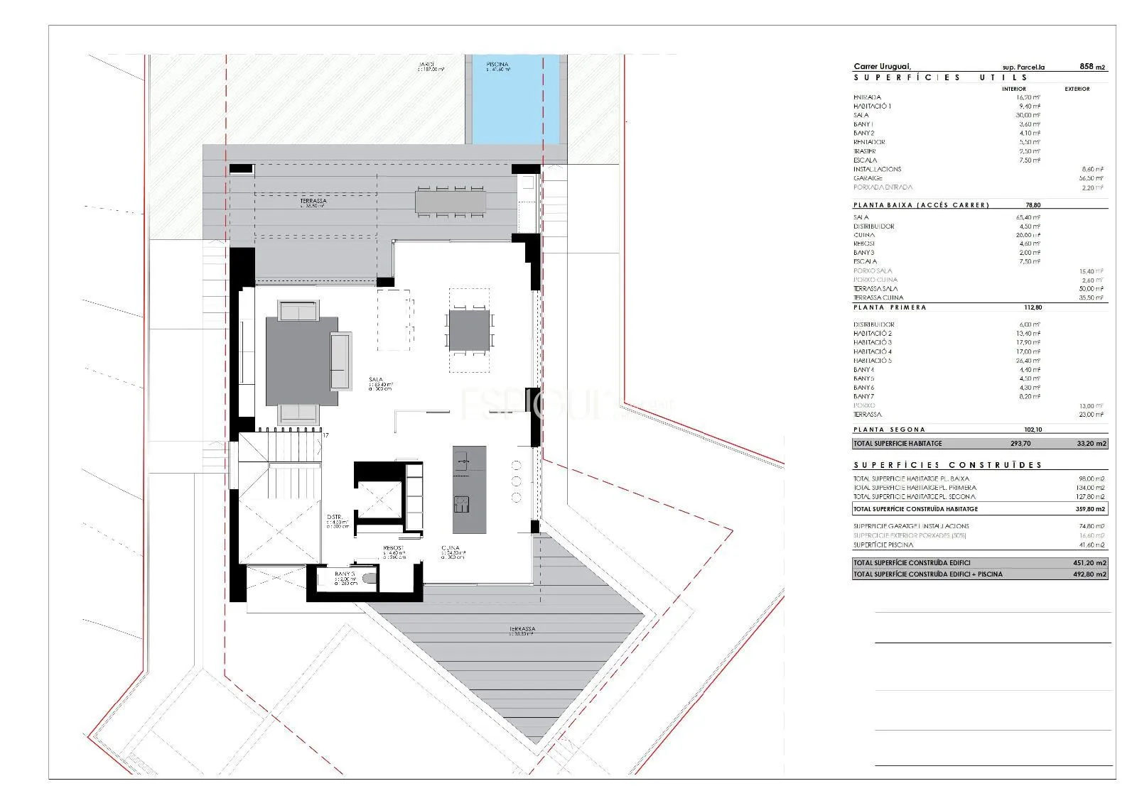
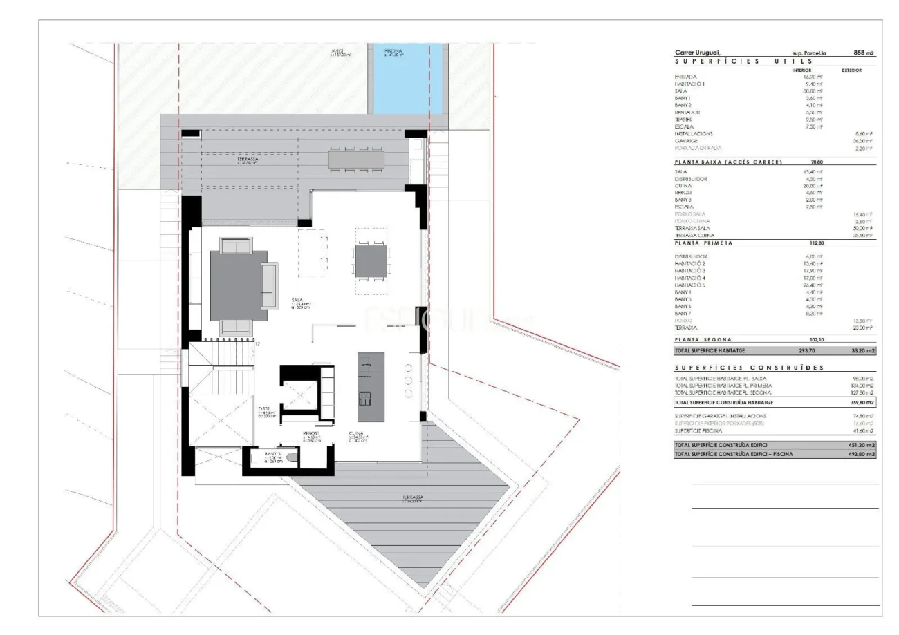
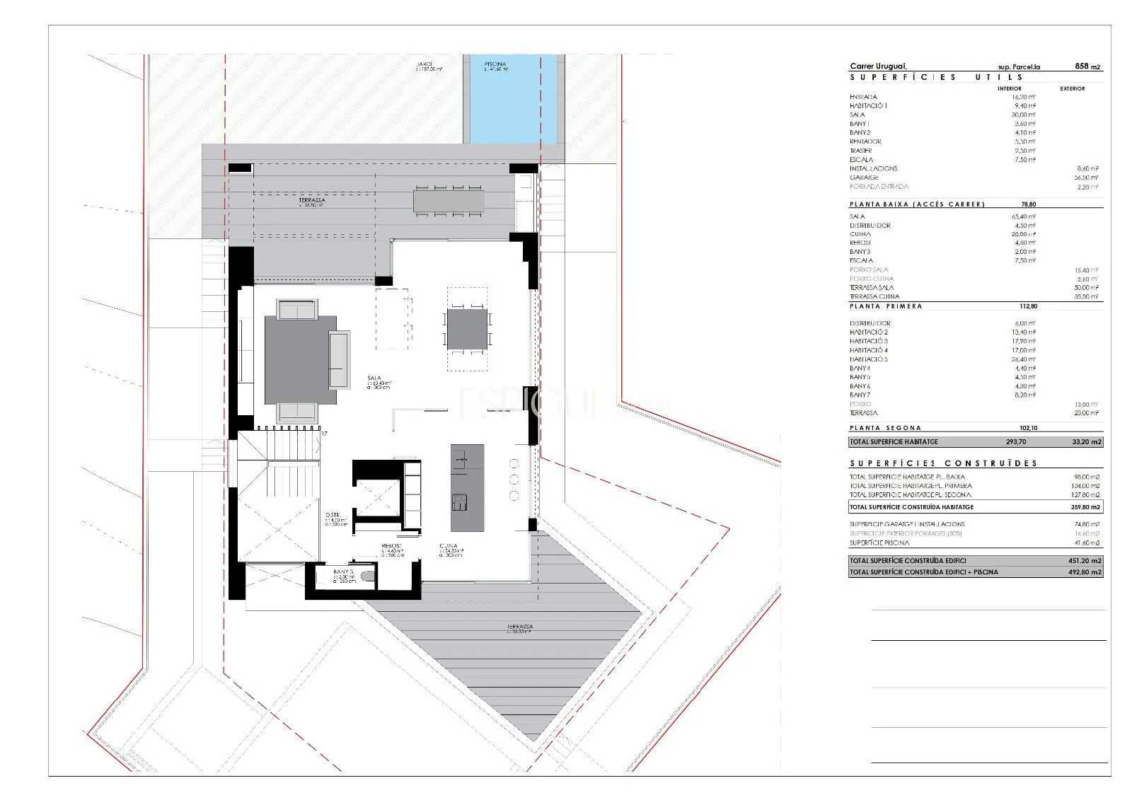
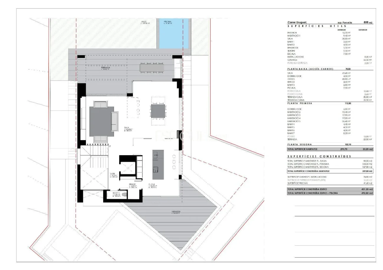
Ubicada en una de las mejores zonas de Valldoreix, detrás de Masia Rosàs, y a tan solo 5 minutos a pie de la estación de ferrocarril. Esta vivienda cuenta con una construcción total de 451 m2 + 41 ,60 m2 de piscina, toda ella se alza sobre una magnífica parcela de 858 m2.
En la planta baja, con un total de 98 m2, encontramos un dormitorio en suite, sala polivalente con baño completo, lavandería, sala de instalaciones, trastero y garaje interior con capacidad para 3 vehículos.
La primera planta se ha diseñado toda ella para ser el área social y a la vez, el corazón de la vivienda. Una cocina totalmente equipada de 33 m2 junto a una primera terraza de 35 m2. Conectada con la cocina encontramos la sala principal de 65 m2, formada por salón y comedor, con salida directa a terraza de 50 m2 con porche, que permite crear distintos ambientes, y que nos guía al maravilloso jardín con piscina. En esta planta disponemos de un baño de cortesía que da servicio a esta, y también espacio previsto para ascensor.
La zona de descanso la encontramos en la segunda planta y está compuesta por; máster suite con vestidor, baño completo con ducha y bañera y salida a terraza de 23 m2 con vistas al jardín. Y, 3 dormitorios dobles con armarios y cada uno con su baño en suite.
La propiedad cuenta con materiales de primeras calidades, y se ha diseñado siguiendo rigurosos criterios eco eficientes.
La fecha prevista de entrega es el segundo trimestre de 2027.
¡No dude en contactar con el equipo Espígul para conocer más detalles o bien concertar una reunión!
- Construido 451 m2
- Dormitorios 5
- Baños 6
- Calefacción Aerotermia
- Aire acondicionado
- Certificación energética A
Ubicación de la propiedad
Propiedades similares
Casa unifamiliar en venta en Can Mates, Sant Cugat del Vallès
Unifamiliar de diseño en zona Arxiu
Chalet en venta en Arxiu, Sant Cugat del Vallés
¿Interesado/a? Programar una llamada
Si deseas obtener más información sobre esta propiedad, por favor completa todos los campos del formulario
Por favor, proporciona tus datos y un asesor se pondrá en contacto contigo para brindarte más información
Mensaje enviado
Gracias por contactar con Espígul
El equipo revisará su solicitud y un asesor se pondrá en contacto con usted pronto