Vallromanes, Maresme

Elegante villa con vistas al campo de golf y a la montaña en una ubicación privilegiada

1.350.000 €
456m2
4
3
A

Descripción de la propiedad

Esta magnífica villa contemporánea, diseñada con materiales de la más alta calidad y tecnología de vanguardia, ofrece una experiencia de vida incomparable en una de las zonas más exclusivas. Con espectaculares vistas al campo de golf y a las montañas, esta propiedad combina sofisticación, confort y lujo, convirtiéndose en el refugio ideal para quienes buscan un estilo de vida excepcional.

Además, existe la posibilidad de construir una planta adicional, ya que la propiedad no ha alcanzado el máximo de edificabilidad permitido.

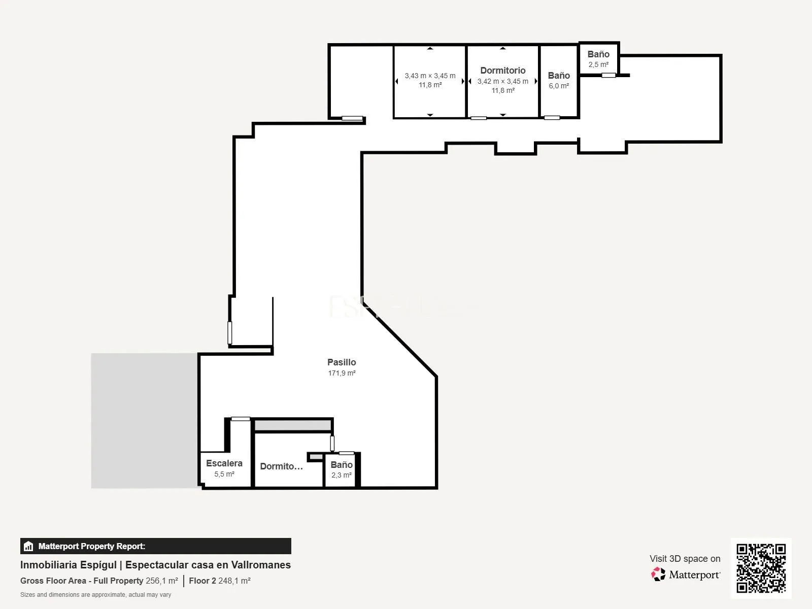
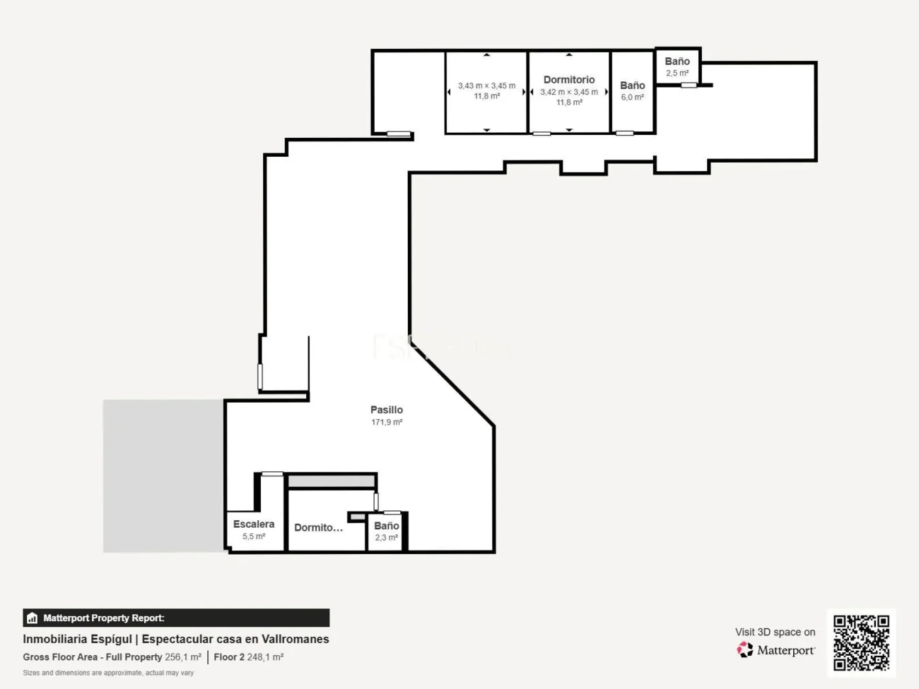
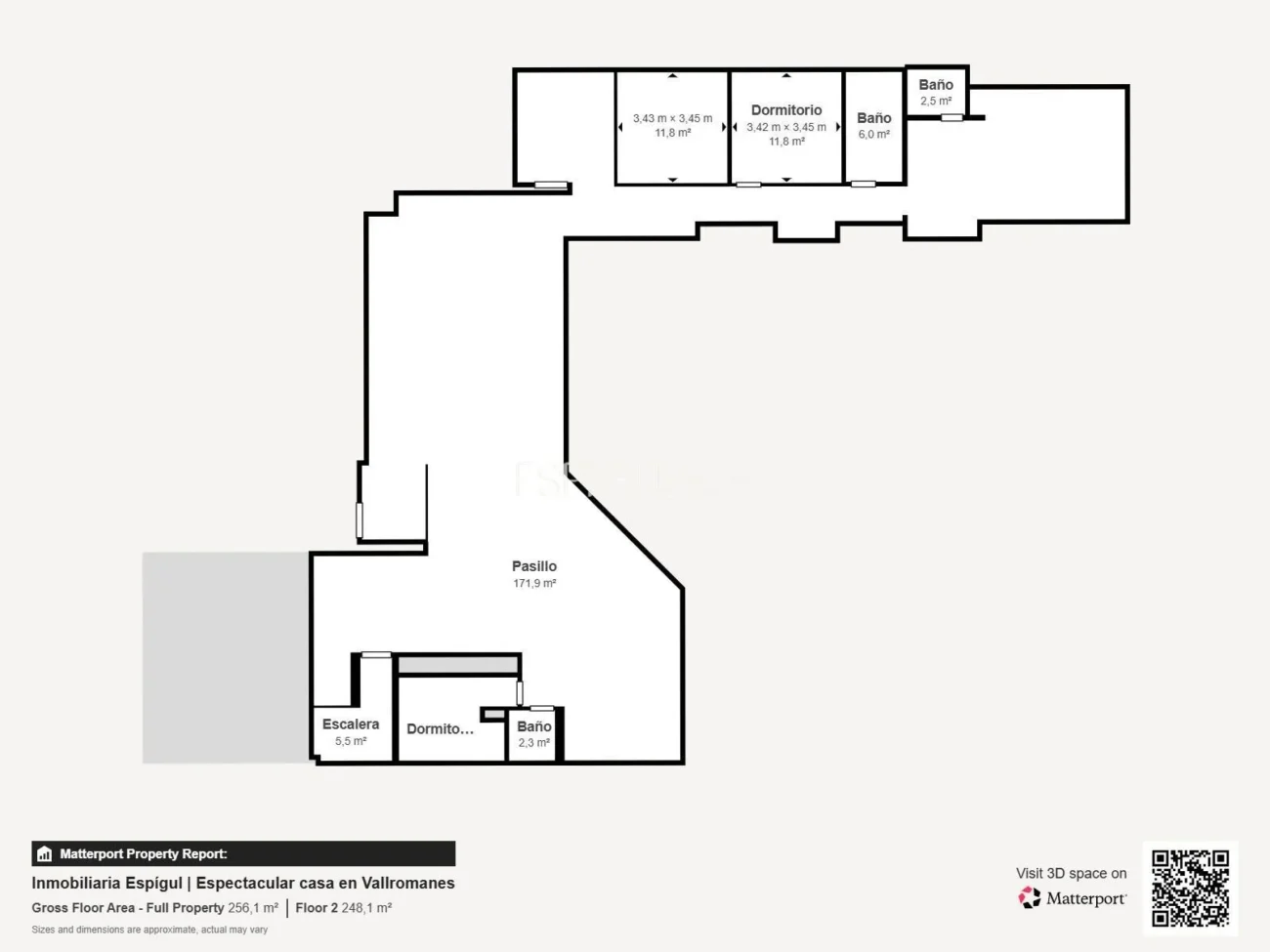
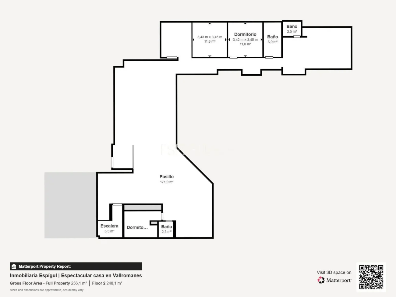
Planta baja

Al acceder a la villa, un amplio y luminoso vestíbulo conduce al elegante salón-comedor, inundado de luz natural gracias a sus grandes ventanales que enmarcan las impresionantes vistas. La moderna chimenea y los acabados de diseño crean un ambiente cálido y acogedor, ideal tanto para el descanso como para el entretenimiento.

La cocina abierta de última generación, totalmente equipada con electrodomésticos de alta gama, combina funcionalidad y estilo en perfecta armonía. A su lado se encuentra un práctico lavadero, ideal para mantener el orden en el hogar.

En esta planta también se sitúa un aseo de cortesía, una cómoda oficina perfecta para trabajar desde casa y dos amplios dormitorios que comparten un baño completo. La suite principal es un auténtico santuario de bienestar, con baño privado y acceso directo al jardín y a la zona de piscina.

Desde el porche cubierto podrá disfrutar de agradables cenas al aire libre o relajarse junto a la piscina, rodeada de un exuberante jardín mediterráneo. La zona de barbacoa completa este entorno perfecto para disfrutar de reuniones con familia y amigos durante todo el año.

Planta subterránea

Diseñada con máxima funcionalidad, esta planta ofrece un espacioso garaje con capacidad para tres vehículos, además de trastero y sala técnica que alberga el avanzado sistema domótico de la villa, garantizando el confort y la eficiencia en todo momento.

Características

La villa dispone de aire acondicionado, calefacción, doble acristalamiento, sistema de alarma y gimnasio privado. Su ubicación es inmejorable: próxima a colegios internacionales y todos los servicios esenciales, en una de las zonas más prestigiosas de la región.

Ya sea disfrutando de las vistas al campo de golf o contemplando las montañas al atardecer, esta villa representa la máxima expresión del lujo, la elegancia y la tranquilidad.

  • Construido 456 m2
  • Dormitorios 4
  • Baños 3
  • Calefacción Suelo radiante
  • Aire acondicionado
  • Certificación energética A

Ubicación de la propiedad

Ref 4365

¿Interesado/a?

Propiedades similares

Maresme

Bonita casa de obra nueva con espectaculares vistas en Vallromanes

Superficie 283 m2
Dormitorios 4
Baños 3
Maresme

Exclusiva casa unifamiliar de obra vista en el centro de Vallromanes

Superficie 321 m2
Dormitorios 5
Baños 4
Premià de Dalt

Elegante casa de dos plantas con jardín llano y piscina privada

Superficie 219 m2
Dormitorios 5
Baños 3
Llámanos WhatsApp Más información