Amplia casa de 6 habitaciones con piscina en Sant Berger, Teià
Descripción de la propiedad
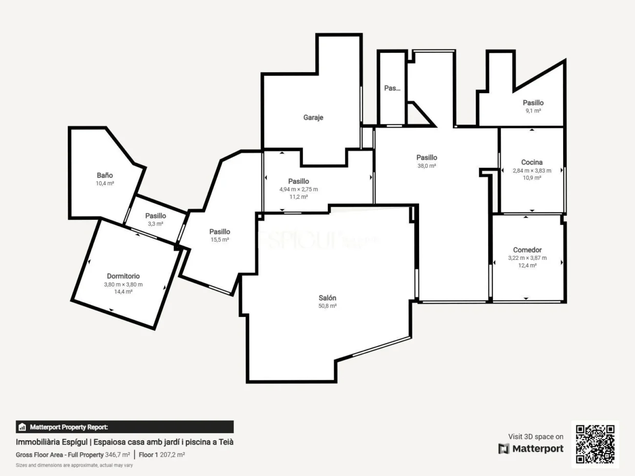
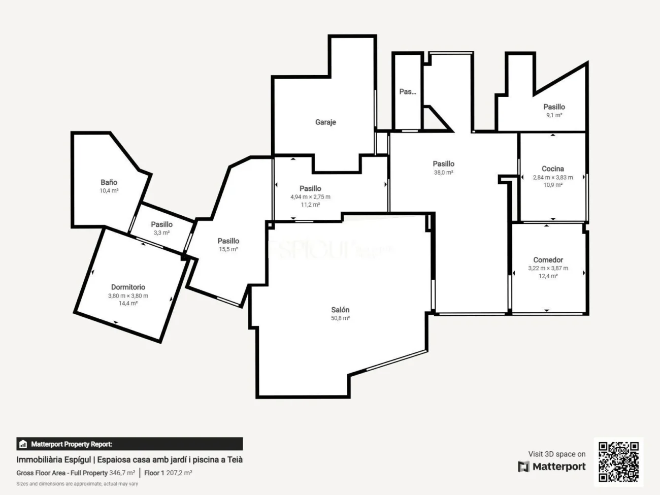
La vivienda de 586 m² construidos está edificada sobre una parcela de 1260 m², una de las mayores de la zona.
La distribución y las grandes dimensiones de la vivienda, nos permiten poder hacer vida en la planta principal, en la que encontramos un salón con grandes cristaleras con amplias vistas y salida directa a la terraza cubierta, jardín y piscina Una cocina amplia, totalmente equipada con amplio office y salida también a la terraza y a la barbacoa. En esta misma planta disponemos de una máster suite con vestidor independiente y baño completo. Encontramos también una habitación de juegos de gran tamaño con baño y una habitación destinada a zona de ropa. La planta se completa con un gran garaje con espacio para dos coches y zona de almacenaje.
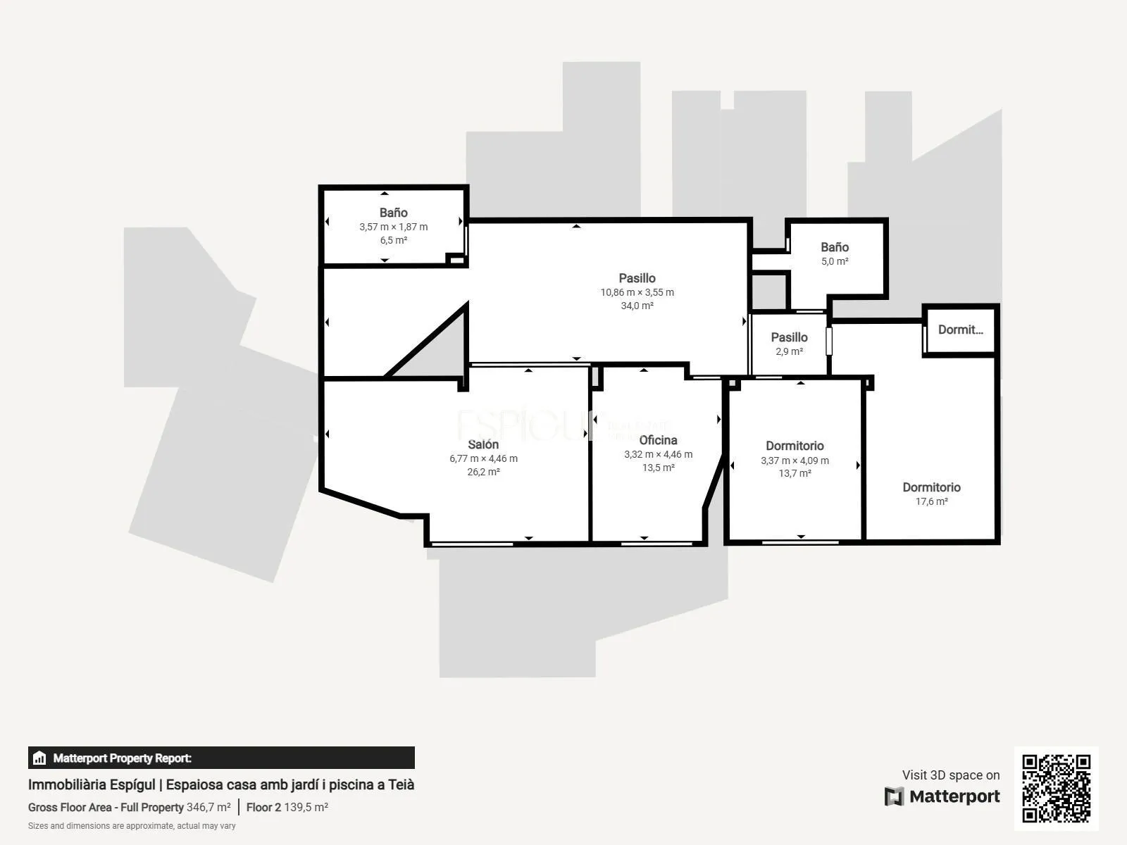
Una amplia escalera nos da acceso a la primera planta, donde encontramos cinco dormitorios, todos dobles y una estancia buhardilla habitable. Dos de las habitaciones son en suite con baños decorados con diseños de Agatha Ruiz de la Prada. Un baño completo da servicio al resto de la planta.
Desde cuatro de las habitaciones tenemos acceso a una amplia terraza con vistas al mar, y a la zona verde protegida justo en frente de la propiedad.
Para completar la vivienda disponemos de una gran zona ajardinada con árboles que proporcionan sombra natural, una gran piscina y una zona de barbacoa. La terraza es cubierta con vistas al jardín y a la piscina.
La propiedad cuenta con materiales de alta calidad: fachada de obra vista, suelos de mármol travertino y parquet natural, cerramientos de aluminio con doble acristalamiento y persianas automáticas, calefacción por suelo radiante, aire acondicionado mediante splits en el salón y las habitaciones, chimenea funcional en el salón, piscina con cloración salina, barbacoa de obra, puertas automáticas…
La urbanización Sant Berger, una de las zonas residenciales más exclusivas del Maresme, y está situada frente a un frondoso bosque. La urbanización cuenta con vigilancia 24 horas y proximidad al Club de Tenis Barcelona-Teià, que incluye un campo de Pitch & Putt.
- Construido 586 m2
- Dormitorios 7
- Baños 6
- Calefacción Suelo radiante
- Aire acondicionado
- Certificación energética E
Ubicación de la propiedad
Propiedades similares
¿Interesado/a? Programar una llamada
Si deseas obtener más información sobre esta propiedad, por favor completa todos los campos del formulario
Por favor, proporciona tus datos y un asesor se pondrá en contacto contigo para brindarte más información
Mensaje enviado
Gracias por contactar con Espígul
El equipo revisará su solicitud y un asesor se pondrá en contacto con usted pronto