Lluminós pis exterior al carrer Duque de Sesto
Descripció de la propietat
Aquest magnífic pis acabat de reformar es troba al prestigiós carrer Duque de Sesto, en ple cor del barri de Salamanca. Ubicat en una planta alta, gaudeix d’una lluminositat excepcional gràcies als seus amplis finestrals i a la seva orientació privilegiada, que omple cada estança de llum natural durant tot el dia.
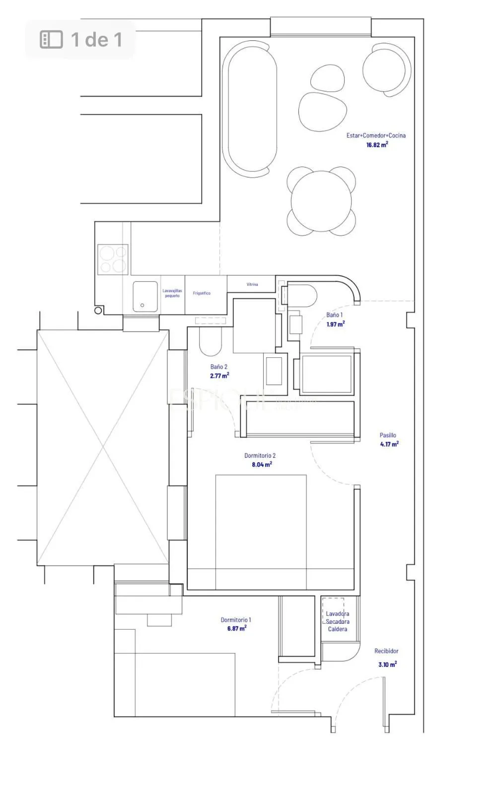
L’habitatge ha estat renovat amb un gust exquisit, combinant materials d’alta qualitat amb un disseny modern i funcional. Compta amb dues habitacions espaioses, ambdues amb bany en suite, la qual cosa aporta un extra de comoditat i independència. Els banys destaquen per la seva acurada estètica contemporània i els seus acabats de primera categoria.
El saló-menjador, ampli i acollidor, s’integra de manera harmoniosa amb una cuina moderna totalment equipada, formant un espai perfecte tant per al dia a dia com per rebre convidats. Cada detall de la reforma està pensat per maximitzar el confort i l’eficiència.
En conjunt, aquesta propietat representa una oportunitat única per gaudir d’una llar elegant, lluminosa i completament actualitzada, situada en un dels carrers més tranquils i valorats del districte. Ideal tant com a residència habitual com a inversió d’alta qualitat.
- Construïts 67 m2
- Habitacions 2
- Banys 2
- Calefacció Gas natural
- Aire condicionat
- Ascensor
- Certificació energètica C
Ubicació de la propietat
Propietats similars
T’interessa? Programar una trucada
Si voleu més informació sobre aquesta propietat, si us plau, ompliu tots els camps del formulari
Si us plau, proporcioneu les vostres dades i un assessor es posarà en contacte amb vosaltres per proporcionar-vos més informació
Missatge enviat
Gràcies per posar-te en contacte amb Espígul
L’equip revisarà la teva sol·licitud i un assessor es posarà en contacte amb tu aviat