Exclusiva casa de luxe amb piscina i spa al cor de Calella
Descripció de la propietat
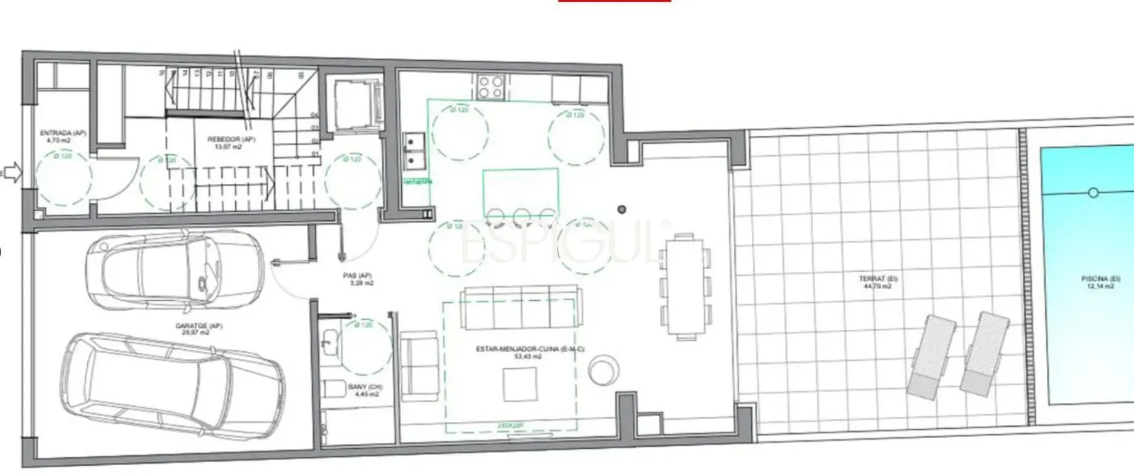
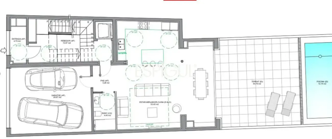
Descobriu una espectacular residència de luxe de 360 m² on el disseny, el confort i l’exclusivitat es fusionen per crear una llar realment excepcional.
Construïda el 2025, aquesta propietat redefineix el concepte de vida contemporània gràcies a la seva arquitectura moderna, línies netes i acabats d’alta gamma, pensats per satisfer els clients més exigents.
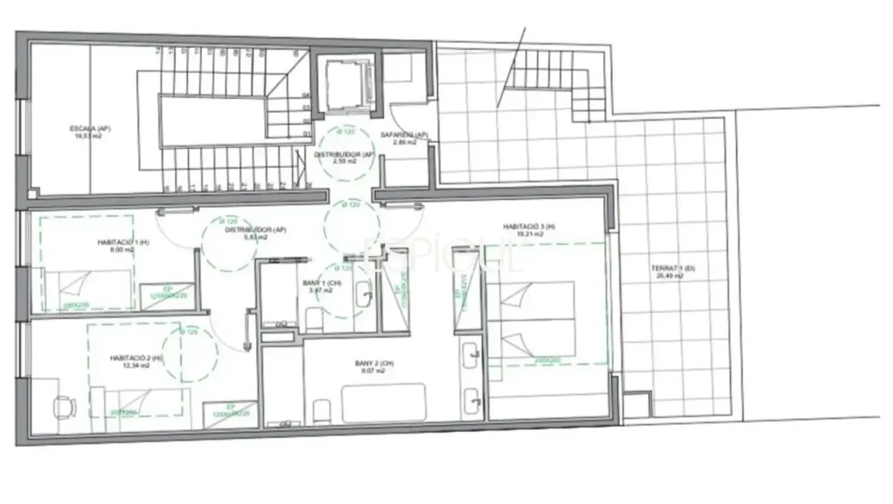
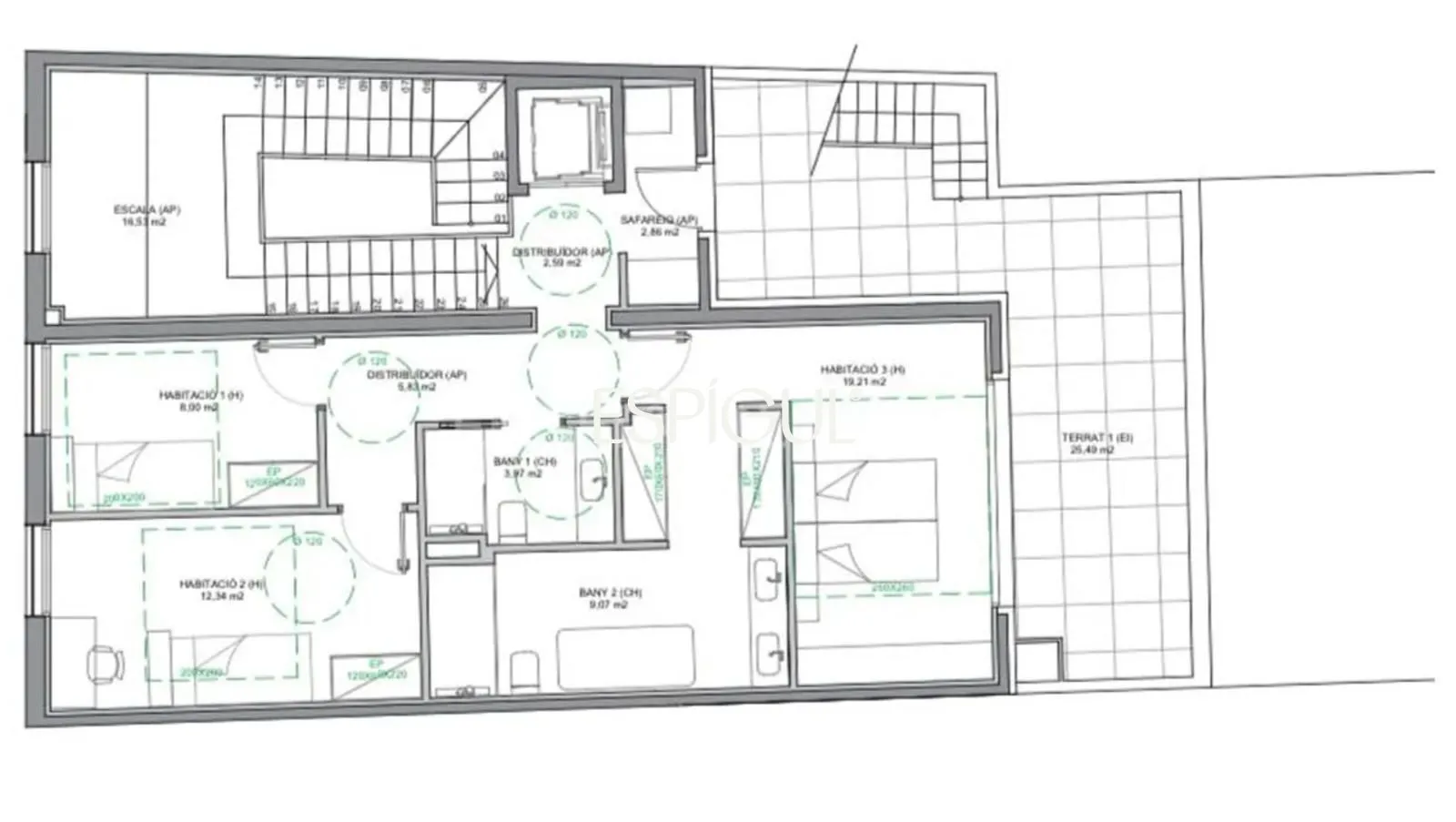
L’habitatge disposa de tres àmplies habitacions, destacant una magnífica suite principal amb un elegant vestidor, a més de quatre banys complets que garanteixen el màxim confort i privacitat. Una acollidora xemeneia aporta calidesa als espais, mentre que l’ascensor privat connecta totes les plantes de manera còmoda i discreta.
Un dels grans valors d’aquesta propietat és la seva completa zona de benestar i oci, dissenyada per gaudir-ne sense sortir de casa:
Piscina privada
Gimnàs totalment equipat
Sala de cinema
Zona SPA amb jacuzzi i sauna
Cada detall ha estat curosament pensat per oferir una experiència de vida única, on el relax i l’entreteniment formen part del dia a dia.
La cuina, de disseny contemporani i totalment equipada, juntament amb els armaris encastats, completen un interior sofisticat i funcional. A la planta principal, un ampli garatge amb capacitat per a dos vehicles hi afegeix un plus de comoditat.
Ens trobem davant d’una propietat única, un autèntic refugi de luxe que combina modernitat, privacitat i benestar. Una oportunitat excepcional per a qui busca un habitatge exclusiu en una de les zones més demandades del Maresme.
Codi cèdula d’habitabilitat: CHG2384492803482
Codi certificat d’eficiència energètica: NMG9E1PZ2
Impostos i despeses de compravenda no inclosos
No es cobren honoraris al comprador
Identificació professional: Espígul Real Estate Group | API 0975 | AICAT 5098
Espígul Real Estate Group, benvinguts a casa
- Construïts 360 m2
- Habitacions 4
- Banys 4
- Calefacció Aerotermia
- Aire condicionat
- Certificació energètica A
Ubicació de la propietat
Propietats similars
Vistes al mar a Premià de Dalt
T’interessa? Programar una trucada
Si voleu més informació sobre aquesta propietat, si us plau, ompliu tots els camps del formulari
Si us plau, proporcioneu les vostres dades i un assessor es posarà en contacte amb vosaltres per proporcionar-vos més informació
Missatge enviat
Gràcies per posar-te en contacte amb Espígul
L’equip revisarà la teva sol·licitud i un assessor es posarà en contacte amb tu aviat