S'Agaro, Costa Brava

Appartement rénové avec terrasse à S’Agaró

649.000 €
133m2
3
2
E

Description de la propriété

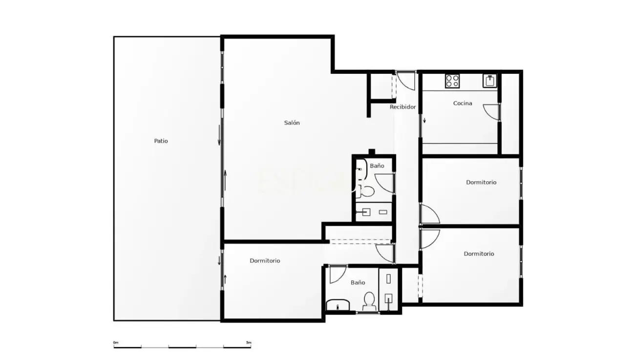
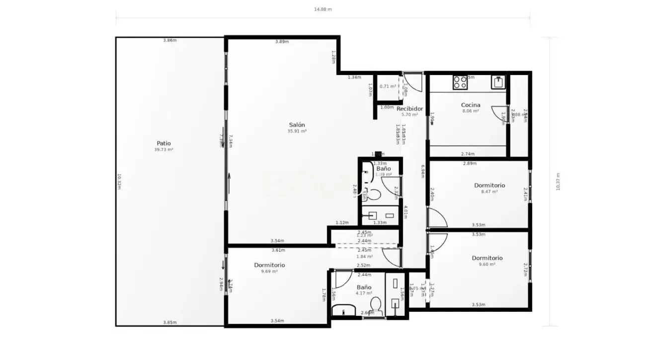
Espigul Real Estate Group présente ce magnifique appartement au premier étage, situé dans l’une des zones les plus exclusives de S’Agaró. La propriété fait partie d’une communauté bien entretenue avec ascenseur, piscine commune et jardins, et comprend également une place de parking privée et un débarras, offrant ainsi un haut niveau de confort dès le premier instant.

D’une surface construite de 133 m², le logement a été entièrement rénové avec un style moderne et élégant, offrant des espaces spacieux, lumineux et parfaitement optimisés. Il dispose de trois chambres doubles et de deux salles de bain complètes, conçues pour garantir le confort aussi bien au quotidien que lors de séjours de vacances.

Le cœur du logement est son salon-salle à manger accueillant, baigné d’une abondante lumière naturelle, qui se connecte directement à une grande terrasse privée. Cet espace extérieur est parfait pour profiter du climat méditerranéen, que ce soit pour se détendre au soleil, partager des repas en plein air ou créer un agréable coin détente dans un environnement tranquille.

La distribution et l’orientation du logement permettent de profiter d’une excellente entrée de lumière naturelle tout au long de la journée, créant une ambiance chaleureuse et accueillante dans toutes les pièces.

Son emplacement est, sans aucun doute, l’un de ses plus grands atouts. À seulement 3 minutes à pied de la plage et à 1 minute des restaurants, cafés et de tous les services, il permet de profiter d’une vie confortable sans avoir besoin d’utiliser la voiture. En même temps, il offre un environnement tranquille et exclusif, idéal pour se déconnecter. De plus, Barcelone se trouve à environ 1 heure et 15 minutes en voiture, facilitant aussi bien les escapades de week-end que les séjours plus longs.

Code de certificat d’habitabilité : CHG01137021001

Code de certificat de performance énergétique : HMLBX8J8Y

Impôts et frais d’acquisition non inclus (TVA ou ITP, notaire, enregistrement, gestion…)

Aucuns honoraires ne sont facturés à l’acheteur

Identification professionnelle : Espígul Real Estate Group | API 0975 | AICAT 5098

Espígul Real Estate Group, bienvenue chez vous

  • Construit 133 m2
  • Chambres 3
  • Salles de bains 2
  • Chauffage Bomba de calor
  • Climatisation
  • Ascenseur
  • Certification énergétique E

Localisation de la propriété

Ref 5489

Intéressé(e) ?

Propriétés similaires

Costa Brava

Élégant appartement à côté de La Gavina, à S’Agaró

Surface 24 m2
Chambres 1
Salles de bains 1
Costa Brava

Programme neuf à quelques pas de la mer à Sant Antoni de Calonge

Surface 100 m2
Chambres 3
Salles de bains 2
Costa Brava

Appartements neufs à Sant Antoni de Calonge

Surface 117 m2
Chambres 3
Salles de bains 2
Appelez-nous WhatsApp Plus d'informations