Luxusimmobilie in Vilassar de Dalt, nur 20 Minuten von Barcelona entfernt
Immobilienbeschreibung
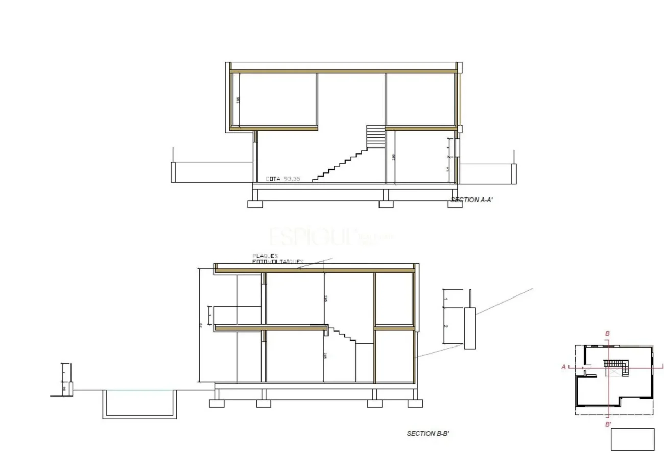
Entdecken Sie diese exklusive Villa in Vilassar de Dalt, ein 260 m² großes Anwesen auf einem 430 m² großen Grundstück, das entworfen wurde, um maximalen Komfort und einen zeitgemäßen Lebensstil zu bieten.
Es verfügt über 4 Schlafzimmer, 4 Bäder und eine Garage für zwei Autos.
Das Haus zeichnet sich durch seine weitläufigen, offenen Räume, seine Helligkeit und seine hochwertigen Steinoberflächen aus. Von jedem Winkel aus können Sie einen spektakulären Blick auf das Mittelmeer, die Berge und die Grünflächen genießen und so eine einzigartige Atmosphäre der Ruhe und Exklusivität schaffen.
Außenbereich zum Entspannen
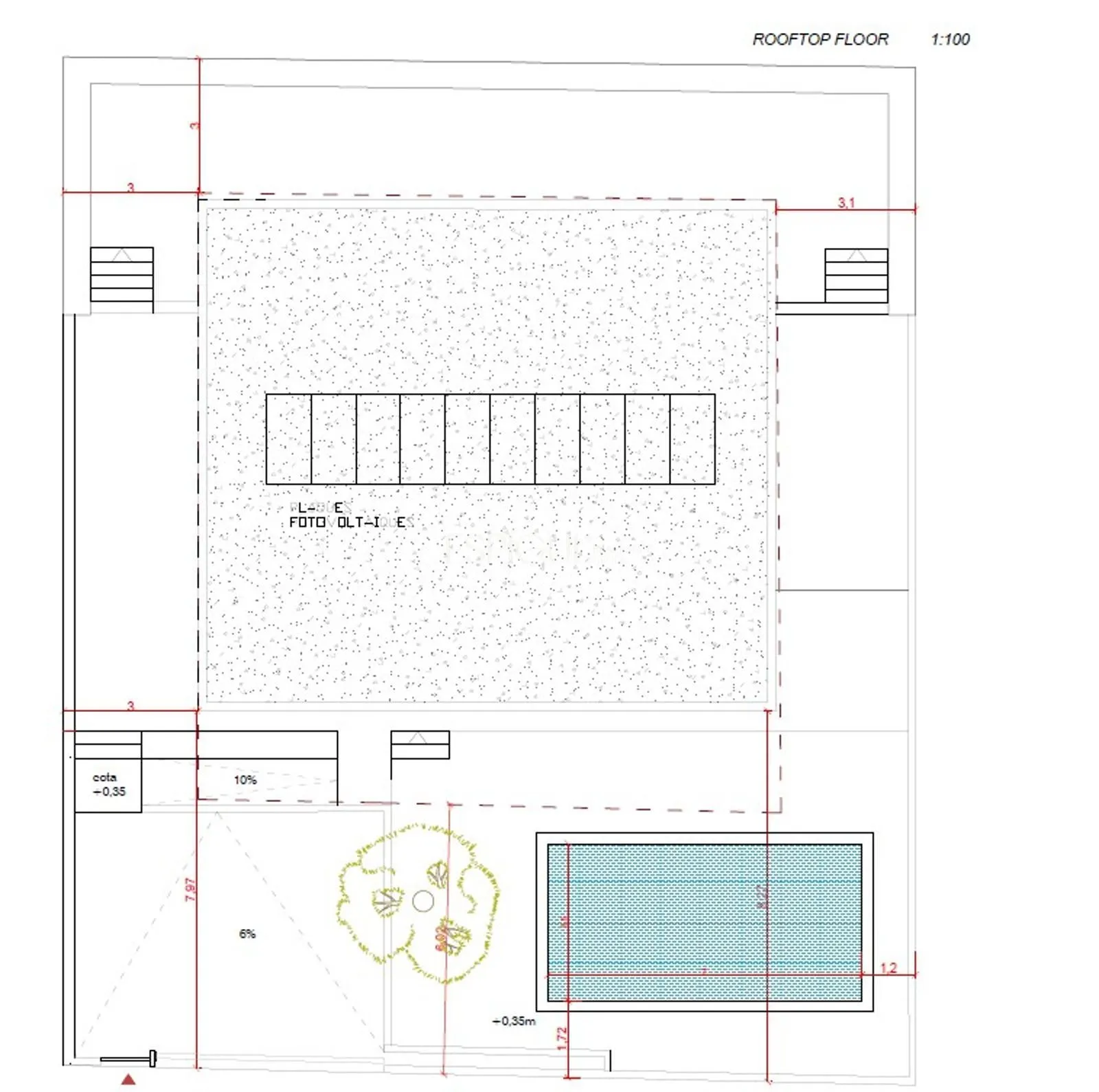
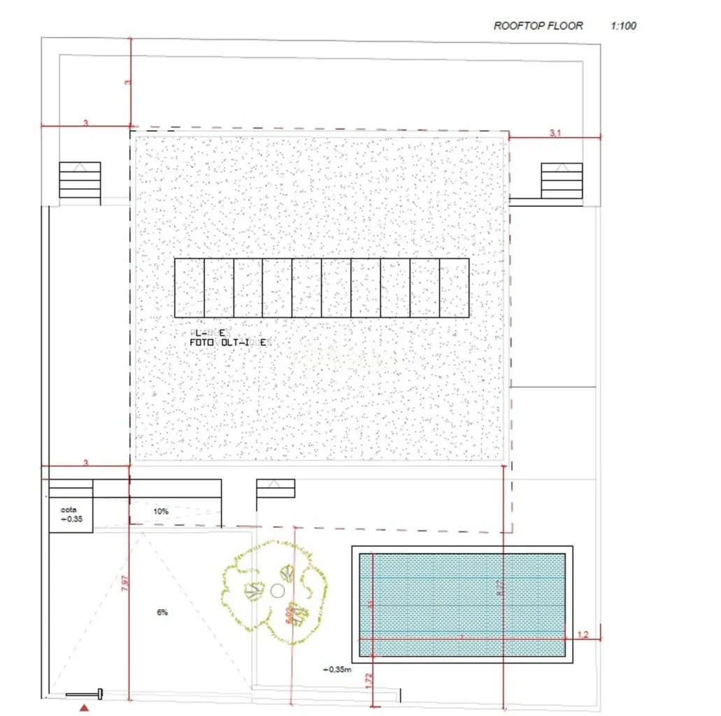
Privater Pool
20 m² große Terrasse
Privater Garten
Innenhof
Diese Bereiche machen das Anwesen zu einer echten Oase, in der Sie das ganze Jahr über das mediterrane Klima genießen können.
Darüber hinaus verfügt das Haus über eine Waschküche im Innenbereich und alle Annehmlichkeiten, die für ein modernes und funktionales Leben erforderlich sind.
Privilegierte Lage an der katalanischen Küste
Vilassar de Dalt ist eine erstklassige Wohngegend, die die Ruhe eines Dorfes mit der Nähe zu Barcelona verbindet, das nur 20 Autominuten entfernt ist.
Die Gegend bietet:
Internationale Schulen von Prestige
Restaurants, exklusive Geschäfte und Spas
Schnelle Anbindung an Barcelona und den Flughafen über die Autobahn
Wander- und Radwege
Eine einmalige Gelegenheit
Diese Villa ist ideal für Familien und Berufstätige, die eine sichere, exklusive und gut angebundene Umgebung suchen, ohne auf die Aussicht und den Küstencharme zu verzichten. Ihre Kombination aus Design, Eleganz, Privatsphäre und Nähe zu Dienstleistungen macht sie zu einer wirklich außergewöhnlichen Immobilie.
- Bebaute Fläche 260 m2
- Schlafzimmer 4
- Badezimmer 4
- Heizung Aerotermia
- Klimaanlage
- Energieausweis A
Lage der Immobilie
Ähnliche Immobilien
Luxus, Privatsphäre und Meerblick im Herzen von Sant Vicenç de Montalt
Interessiert? Anruf vereinbaren
Wenn Sie weitere Informationen zu dieser Immobilie wünschen, füllen Sie bitte alle Felder des Formulars aus.
Bitte geben Sie Ihre Daten ein, und ein Berater wird sich mit Ihnen in Verbindung setzen, um Ihnen weitere Informationen zukommen zu lassen.
Nachricht gesendet
Vielen Dank für Ihre Kontaktaufnahme mit Espígul
Das Team wird Ihre Anfrage prüfen, und ein Berater wird sich in Kürze mit Ihnen in Verbindung setzen