Villa d’obra nova en venda al Golf Masía Bach
Descripció de la propietat
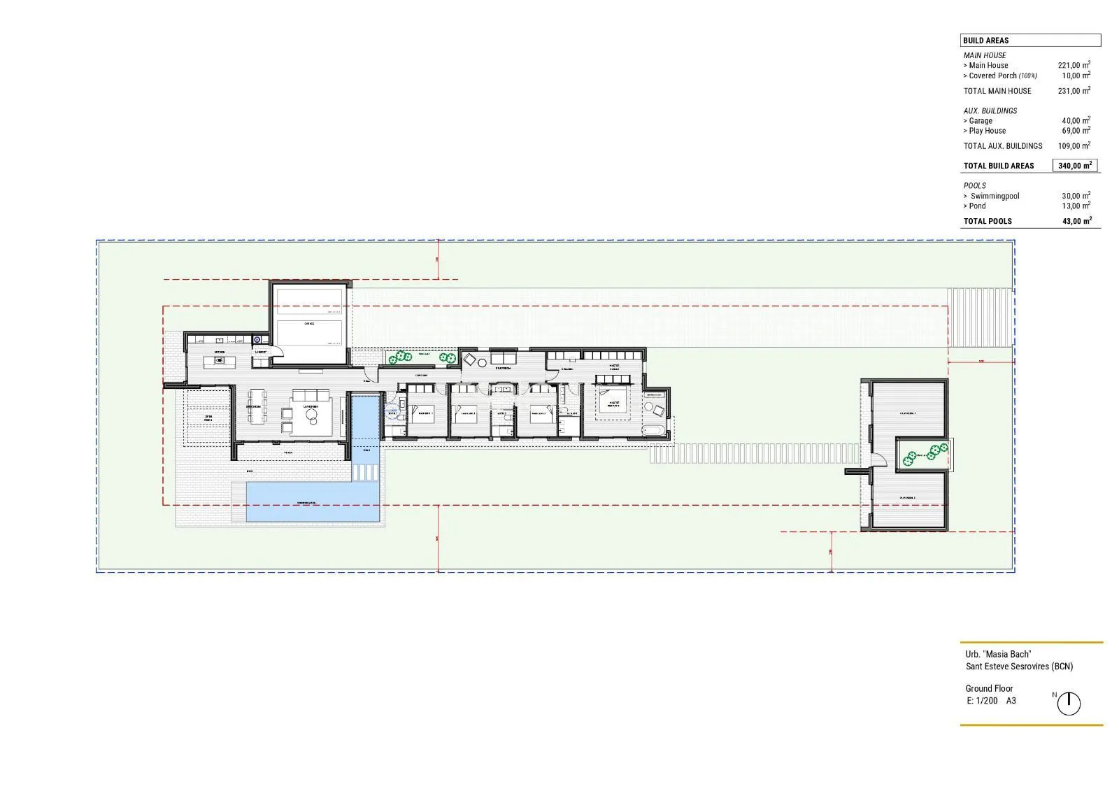
Espígul Real Estate Group presenta aquesta espectacular Villa d’Obra Nova distribuïda en una sola planta de 440 m2, situada en una parcel·la completament plana de 1.800 m al Golf Masía Bach.
L’habitatge orientat completament al SUD es divideix en zona de dia i zona de nit.
La zona de dia disposa d’un saló menjador connectat a la cuina de concepte obert amb illa que disposa d’un rentador tancat que connecta amb el garatge. El saló disposa de sortida directa al jardí que té un porxo davanter ideal per a zona d’estar i menjador exterior amb unes espectaculars vistes a la piscina.
La zona de nit disposa d’una màster suite de 48 m2 amb vestidor i bany amb banyera exempta amb vistes al jardí. Disposa de 2 suites més i dues habitacions dobles. A més un bany extra amb dutxa complementa la zona de nit i dóna servei com a bany de cortesia a la zona de dia.
Si vols conèixer tots els detalls demana ara més informació.
- Construïts 440 m2
- Habitacions 5
- Banys 4
- Calefacció Eléctrica
- Aire condicionat
- Certificació energètica A
Ubicació de la propietat
Propietats similars
Casa adossada en venda a la zona de l’Arxiu de Sant Cugat del Vallès
T’interessa? Programar una trucada
Si voleu més informació sobre aquesta propietat, si us plau, ompliu tots els camps del formulari
Si us plau, proporcioneu les vostres dades i un assessor es posarà en contacte amb vosaltres per proporcionar-vos més informació
Missatge enviat
Gràcies per posar-te en contacte amb Espígul
L’equip revisarà la teva sol·licitud i un assessor es posarà en contacte amb tu aviat