Exclusiva propietat reformada amb piscina i jardí a Premià de Dalt
Descripció de la propietat
Ubicada en una parcel·la de 765 m², aquesta exclusiva residència de 331 m² construïts es distribueix en tres plantes, totes elles connectades mitjançant ascensor privat, oferint el màxim nivell de confort i accessibilitat.
Situada en una de les zones més privilegiades de Premià de Dalt, la propietat destaca per la seva perfecta combinació d’elegància, funcionalitat i privacitat, convertint-se en una llar ideal per a aquells que busquen un estil de vida sofisticat en un entorn tranquil.
La planta principal acull un ampli i lluminós saló-menjador amb llar de foc, que s’obre directament al jardí, creant una transició natural entre interior i exterior i oferint un ambient càlid, íntim i ple de llum. La cuina, de concepte obert i disseny contemporani, ha estat concebuda per integrar els espais i potenciar la vida social de l’habitatge.
La zona de nit es compon de quatre amplis dormitoris: una magnífica suite principal i tres habitacions dobles, totes elles amb accés directe a una terrassa amb agradables vistes, aportant llum i continuïtat a cada estança. L’habitatge es completa amb tres banys complets i un lavabo de cortesia.
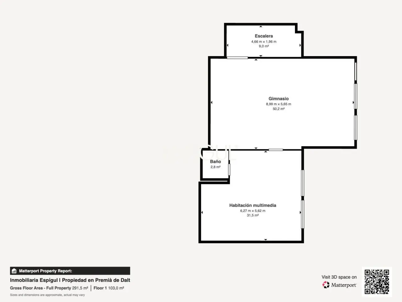
A la planta soterrani, la propietat disposa de dues àmplies sales polivalents, perfectes per adaptar-se a qualsevol necessitat: zona d’oci, despatx professional, home cinema o gimnàs privat.
L’exterior és, sens dubte, un dels seus grans atractius. Un acurat jardí d’aproximadament 650 m², juntament amb un acollidor porxo i una piscina privada, configuren un autèntic oasi de tranquil·litat i privacitat. A la part inferior de la parcel·la, un encantador espai amb arbres fruiters afegeix un toc natural i exclusiu al conjunt.
La propietat disposa de plaça de garatge per a 2 cotxes.
A tan sols 20 km de Barcelona, Premià de Dalt ofereix un entorn privilegiat, envoltat de natura i amb la proximitat a la Serralada de Marina, on els boscos mediterranis es combinen amb espectaculars vistes al mar. Una ubicació ideal per a famílies i per a aquells que desitgen gaudir d’un estil de vida relaxat sense renunciar a tots els serveis: escoles, comerços, restauració i equipaments esportius.
Codi cèdula d’habitabilitat: CHB06084124001
Codi certificat eficiència energètica: G6L2TT2JH
Impostos i despeses de compravenda no inclosos
No es cobren honoraris al comprador
Identificació professional: Espígul Real Estate Group | API 0975 | AICAT 5098
Espígul Real Estate Group, benvinguts a casa
- Construïts 331 m2
- Habitacions 5
- Banys 4
- Calefacció Bomba de calor
- Aire condicionat
- Certificació energètica D
Ubicació de la propietat
Propietats similars
Casa de disseny a la Cisa
Vistes al mar a Premià de Dalt
T’interessa? Programar una trucada
Si voleu més informació sobre aquesta propietat, si us plau, ompliu tots els camps del formulari
Si us plau, proporcioneu les vostres dades i un assessor es posarà en contacte amb vosaltres per proporcionar-vos més informació
Missatge enviat
Gràcies per posar-te en contacte amb Espígul
L’equip revisarà la teva sol·licitud i un assessor es posarà en contacte amb tu aviat