Àmplia casa cantonera amb vistes al mar i piscina comunitària a Teià
Descripció de la propietat
Casa adossada de 250 m² distribuïda en tres plantes, ubicada a Teià. Un habitatge ideal per a famílies que busquen qualitat de vida, amplitud i confort en un entorn residencial plàcid. Gaudeix d’una magnífica orientació sud que garanteix llum natural a totes les estances.
L’habitatge forma part d’una exclusiva zona comunitària amb una cuidada piscina, el lloc perfecte per desconnectar.
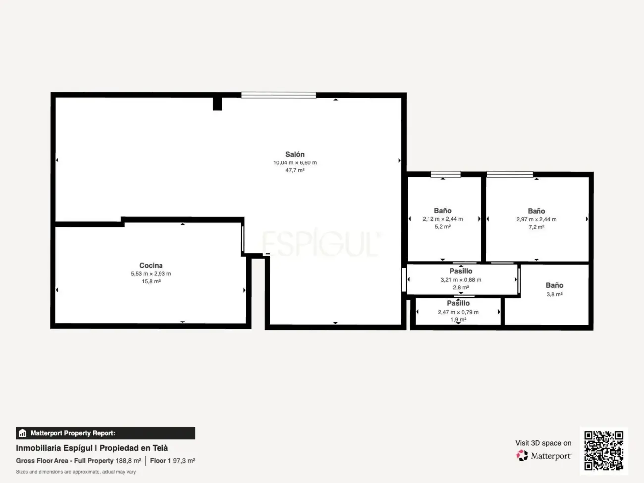
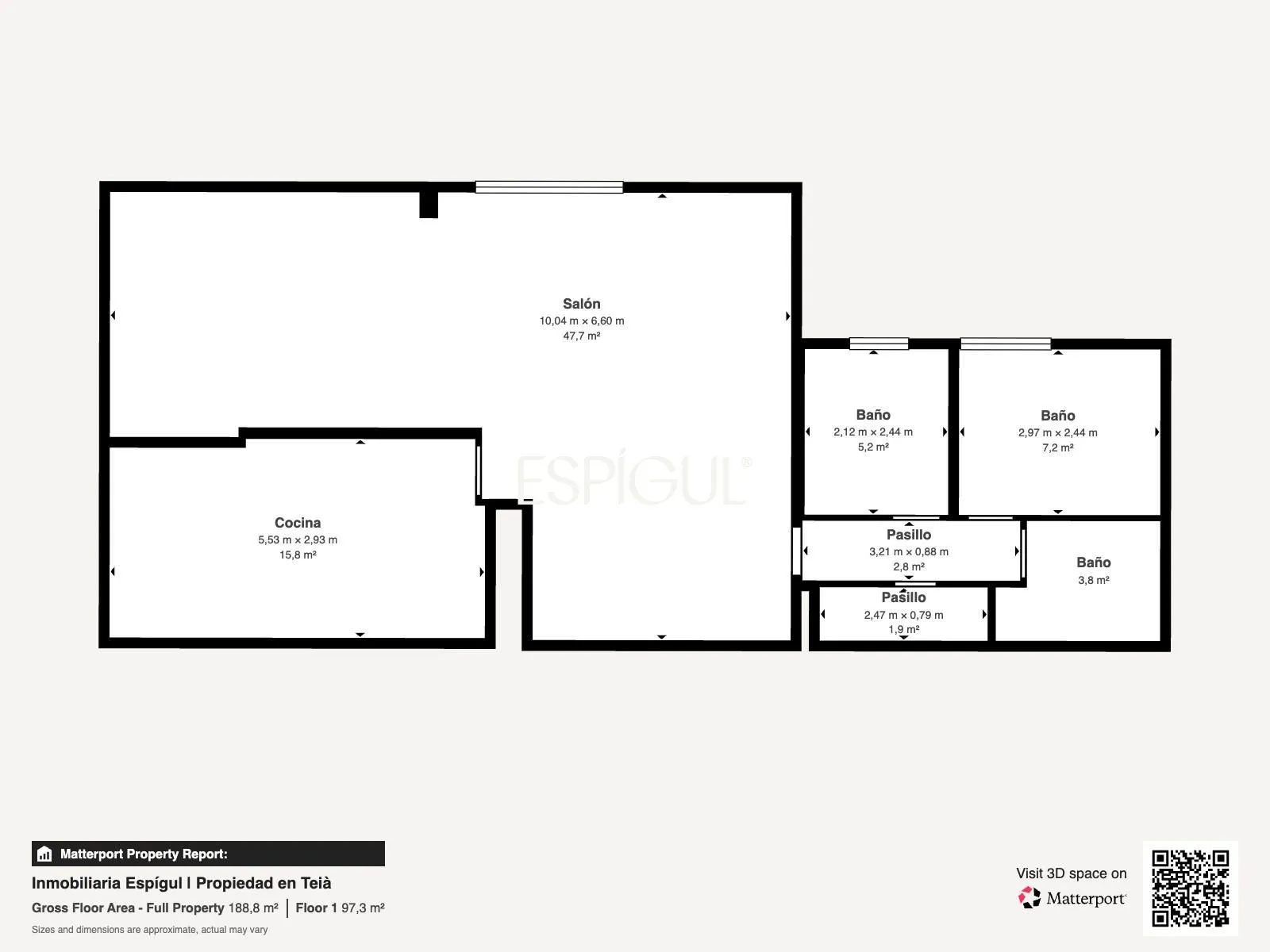
La planta baixa està dissenyada per oferir comoditat i funcionalitat. El saló, a doble nivell i amb llar de foc, s’obre directament a la terrassa i al jardí, generant una agradable connexió entre els espais interiors i exteriors, ideal per gaudir de moments de relax o reunions a l’aire lliure.
La cuina és àmplia, amb un disseny modern i funcional i té accés directe a la terrassa. També compta amb una habitació addicional, un bany complet i una pràctica zona de bugaderia que facilita l’organització de la llar.
A la primera planta s’ubica l’àmplia suite principal, un espai pensat per al descans i la intimitat, que compta amb vestidor, bany en suite i accés directe a una terrassa que regala agradables vistes i una sensació única d’amplitud i tranquil·litat.
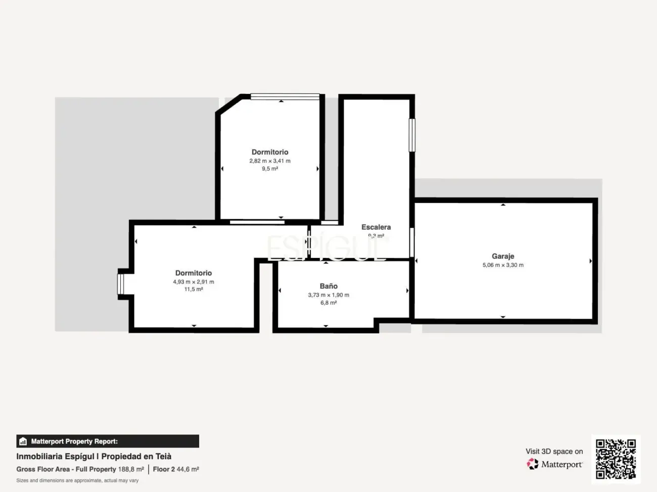
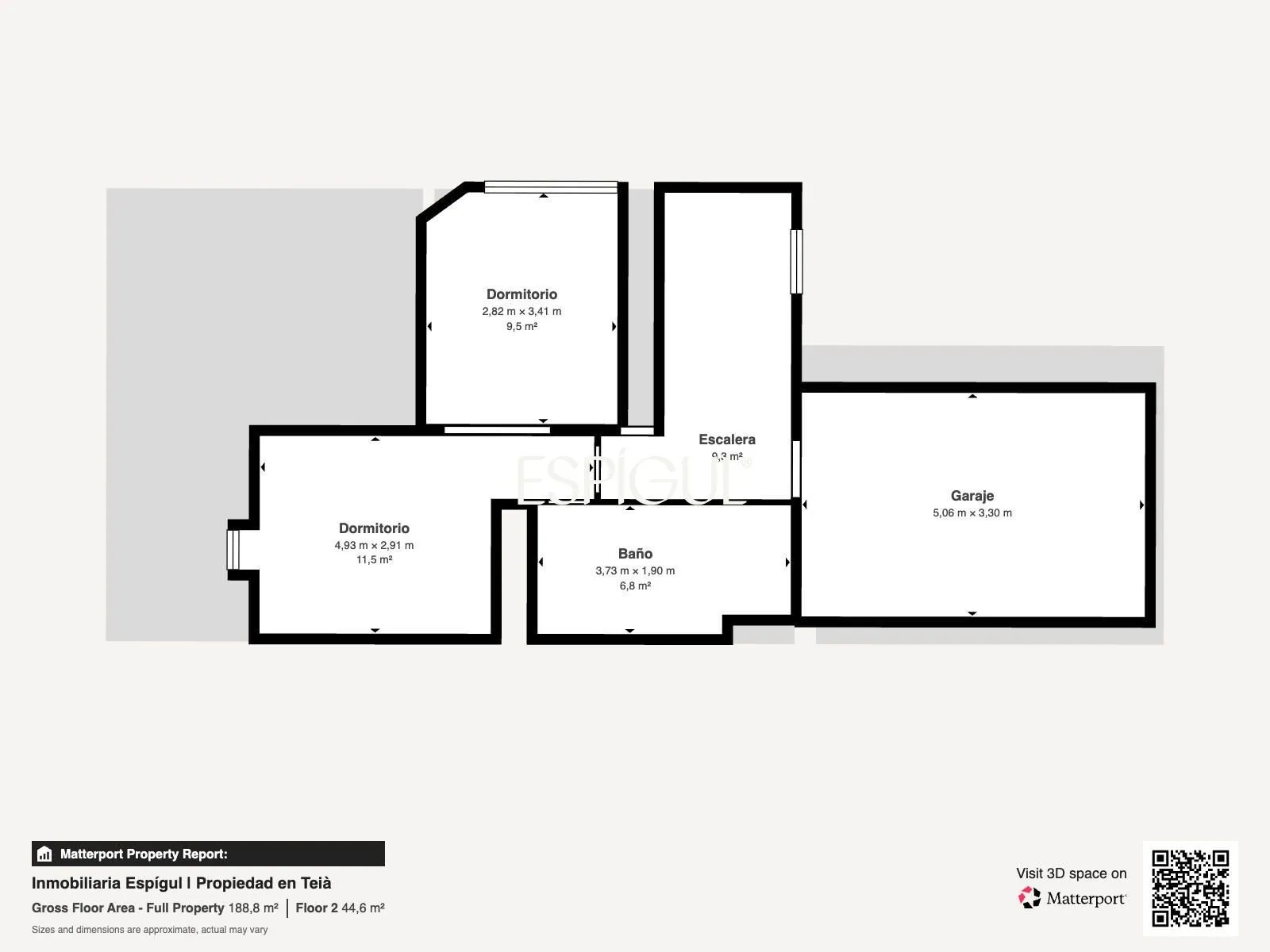
La segona planta acull tres habitacions amb gran entrada de llum natural i armaris encastats. En aquesta mateixa planta es troba un bany complet.
A l’exterior, l’habitatge ofereix un atractiu jardí privat amb zona de barbacoa, un autèntic espai de gaudi pensat per aprofitar-lo durant tot l’any, ja sigui en reunions familiars, àpats a l’aire lliure o moments de relax.
A la planta jardí, l’habitatge compta amb una àmplia sala polivalent amb cuina auxiliar i bany complet, dissenyada per adaptar-se a qualsevol necessitat.
La propietat disposa de garatge privat amb capacitat per a un vehicle, a més d’espai exterior al jardí per estacionar fins a dos cotxes addicionals.
Teià és una localitat situada a la comarca del Maresme, entre el mar i la muntanya, a pocs quilòmetres de Barcelona. És coneguda per ser una zona residencial tranquil·la, molt valorada per aquells que busquen qualitat de vida a prop de la ciutat sense renunciar a la calma.
Si busqueu un habitatge on gaudir d’un estil de vida tranquil, familiar i sense massificacions, aquesta és una oportunitat que no podeu deixar escapar!
Contacteu amb nosaltres per a més informació o per concertar una visita.
- Construïts 250 m2
- Habitacions 5
- Banys 3
- Calefacció Gas natural
- Aire condicionat
- Piscina comunitària
- Certificació energètica E
Ubicació de la propietat
Propietats similars
T’interessa? Programar una trucada
Si voleu més informació sobre aquesta propietat, si us plau, ompliu tots els camps del formulari
Si us plau, proporcioneu les vostres dades i un assessor es posarà en contacte amb vosaltres per proporcionar-vos més informació
Missatge enviat
Gràcies per posar-te en contacte amb Espígul
L’equip revisarà la teva sol·licitud i un assessor es posarà en contacte amb tu aviat