Пентхаус с двойной ориентацией и большим потенциалом
Описание объекта
Этот пентхаус предлагает уникальную возможность для тех, кто ищет создать дом по индивидуальному проекту в привилегированном месте. Его главное преимущество — двойная ориентация, которая позволяет наслаждаться естественным освещением в течение всего дня и отличной вентиляцией во всех помещениях.
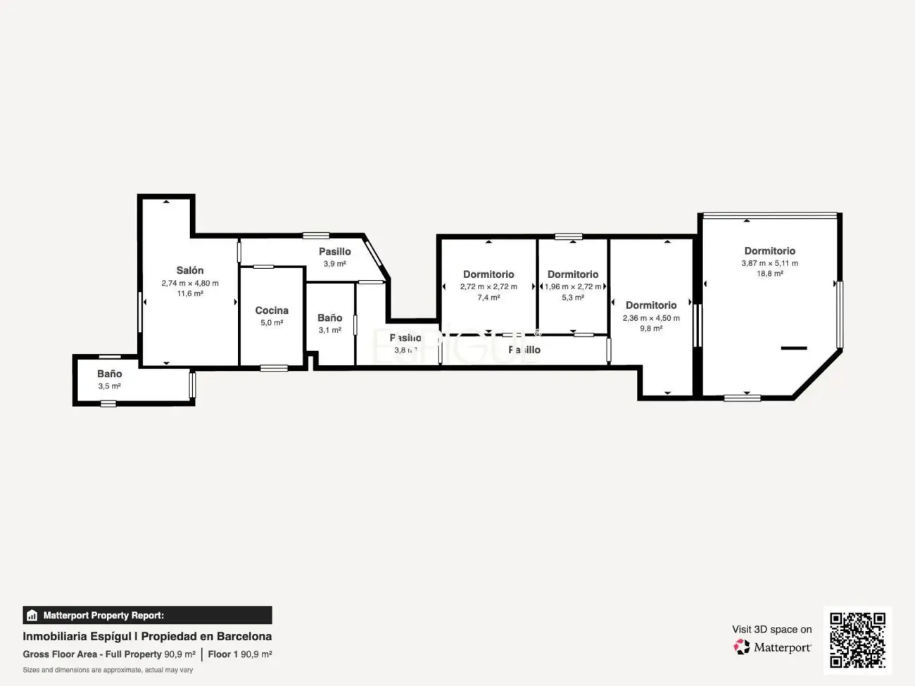
Располагает тремя спальнями и ванной комнатой, а также кухней с возможностью объединения с гостиной, что предоставляет возможность создать открытое и современное пространство, соединенное с остальной частью жилья.
Недвижимость имеет две террасы с впечатляющими видами: одна из них просторная и в настоящее время крытая, но ее можно открыть, чтобы полностью использовать и наслаждаться панорамными видами на Камп Ноу, Монжуик и Саграда Фамилия. Другая терраса предлагает виды на море, идеальна для отдыха и наслаждения окружающей средой.
Вся квартира имеет внешнюю ориентацию, что гарантирует освещенность во всех помещениях и ощущение простора и комфорта. Это квартира с большим потенциалом для ремонта, где можно создать современные и персонализированные пространства, адаптированные к образу жизни, который вы ищете.
Жилье с безграничными возможностями, идеальное для тех, кто хочет инвестировать в пентхаус с индивидуальностью, светом и привилегированными видами.
Расположен в районе Матернитат, тихом и хорошо связанном районе с метро, автобусами и легким доступом к основным магистралям. Выделяется своими зелеными зонами, такими как территория Матернитат, и близостью к услугам: школам, супермаркетам и магазинам. Кроме того, находится рядом с Камп Ноу и центром Барселоны, сочетая удобство и качество жизни.
- Построен 88 m2
- Спальни 3
- Ванные комнаты 1
- Отопление Eléctrica
- Кондиционирование воздуха
- Лифт
- Энергетическая сертификация E
Местоположение объекта
Похожие объекты
Интересует? Запланировать звонок
Если вы хотите получить больше информации об этом объекте, пожалуйста, заполните все поля в форме
Пожалуйста, предоставьте свои данные, и консультант свяжется с вами для предоставления дополнительной информации
Сообщение отправлено
Спасибо за обращение в Espígul
Команда рассмотрит ваш запрос, и консультант свяжется с вами в ближайшее время