Eixample, Barcelona, Barcelona

Квартира на продажу под ремонт с террасой на улице Каррер-де-Мальорка

720.000 €
99m2
2
1
E

Описание объекта

Espígul Real Estate Group представляет великолепную возможность для ремонта в самом центре района Эшампле, всего в нескольких метрах от Пассейг-де-Грасиа, в одном из самых эксклюзивных и востребованных районов Барселоны.

Квартира расположена в историческом здании 1883 года, которое в настоящее время находится в процессе комплексной модернизации, включающей полную замену лифта и реставрацию фасада, что значительно повысит стоимость всего здания.

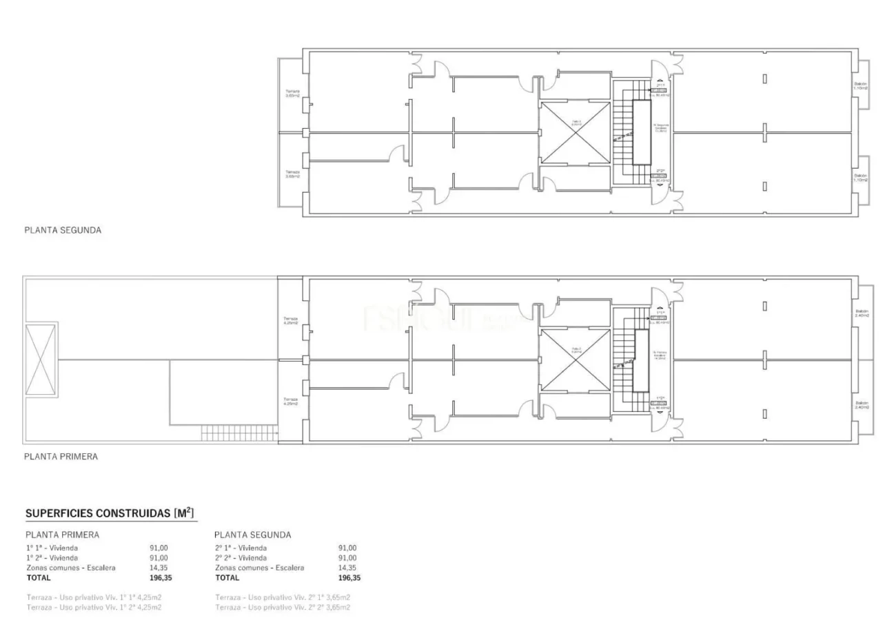
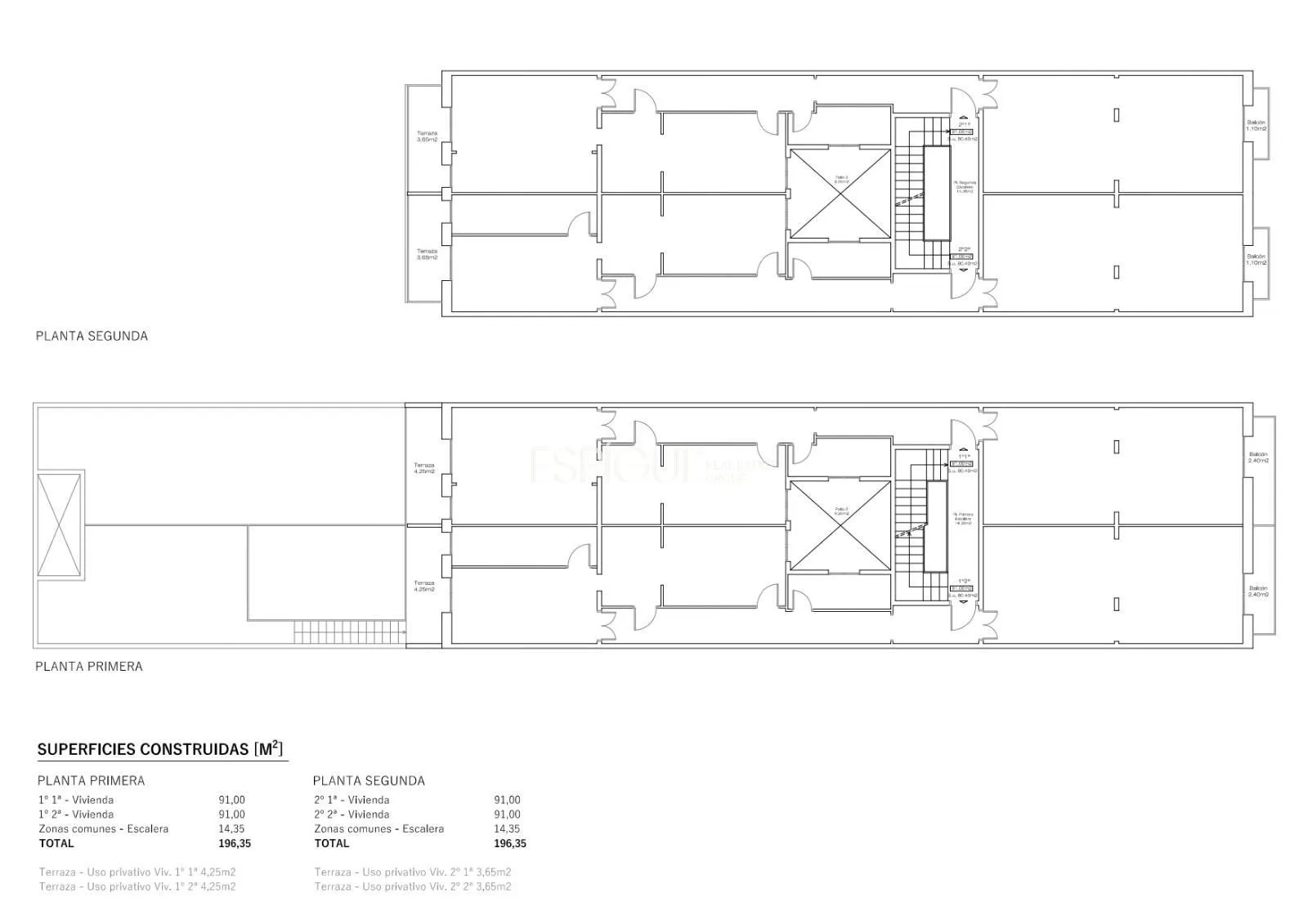
В квартире сохранились оригинальные архитектурные элементы, которые делают Эшампле уникальным: подлежащая восстановлению гидравлическая плитка, высокие потолки и традиционные деревянные балки — детали, позволяющие спроектировать ремонт с характером и индивидуальностью. Ее классическая планировка четко разделяет внешнюю зону, выходящую на улицу, и внутреннюю зону, где находится частная терраса площадью 26 м², ориентированная во внутренний двор, — редкая и очень востребованная привилегия в городе.

Расположение, несомненно, является одним из ее главных преимуществ: привилегированное место в окружении модернистской архитектуры, роскошных бутиков, изысканных ресторанов и всех услуг, предлагаемых в самом сердце Эшампле. Жить здесь означает жить в одном из самых ценных районов Барселоны, где традиции, дизайн и городская жизнь находятся в равновесии.

Эта недвижимость представляет собой отличную инвестицию с широким потенциалом для персонализации и гарантированным повышением стоимости благодаря окружающей среде, зданию и запланированным улучшениям.

Мы приглашаем вас договориться о посещении с Espígul Real Estate Group, чтобы лично открыть для себя потенциал этой уникальной недвижимости в Эшампле.

  • Построен 99 m2
  • Спальни 2
  • Ванные комнаты 1
  • Отопление Gas natural
  • Лифт
  • Энергетическая сертификация E

Местоположение объекта

Ref 4583

Интересует?

Похожие объекты

Barcelona

Квартира с великолепной террасой в Эскерра-де-л’Эшампле

Площадь 82 m2
Спальни 3
Ванные комнаты 1