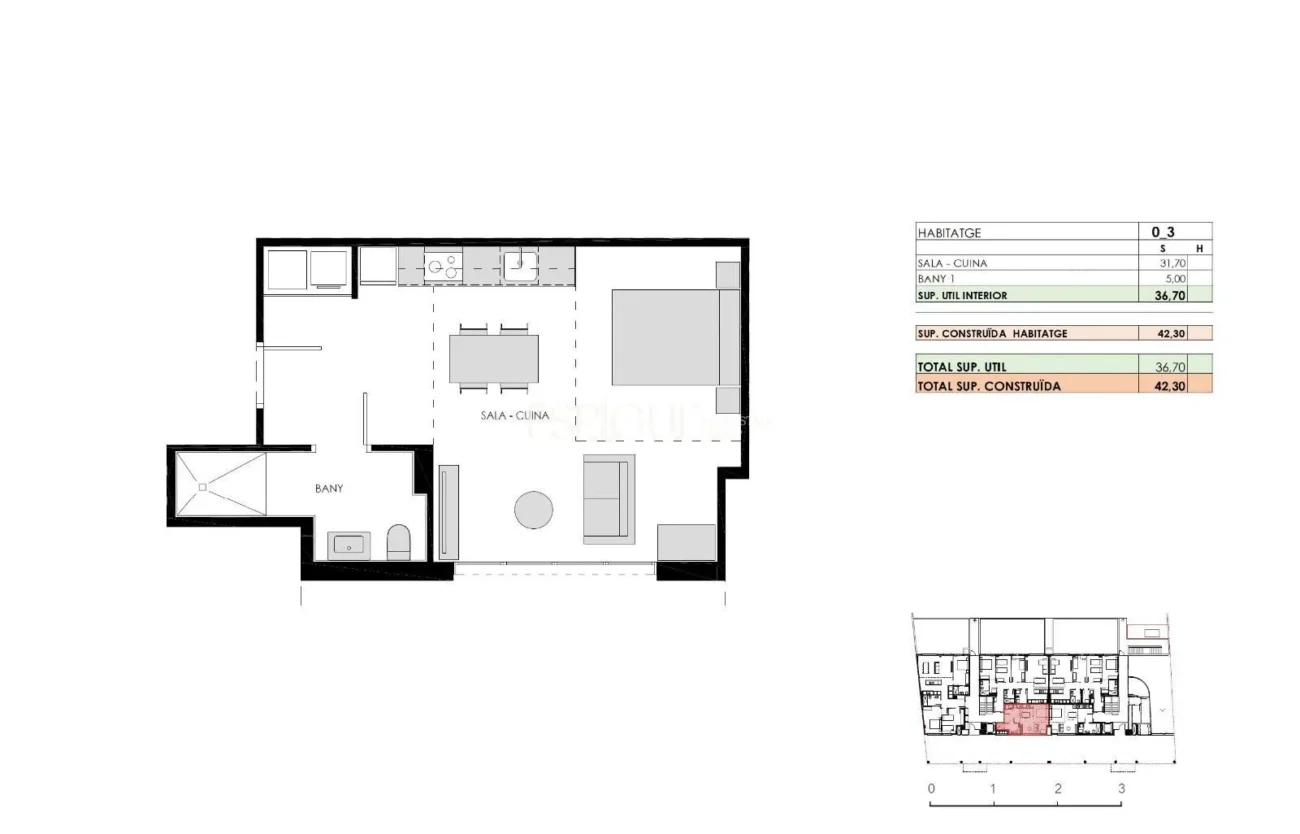
Venta de pisos