Espectacular Ático reformado en Prosperidad
Descripción de la propiedad
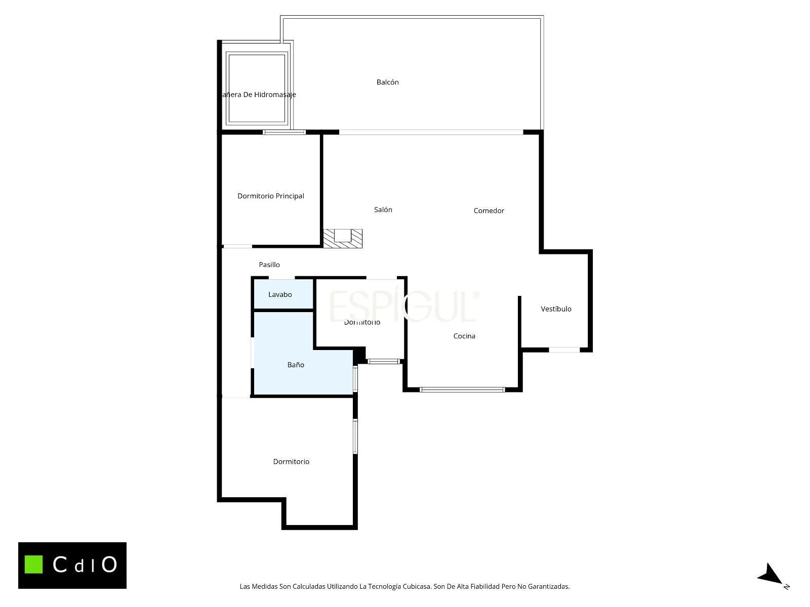
Ático en venta situado en Madrid, en la zona de Chamartín. Cuenta con 161 m2 construidos y 136 m2 útiles, más una terraza de 20 m2 que aporta luz y amplitud a las estancias principales. Se distribuye en tres habitaciones y dos baños, en un edificio de siete plantas con ascensor. La calefacción es centralizada y dispone de armarios empotrados, cocina amueblada, aire acondicionado, y suministro de agua, luz y gas para una vivienda lista para entrar.
La distribución aprovecha al máximo la superficie, con zonas claras y conectadas que facilitan la vida diaria. El salón es amplio y luminoso, con acceso directo a la terraza, ideal para desayunos o descansos al aire libre. La cocina amueblada ofrece una base sólida para la vida más práctica, con suficiente espacio de almacenamiento y conectividad con el resto de las áreas de uso común. Las tres habitaciones presentan buena iluminación y versatilidad, aptas para dormitorio principal, despacho o zona de invitados. Los dos cuartos de baño están equipados con acabados modernos, facilitando el uso diario y la comodidad.
El inmueble cuenta con conserje y puerta blindada, lo que aporta seguridad y tranquilidad en el día a día. El acceso para discapacitados facilita la llegada y la movilidad dentro del edificio, aumentando la comodidad para todo tipo de personas. La vivienda se beneficia de un sistema de calefacción centralizada que garantiza confort durante todo el año y control personalizable en cada estancia. El aire acondicionado añade versatilidad estacional, manteniendo temperaturas agradables en cualquier momento. En cuanto a servicios, el inmueble incluye suministro de agua, luz y gas, sin necesidad de gestiones complejas para empezar a disfrutar.
La ubicación en Chamartín suma valor para usos residenciales o mixtos, con buena conectividad de transporte y proximidad a servicios clave. En los alrededores encontrarás comercios, restauración y zonas de ocio, así como zonas verdes y parques cercanos para escapadas rápidas. La zona cuenta con colegios, centros de salud y equipamientos culturales que facilitan la vida diaria sin necesidad de grandes desplazamientos. El acceso a las principales vías de la ciudad permite desplazarte con rapidez hacia el centro o a barrios periféricos, lo que es clave para quienes buscan eficiencia en la movilidad.
La vivienda destaca por su amplitud y por las posibilidades que ofrece para personalizarla a distintos perfiles de comprador. Sus 20 m2 de terraza permiten ampliar el uso exterior sin salir de casa, ideal para eventos o momentos de relax sin abandonar la vivienda. Este ático combina un alto nivel de confort con una distribución práctica, pensada para familias, profesionales o inversores que valoran una buena base para reformar a su gusto. Ofrece la tranquilidad de un entorno consolidado y la comodidad de un inmueble moderno con acabados actuales.
- Construido 161 m2
- Dormitorios 3
- Baños 2
- Calefacción Centralizada
- Aire acondicionado
- Terrazas 20.00 m2
- Ascensor
- Certificación energética D
Ubicación de la propiedad
Propiedades similares
Piso en venta en El Viso
¿Interesado/a? Programar una llamada
Si deseas obtener más información sobre esta propiedad, por favor completa todos los campos del formulario
Por favor, proporciona tus datos y un asesor se pondrá en contacto contigo para brindarte más información
Mensaje enviado
Gracias por contactar con Espígul
El equipo revisará su solicitud y un asesor se pondrá en contacto con usted pronto