Studio avec identité propre dans la rue Muntaner
Description de la propriété
Découvrez votre prochain espace idéal !
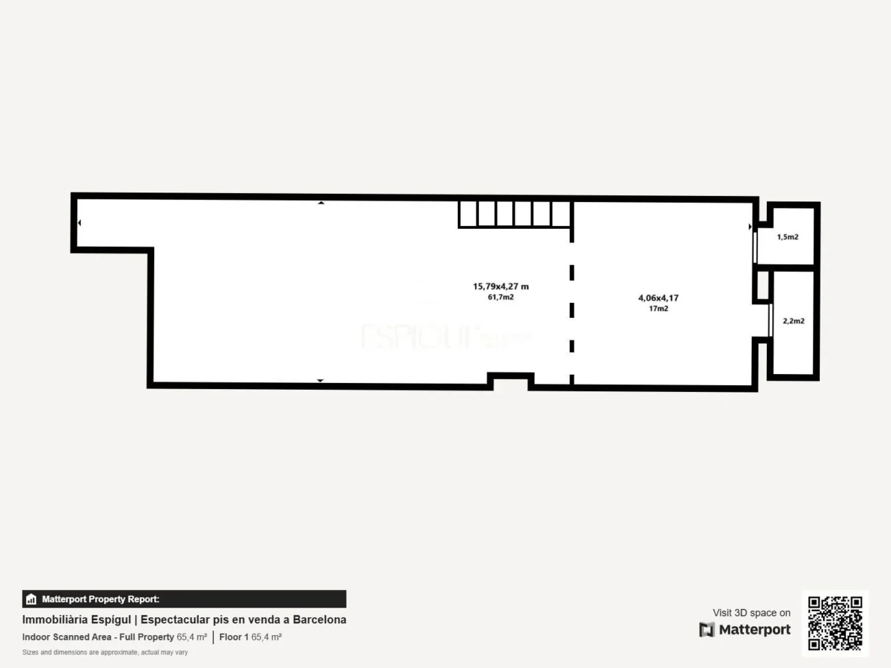
Studio au rez-de-chaussée dans un état spectaculaire, situé dans la rue prisée de Muntaner. Avec 87 m² construits et des plafonds de 4 mètres de haut, cet espace offre l’amplitude et la chaleur nécessaires pour développer votre travail et vous reposer lorsque vous en avez besoin.
Caractéristiques principales :
– Mezzanine de 16 m² : parfait pour créer un espace supplémentaire, que ce soit comme aire de repos, bureau ou stockage.
– Murs en briques apparentes : une touche industrielle et moderne qui apporte chaleur et style unique.
– Accès à un petit patio : idéal pour profiter de moments en plein air ou créer votre propre coin de verdure.
– Hauteur de plafond de 4 mètres : sensation d’amplitude et de liberté, avec possibilité de personnaliser l’espace à votre goût.
Ce studio est une opportunité unique pour ceux qui recherchent un espace polyvalent, que ce soit pour vivre, travailler ou entreprendre. Sa conception et sa distribution en font un lieu plein de possibilités où passer d’innombrables heures de manière confortable et dans un environnement plein de commodités.
Ne laissez pas passer cette opportunité ! Planifiez votre visite et découvrez tout le potentiel que cet espace a à vous offrir.
- Construit 87.00 m2
- Certification énergétique D
Localisation de la propriété
Intéressé(e) ? Planifier un appel
Si vous souhaitez plus d'informations sur cette propriété, veuillez remplir tous les champs du formulaire
Veuillez fournir vos coordonnées et un conseiller vous contactera pour vous fournir plus d'informations
Message envoyé
Merci de nous avoir contactés, Espígul
L'équipe examinera votre demande et un conseiller vous contactera bientôt