Sant Feliu De Guixols, Costa Brava

Propiedad única en Sant Feliu de Guíxols

750.000 €
600m2
6
G

Descripción de la propiedad

En Sant Feliu de Guíxols se encuentra una propiedad verdaderamente singular, con un encanto especial y un sinfín de posibilidades. Se trata de un inmueble para reformar que combina elementos arquitectónicos de una antigua casa colonial con los amplios espacios de lo que fue una fábrica, lo que le confiere una personalidad única y un gran potencial.

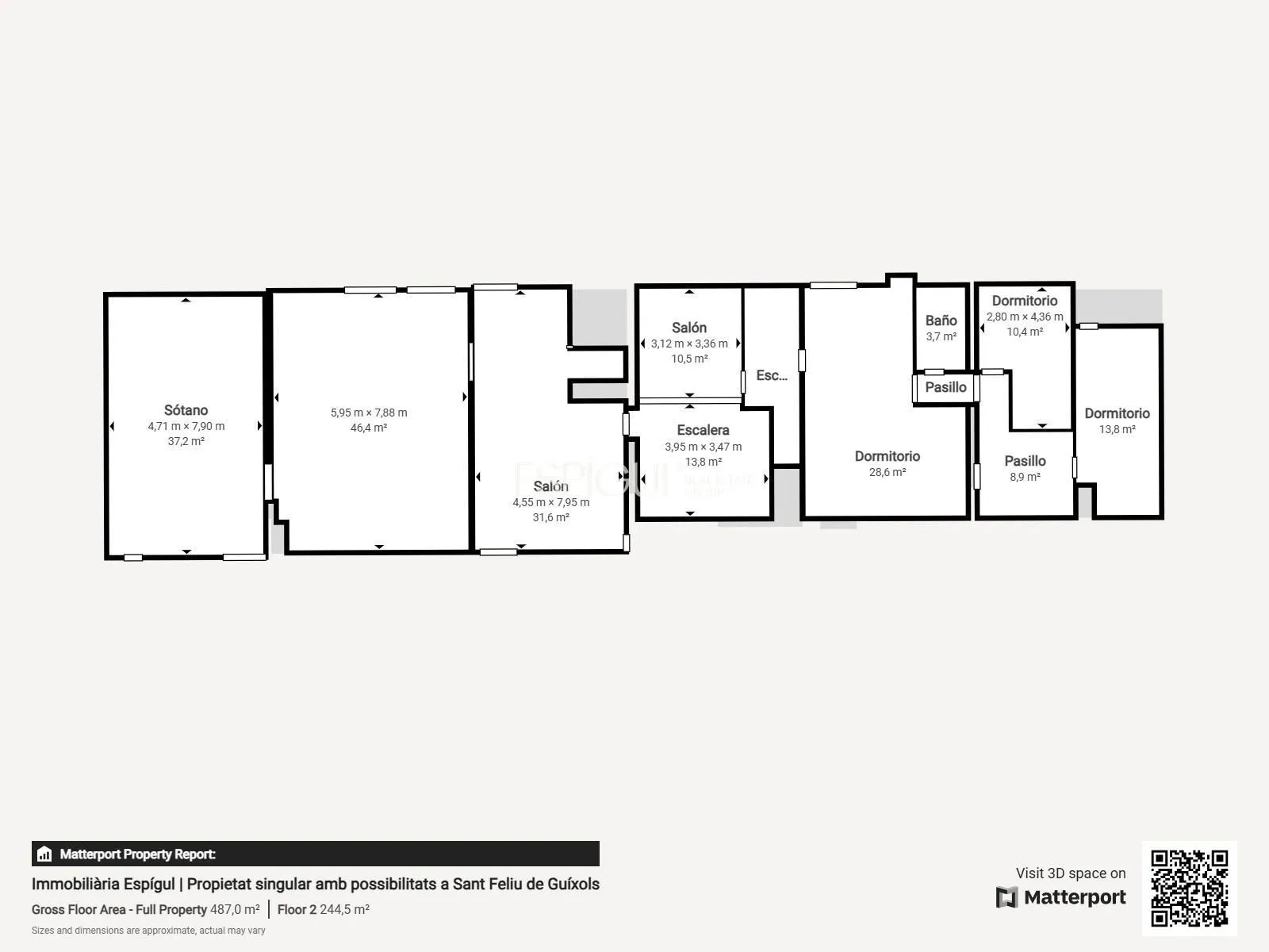
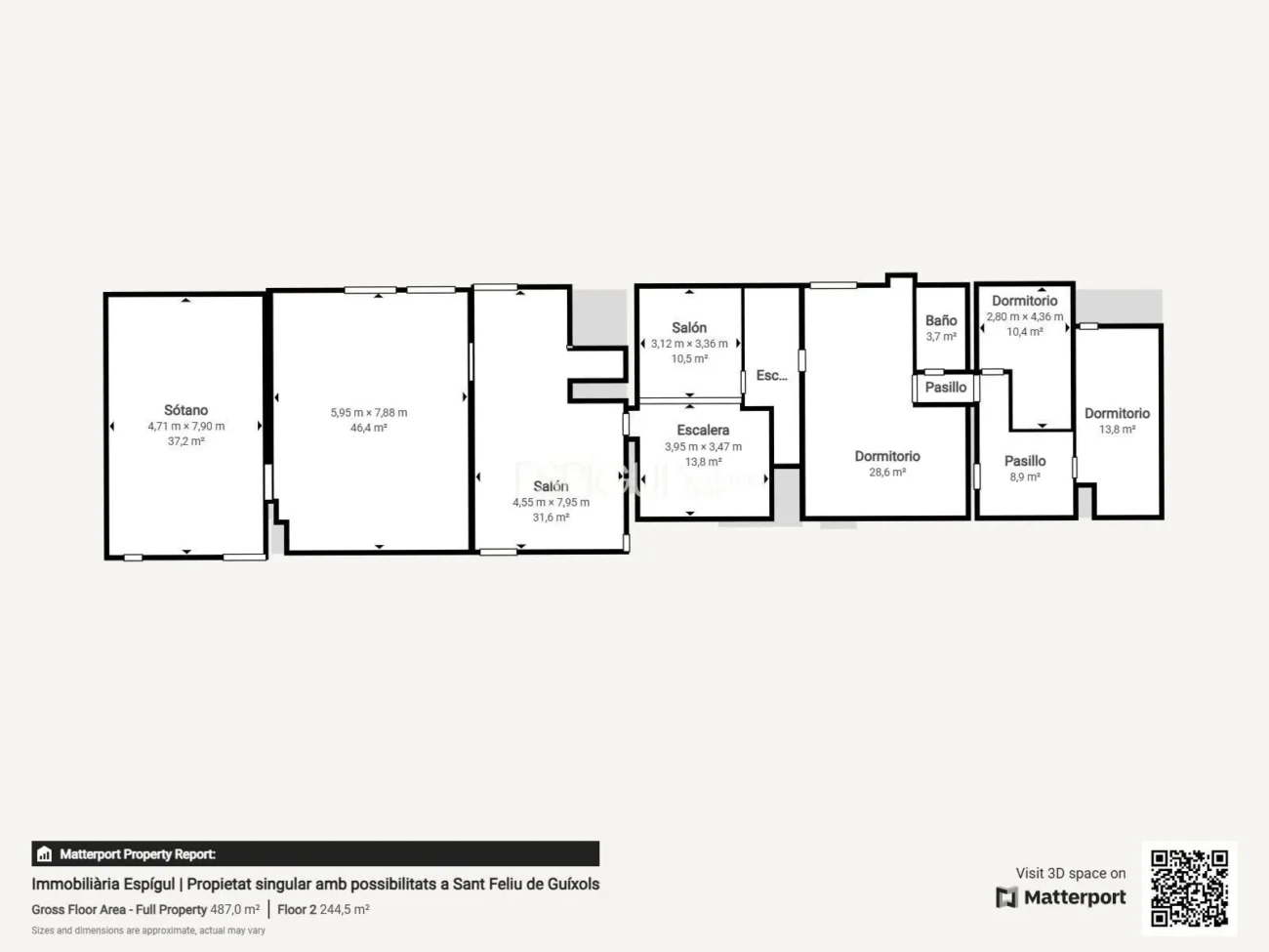
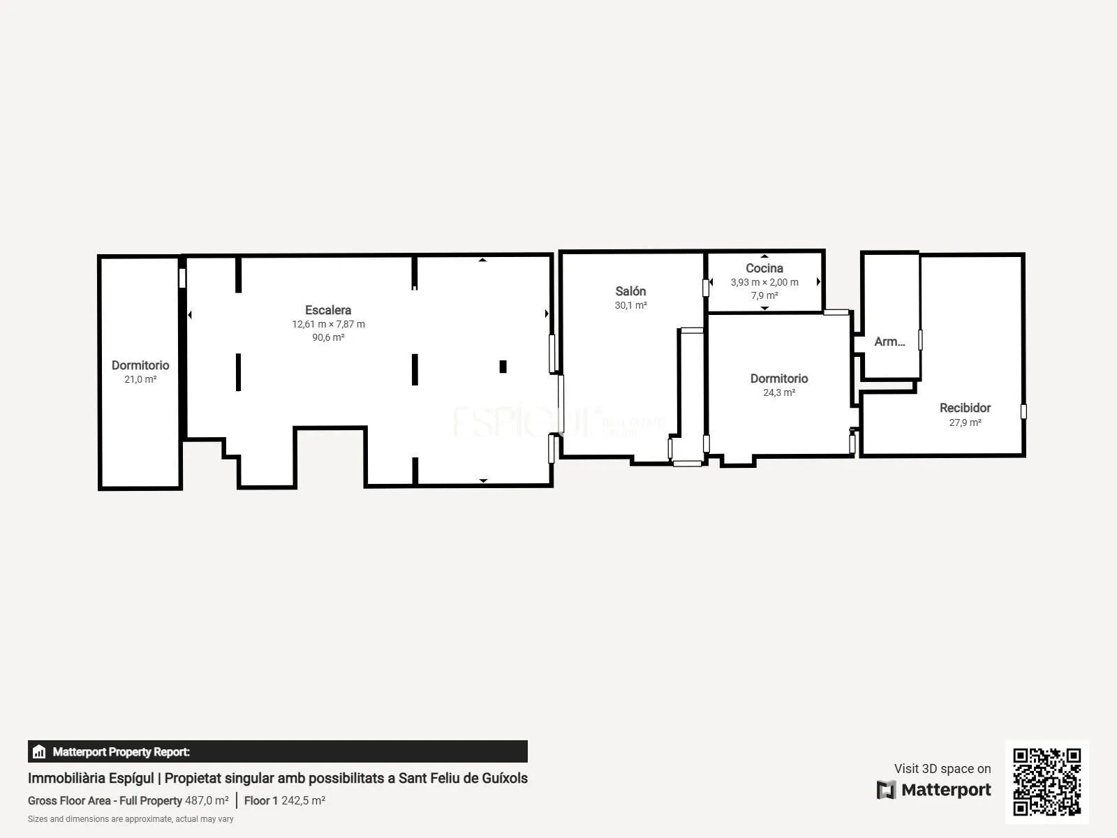
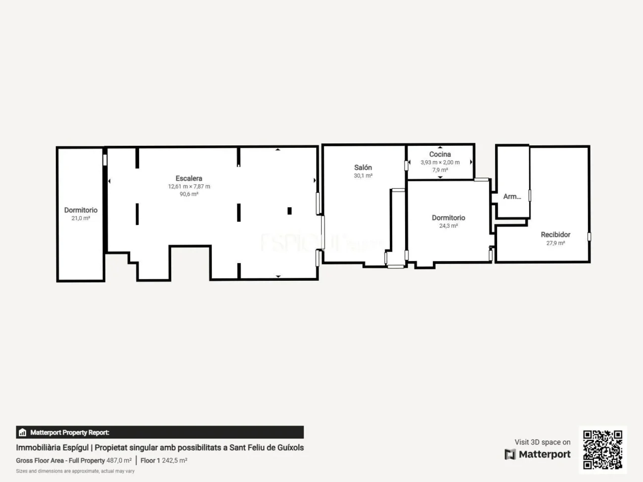
La propiedad ocupa una parcela de 1.044 m² y tiene construidos unos 600 m². Su arquitectura conserva detalles originales como techos altos, vigas de madera y grandes ventanales, que llenan los espacios de luz natural y crean un ambiente acogedor y versátil, perfecto para dar forma a cualquier tipo de proyecto, siempre dentro de los parámetros urbanísticos vigentes.

Desde su interior se disfruta de agradables vistas al jardín y a las montañas que rodean la zona, en un entorno tranquilo pero muy bien situado: a tan solo cinco minutos caminando del centro del pueblo y muy cerca de las espectaculares calas y playas de la Costa Brava. Además, está próxima a servicios de alto nivel como un club náutico, campos de golf y una variada oferta gastronómica.

Una de las grandes ventajas de esta finca es que, al contar con dos referencias catastrales en una sola propiedad, permite construir hasta 2.034 m². Esto abre la puerta a múltiples opciones: desde una residencia privada de lujo, hasta proyectos de vivienda compartida, alojamiento para personas mayores, hotel boutique, espacios de coworking o cualquier iniciativa que necesite un lugar con carácter y personalidad.

En definitiva, esta propiedad no es simplemente una casa: es una oportunidad única para crear algo extraordinario en una de las zonas más atractivas de la Costa Brava.

  • Construido 600 m2
  • Dormitorios 6
  • Calefacción Eléctrica
  • Certificación energética G

Ubicación de la propiedad

Ref 4052

¿Interesado/a?

Propiedades similares

Costa Brava

Encantadora casa de pueblo a pocos pasos del mar en Sant Feliu de Guíxols

Superficie 144 m2
Dormitorios 4
Baños 3
Costa Brava

Fantástica casa en Port Salvi, Sant Feliu de Guíxols

Superficie 132 m2
Dormitorios 4
Baños 3
Costa Brava

Exclusiva vivienda entre Platja d’Aro y Calonge

Superficie 173 m2
Dormitorios 3
Baños 2
Llámanos WhatsApp Más información