Eixample, Barcelona, Barcelona

Piso en venta en Carrer de Mallorca

690.000 €
98m2
2
1
E

Descripción de la propiedad

Espígul Real Estate Group presenta una magnífica oportunidad de reforma en pleno Eixample Derecho, a escasos metros del Passeig de Gràcia, en una de las zonas más exclusivas y codiciadas de Barcelona.

La vivienda se sitúa en una finca histórica de 1883 que actualmente está en proceso de mejora integral, con la renovación completa del ascensor y la rehabilitación de la fachada, lo que revalorizará notablemente todo el edificio.

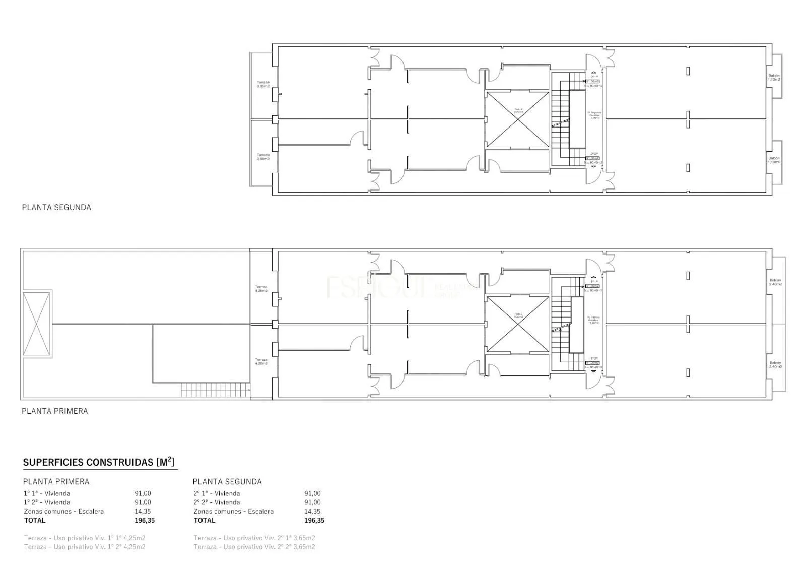
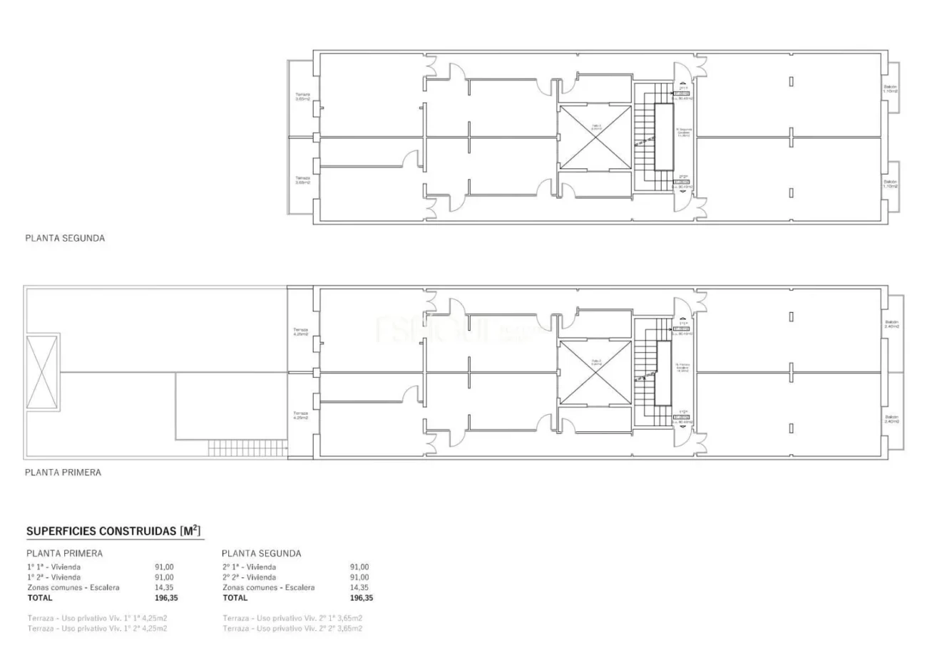
El piso conserva elementos arquitectónicos originales que hacen único al Eixample: baldosas hidráulicas recuperables, techos altos y vigas de madera tradicionales, detalles que permiten proyectar una reforma con carácter y personalidad. Su distribución clásica separa claramente la zona exterior hacia la calle de la zona interior, donde se encuentra una terraza privada de 3,65m² orientada al patio de manzana, un privilegio poco habitual y muy demandado en la ciudad.

La ubicación es, sin duda, uno de sus grandes atractivos: un enclave privilegiado rodeado de arquitectura modernista, boutiques de lujo, restauración selecta y todos los servicios del corazón del Eixample. Vivir aquí significa hacerlo en una de las áreas más valoradas de Barcelona, donde tradición, diseño y vida urbana conviven en equilibrio.

Esta propiedad representa una excelente inversión, con un amplio potencial de personalización y una revalorización garantizada gracias al entorno, la finca y las mejoras previstas.

Le invitamos a concertar una visita con Espígul Real Estate Group para descubrir personalmente el potencial de este singular inmueble en el Eixample.

  • Construido 98 m2
  • Dormitorios 2
  • Baños 1
  • Calefacción Gas natural
  • Ascensor
  • Certificación energética E

Ubicación de la propiedad

Ref 4584

¿Interesado/a?

Propiedades similares

Barcelona

Dúplex en venta en Calle de los Castillejos, 371

Superficie 107 m2
Dormitorios 2
Baños 2
Barcelona

Piso en venta en carrer Aribau

Superficie 72 m2
Dormitorios 2
Baños 2
Barcelona

Dúplex en venta en Calle de los Castillejos, 371

Superficie 86 m2
Dormitorios 2
Baños 2
Llámanos WhatsApp Más información