Chalet independiente con piscina en Valldoreix
Descripción de la propiedad
ESPECTACULAR VILLA DE LUJO EN VALLDOREIX
Espígul Real Estate Group presenta esta exclusiva residencia unifamiliar en Montmany, la zona más cotizada de Valldoreix. Disfrute de privacidad absoluta, un entorno natural privilegiado y excelentes conexiones con Sant Cugat y Barcelona.
Diseño y Espacio: Esta impresionante vivienda de 888 m² construidos destaca por su diseño contemporáneo y sus grandes ventanales que fusionan el interior con el paisaje.
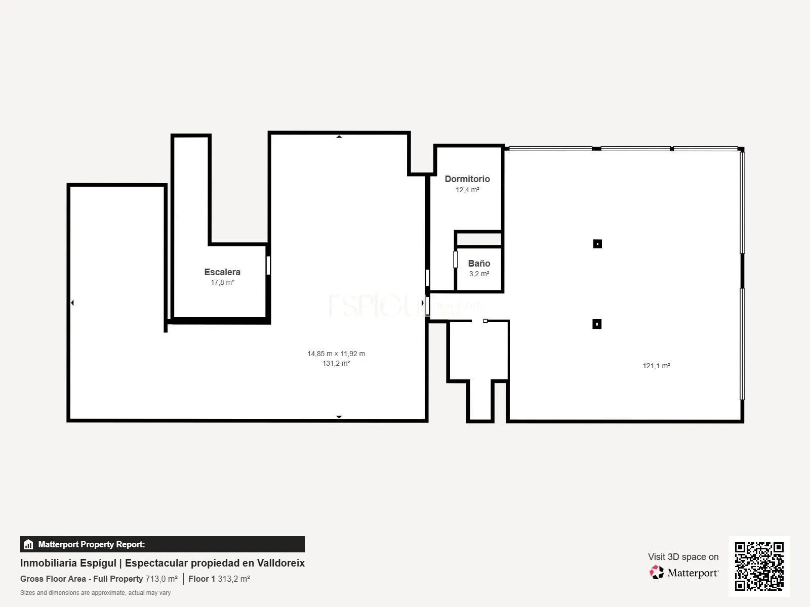
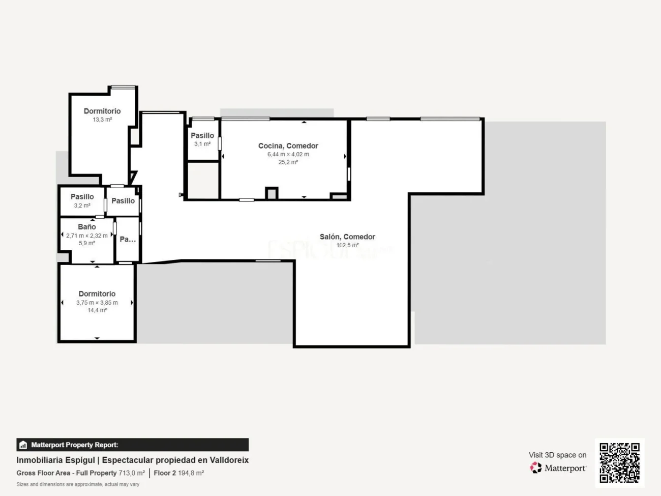
Distribución Funcional:
Planta Principal:
El salón-comedor principal, luminoso y espacioso, cuenta con salida directa a una gran terraza y al jardín, con acceso inmediato a la zona de barbacoa, ideal para el entretenimiento. Además, esta planta ofrece una suites completas para mayor comodidad.
La cocina es un verdadero centro neurálgico: un espacio moderno y funcional, equipado con electrodomésticos integrados, amplias zonas de almacenaje, y una elegante barra para desayunos que invita a la socialización. Su diseño minimalista y la iluminación integrada crean un ambiente sofisticado y práctico. Además en esta planta tenemos la sala de lavandería para mayor comodidad.
Planta Superior:
Tres suites adicionales con baños privados y acceso a terrazas individuales con vistas. Despacho profesional. Y una sala multifuncional con salida directa a la piscina.
Planta Sótano/Versátil: Estudio independiente de 101 m² con acceso exterior, espacio polivalente ideal para gimnasio/cine y zona de lavandería.
Servicios Exclusivos: Amplísimo garaje para 5 vehículos con acceso directo desde la vía.
Jardín con piscina privada y zonas chill-out con total intimidad.
La propiedad cuenta con un total de 5 suites.
Rodeada de naturaleza y con conexión inmediata a zonas verdes y senderos, esta casa ofrece un estilo de vida privilegiado y sin estrés. Es una inversión segura y una oportunidad irrepetible en Valldoreix por su dimensión, distribución inteligente y potencial de revalorización.
No deje escapar esta oportunidad única. Por sus dimensiones, acabados de alta gama y ubicación prime, esta villa representa el estilo de vida que usted merece.
Contacte hoy mismo con Espígul Real Estate Group y agende su visita privada para experimentar su verdadero potencial.
- Construido 1046 m2
- Dormitorios 6
- Baños 5
- Certificación energética E
Ubicación de la propiedad
Propiedades similares
Casa unifamiliar en venta en Can Mates, Sant Cugat del Vallès
Casa adosada reformada en venta en Sant Domènec
Casa adosada en venta en Parc Central
¿Interesado/a? Programar una llamada
Si deseas obtener más información sobre esta propiedad, por favor completa todos los campos del formulario
Por favor, proporciona tus datos y un asesor se pondrá en contacto contigo para brindarte más información
Mensaje enviado
Gracias por contactar con Espígul
El equipo revisará su solicitud y un asesor se pondrá en contacto con usted pronto