Casa unifamiliar con piscina en Mirasol, Sant Cugat del Vallès
Descripción de la propiedad
Exclusiva casa unifamiliar en Mirasol – Sant Cugat del Vallès
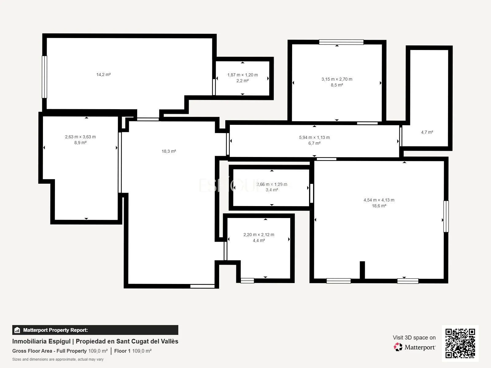
Espígul Real Estate Group presenta esta magnífica vivienda de 153 m² construidos en una sola planta sobre una parcela de 465 m², pensada para ofrecer comodidad, funcionalidad y calidad de vida.
La vivienda dispone de un amplio y luminoso salón-comedor con chimenea, que conecta mediante grandes ventanales con el porche con pérgola, ideal como zona chill out y para disfrutar del exterior.
La cocina de diseño, moderna y totalmente equipada, cuenta con sistema de ósmosis para el agua, además de acceso directo a la zona de lavandería, aportando gran comodidad al día a día.
La zona de descanso se compone de:
- Un dormitorio individual
- Un dormitorio doble
- Una suite principal con armarios empotrados, vestidor y baño completo
- Segundo baño completo
En el exterior, la propiedad ofrece un amplio jardín privado con piscina y zona de barbacoa, perfecto para disfrutar en familia. Dispone de zona de aparcamiento exterior con punto de carga para vehículo eléctrico.
Como valor añadido, la vivienda cuenta con una casita independiente, con habitación doble y baño completo, ideal como espacio de invitados, despacho o sala polivalente.
Entre sus calidades destacan:
- Calefacción de gas natural
- Aire acondicionado frío/calor
- Sistema de ósmosis en cocina
Ubicada en la demandada zona de Mirasol (Sant Cugat del Vallès), esta casa combina diseño, confort y tranquilidad.
Contacta con Espígul Real Estate Group para más información o para concertar una visita.
- Construido 153 m2
- Dormitorios 4
- Baños 3
- Calefacción Gas natural
- Aire acondicionado
- Certificación energética C
Ubicación de la propiedad
Propiedades similares
Casa adosada en venta en el Parc Central
Casa pareada en venta en Arxiu
Casa adosada reformada en venta en Sant Domènec
¿Interesado/a? Programar una llamada
Si deseas obtener más información sobre esta propiedad, por favor completa todos los campos del formulario
Por favor, proporciona tus datos y un asesor se pondrá en contacto contigo para brindarte más información
Mensaje enviado
Gracias por contactar con Espígul
El equipo revisará su solicitud y un asesor se pondrá en contacto con usted pronto