Sant Quirze Parc - Vallsuau - Castellet, Sant Quirze Del Valles, Barcelona

Casa en venta en Vallsuau

910.000 €
318m2
4
3
E

Descripción de la propiedad

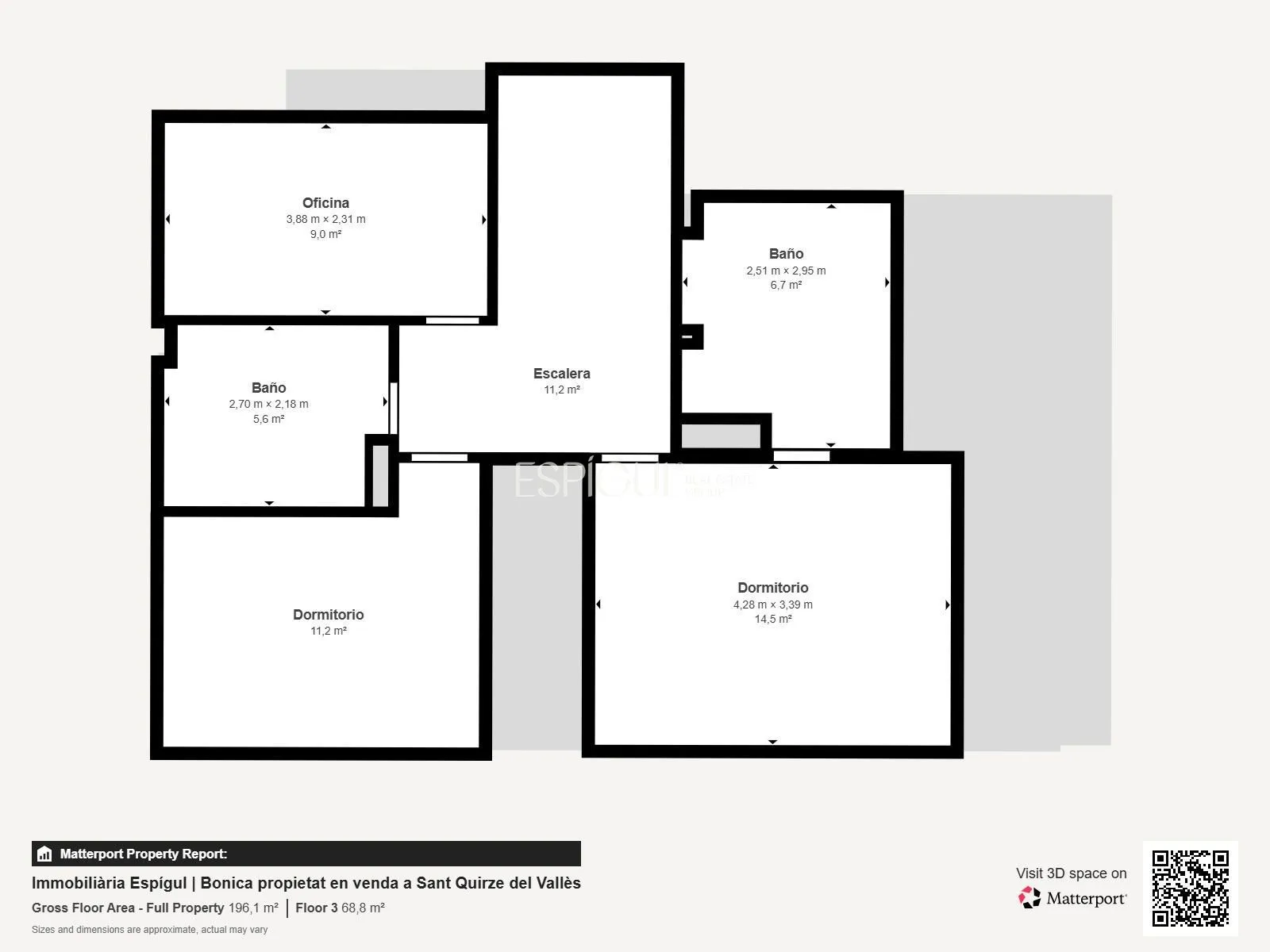
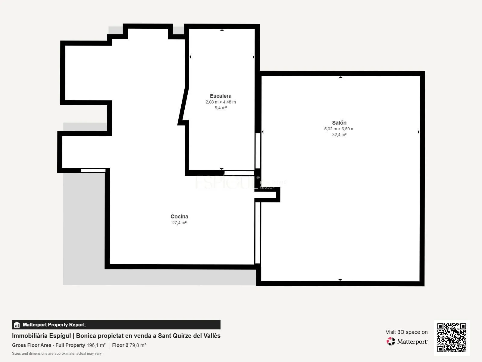
Exclusiva vivienda de 318 m² construidos (226 m² útiles), distribuida en 4 plantas, con piscina, jardín privado y acabados de alta gama.

Planta baja: amplio recibidor con zona de trastero y garaje con capacidad para 3 coches.

Planta principal (zona de día): espectacular salón con cocina de concepto abierto, totalmente equipada con electrodomésticos de alta gama NEFF (horno de vapor y microondas integrados), teppanyaki, instalaciones ocultas en la encimera, hueco para doble nevera y sistema de recogida de residuos orgánicos. Dispone además de lavadero independiente con ventilación natural, aseo de cortesía y salida directa a la terraza y al jardín privado con piscina, pérgola, porche, zona de barbacoa y cocina exterior.

Segunda planta: una suite principal con terraza privada, dos habitaciones adicionales y un baño completo.

Tercera planta (buhardilla): amplia estancia con preinstalaciones para convertirla en suite, además de dos terrazas privadas con vistas.

La vivienda cuenta con ventanas de PVC, pavimentos de parquet, baños completamente reformados con mamparas y griferías Geberit, todas las estancias con split de aire acondicionado y calefacción por gas natural.

Un hogar único que combina comodidad, diseño y exclusividad, listo para entrar a vivir.

¡No dejes pasar esta oportunidad única en Vallsuau!

 Contacta ahora para más información y visita.

  • Construido 318 m2
  • Dormitorios 4
  • Baños 3
  • Calefacción Gas natural
  • Aire acondicionado
  • Certificación energética E

Ubicación de la propiedad

Ref 4277

¿Interesado/a?

Propiedades similares

Sant Cugat del Vallès

Casa pareada en venta en Arxiu

Superficie 197 m2
Dormitorios 4
Baños 5
Sant Cugat del Vallès

Casa Adosada en venta en Eixample

Superficie 256 m2
Dormitorios 4
Baños 3
Matadepera

Casa en venta con vistas panorámicas en Cavall Bernat, Matadepera

Superficie 445 m2
Dormitorios 4
Baños 4
Llámanos WhatsApp Más información