Parc Central, Sant Cugat del Vallès, Barcelona

Casa adosada en venta en el Parc Central

1.050.000 €
186m2
3
3
D

Descripción de la propiedad

Espigul Real Estate Group te presenta en casa adosada en una comunidad cerrada en el Parc Central. 

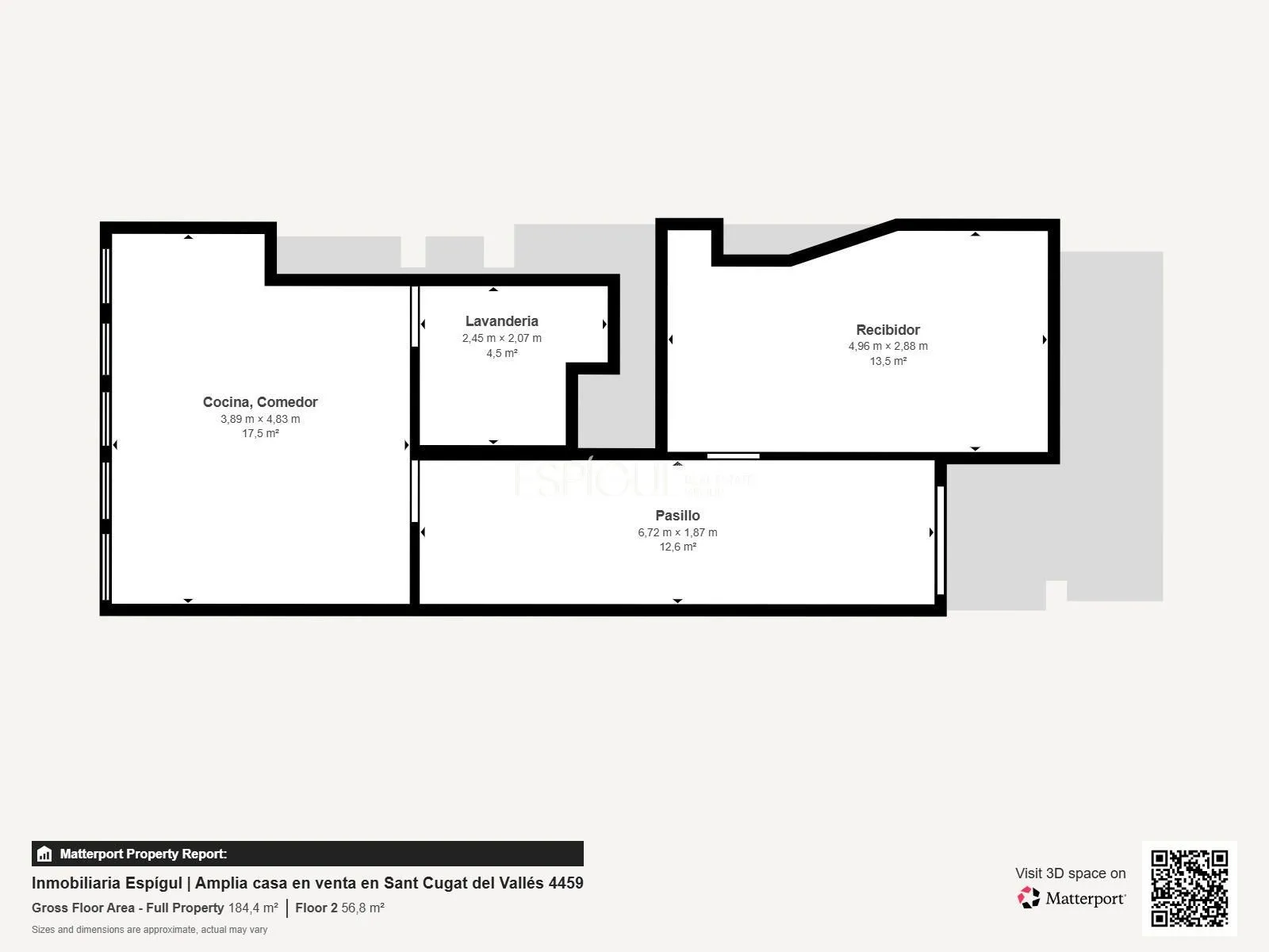
En la zona de día, encontramos una amplia cocina con office, completamente amueblada y equipada, con un luz natural increíbles y vistas a las copas de los árboles,  con acceso a un lavadero cerrado que también funciona como zona de plancha.

El salón comedor, con pavimento de parquet  y gres dispone de  grandes ventanales, ofrece una agradable conexión visual con el jardín.

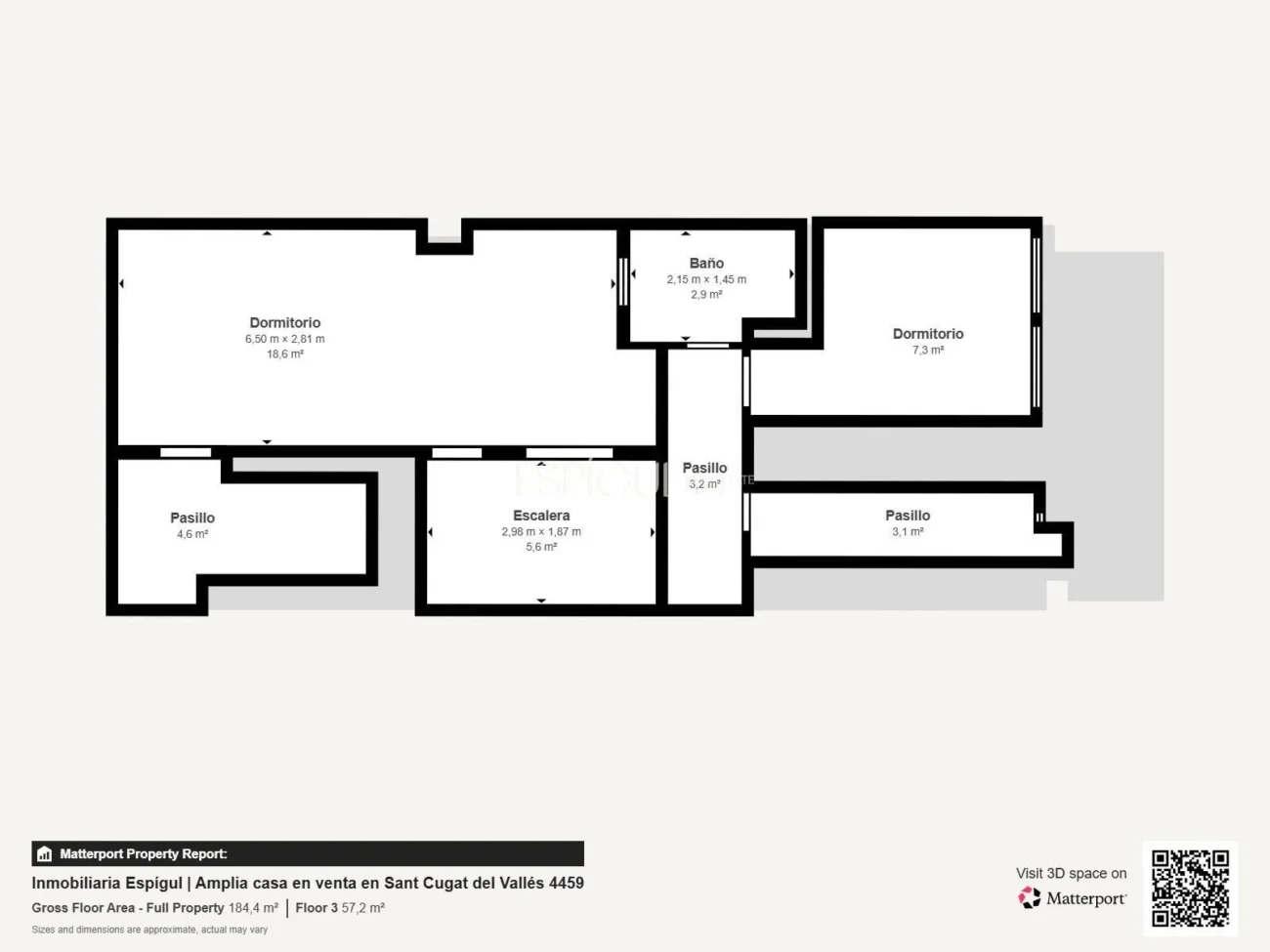
La zona de noche se distribuye en tres dormitorios (originalmente cuatro):
Una suite principal en la planta superior, con un amplio vestidor y baño privado.
Dos habitaciones individuales luminosas, ambas con armarios empotrados en la planta intermedia, 
Un baño completo adicional para dar servicio a estas estancias.
Los acabados combinan calidez y calidad: ventanas de madera con venecianas plegables y graduables, doble acristalamiento, puertas de madera maciza, pavimentos de gres y parquet en el salón, además de toldos que aportan confort térmico y privacidad.
Una vivienda con personalidad, perfecta para quienes buscan la tranquilidad de una zona residencial con la comodidad de estar junto al centro de Sant Cugat, rodeada de zonas verdes, colegios y servicios.
  • Construido 186 m2
  • Dormitorios 3
  • Baños 3
  • Calefacción Gas natural
  • Aire acondicionado
  • Certificación energética D

Ubicación de la propiedad

Ref 4459

¿Interesado/a?

Propiedades similares

Sant Cugat del Vallès

Casa adosada en venta en Parc Central

Superficie 200 m2
Dormitorios 4
Baños 3
Sant Cugat del Vallès

Casa adosada reformada en venta en Sant Domènec

Superficie 170 m2
Dormitorios 4
Baños 3
Sant Cugat del Vallès

Casa Adosada en venta en Eixample

Superficie 256 m2
Dormitorios 4
Baños 3
Llámanos WhatsApp Más información