Eixample, Sant Cugat del Vallès, Barcelona

Casa Adosada en venta en Eixample

1.290.000 €
256m2
4
3
D

Descripción de la propiedad

Espigul Real Estate Group presenta esta casa ubicada en una de las zonas más solicitadas de Sant Cugat, esta elegante casa adosada ofrece confort, amplitud y una ubicación privilegiada. A tan solo 5 minutos a pie de ESADE, 10 minutos de la European International School of Barcelona y 11 minutos de la estación FGC Sant Cugat, disfrutarás de una excelente conexión con el centro y con Barcelona.

Con 299 m² construidos, la vivienda se distribuye en varias plantas cuidadosamente diseñadas:

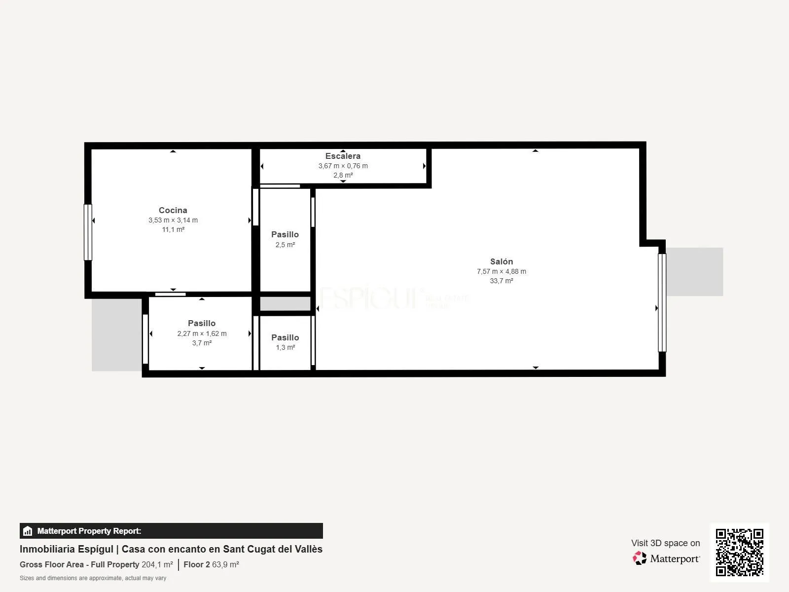
Planta principal : 

  • Recibidor 
  • Aseo de cortesía 
  • Cocina amplia con office  moderna con acabados de alta calidad 
  • Comedor-salón,
  • jardín privado orientado al sur, ideal para disfrutar del aire libre.

Primera planta:

  • Compuesta por la suite principal con baño privado
  • Terraza independiente 
  • 2 dormitorios individuales de gran tamaño 
  • Baño completo.

Segunda planta:

  • Espaciosa sala polivalente – Convertible en una sala polivalente o una amplia suite con vestidor con posibilidad de añadir un baño 
  • Terraza solarium con vistas al jardín 

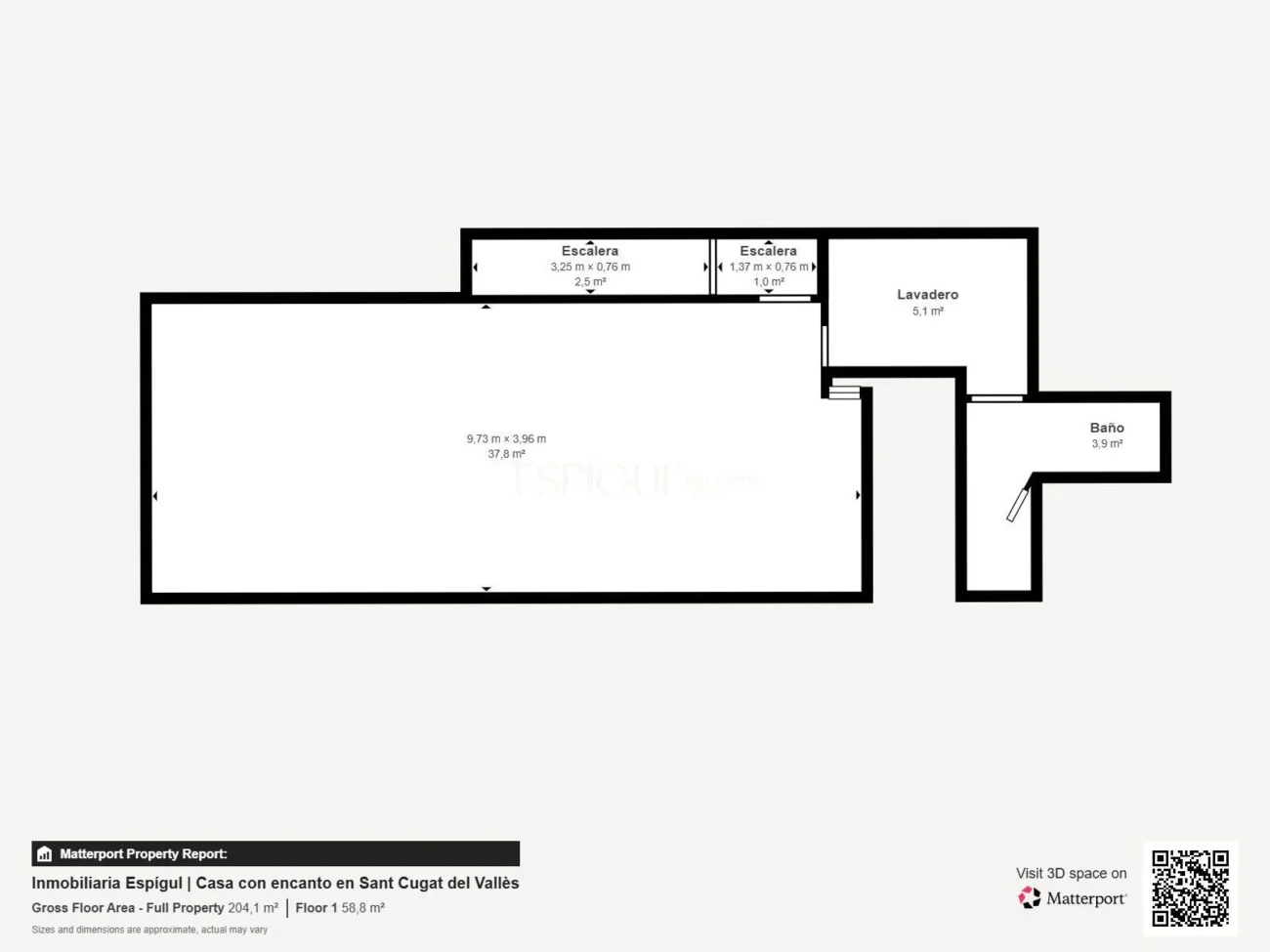
Planta Sótano:

  • Garaje privado con capacidad para 2 coches y bicicletas, 
  • Lavadero independiente
  • Habitación de servicio
  • Aseo.

Detalles destacados:

  • Armarios empotrados en todas las estancias
  • Calefacción por gas natural y aire acondicionado
  • Ventanas doble cristal 
  • Suelos de parquet
  • Jardín privado de 43 m² con zona comedor y barbacoa
  • Orientación sur
  • Disponibilidad inmediata

Ubicación:

Situada en un barrio residencial consolidado, con todos los servicios a pocos pasos: supermercados, farmacia, cafeterías y parques infantiles.

Excelente comunicación con Barcelona a través de la Arrabassada, los Túneles de Vallvidrera y la AP-7.

Ideal para familias internacionales y profesionales que buscan calidad de vida, comodidad y cercanía a las principales escuelas y servicios.

Contacta con nosotros para concertar una visita !

  • Construido 256 m2
  • Dormitorios 4
  • Baños 3
  • Calefacción Gas natural
  • Aire acondicionado
  • Certificación energética D

Ubicación de la propiedad

Ref 4378

¿Interesado/a?

Propiedades similares

Sant Cugat del Vallès

Casa adosada en venta en el Parc Central

Superficie 186 m2
Dormitorios 3
Baños 3
Sant Cugat del Vallès

Casa adosada en venta en zona del Arxiu de Sant Cugat del Vallès

Superficie 188 m2
Dormitorios 4
Baños 3
Sant Cugat del Vallès

Exclusiva casa de diseño en venta en el golf de Sant Cugat

Superficie 488 m2
Dormitorios 6
Baños 4
Llámanos WhatsApp Más información