Sant Andreu de Llavaneres, Maresme

High-end Detached House in Sant Andreu De Llavaneres

1.390.000 €
476m2
5
4
A

Property description

Discover this elegant detached house, move-in ready, that combines contemporary design, top-quality materials, and maximum energy efficiency. A home designed to take care of the planet and, at the same time, help you save on your electricity and heating bills.

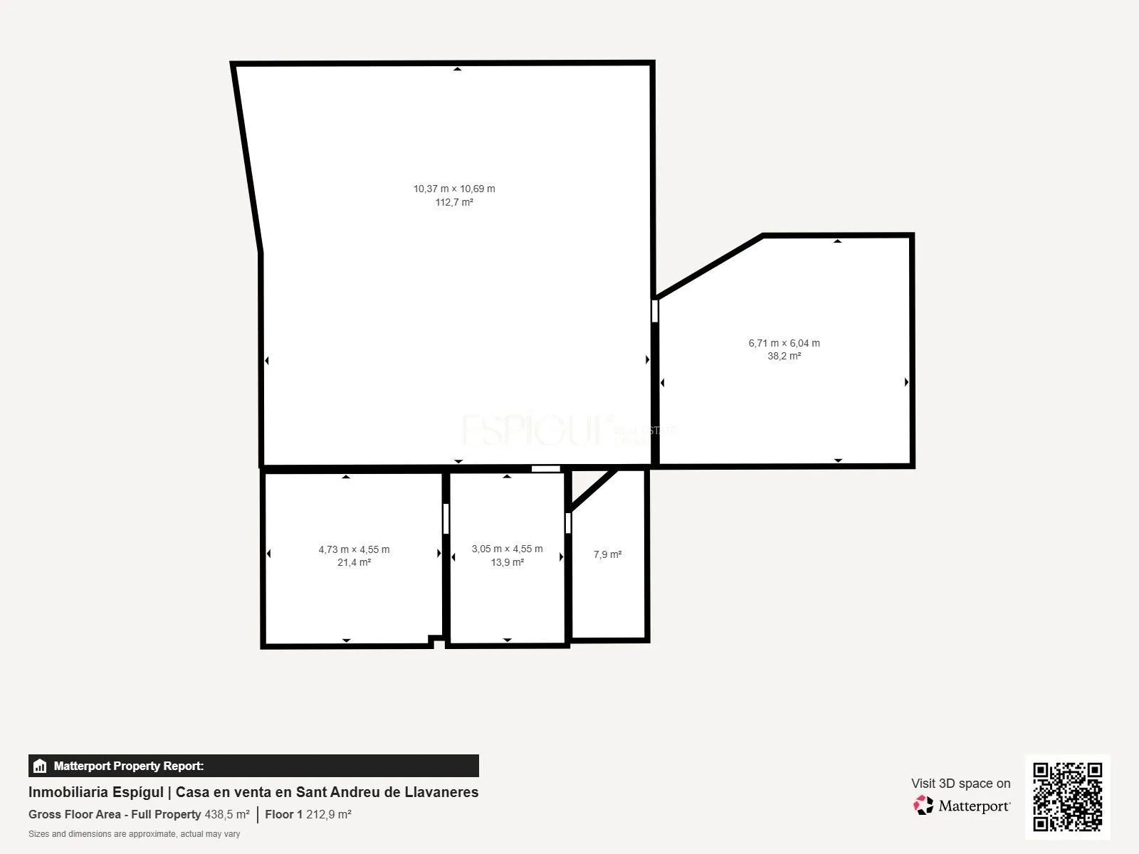
Located in one of the best areas of Sant Andreu de Llavaneres, just minutes from the beach and public transport, this property is distributed over three comfortable floors: basement, ground floor, and first floor.

The basement is a large multipurpose room ideal as a garage with capacity for five vehicles, a private gym, a games room, or a leisure space.

On the ground floor, we find a bright living-dining room with direct access to a large porch and the garden with a private pool, perfect for enjoying the sun and fresh air. The kitchen, fully equipped with AEG appliances (microwave, multifunction oven, ceramic hob, refrigerator, and integrated dishwasher), is integrated functionally and elegantly with the living area. In addition, there is a bedroom, a full bathroom, and a cozy hall.

On the first floor is the master suite, with a dressing room and private bathroom, along with three additional bedrooms and two full bathrooms, all with shower trays and PORCELANOSA furniture. The MITSUBISHI aerothermal air conditioning system guarantees maximum comfort throughout the year, with one outdoor unit and five indoor units (three ducted and two wall-mounted split units).

This home is not just a house, but a way of life. Its environment favors health, well-being, and tranquility. Enjoy the fresh air, proximity to the sea, and an exclusive atmosphere that combines nature, sports, and culture.

Sant Andreu de Llavaneres, in the heart of the Maresme region and only 36 km from Barcelona, offers a privileged lifestyle. With easy access by car, train, or bus, you can enjoy the best of the city without giving up the calm of the coast.

The town is known for its El Balís marina, the epicenter of nautical activities such as regattas, paddle surfing, rowing, snorkeling, or diving. Golf lovers will find their place at the prestigious Sant Andreu de Llavaneres Golf Club, with unique panoramic views.

And if you prefer traditional charm, the old town will surprise you with its modernist architecture, its Gothic church, and its parks and historic farmhouses surrounded by nature.

Its Mediterranean gastronomy, vibrant summers, and mild winters make Llavaneres a perfect place to live all year round.

Come and discover it. This house has it all: location, quality, design, and quality of life. A unique opportunity that you cannot miss.

  • Built 476 m2
  • Bedrooms 5
  • Bathrooms 4
  • Heating Aerotermia
  • Air conditioning
  • Energy certification A

Property location

Ref 4403

Interested?

Similar properties

Maresme

Spectacular House with Sea Views in Arenys De Mar

Surface 345 m2
Bedrooms 4
Bathrooms 4
Tiana

Detached House in Tiana: Brightness and Comfort on a Single Floor

Surface 220 m2
Bedrooms 4
Bathrooms 2
Cabrils

Spectacular Detached House with a Large Outdoor Area and Sea Views.

Surface 350 m2
Bedrooms 5
Bathrooms 3