Propietat única a Sant Feliu de Guíxols
Descripció de la propietat
A Sant Feliu de Guíxols es troba una propietat veritablement singular, amb un encant especial i un munt de possibilitats. Es tracta d’un immoble per reformar que combina elements arquitectònics d’una antiga casa colonial amb els amplis espais del que va ser una fàbrica, cosa que li confereix una personalitat única i un gran potencial.
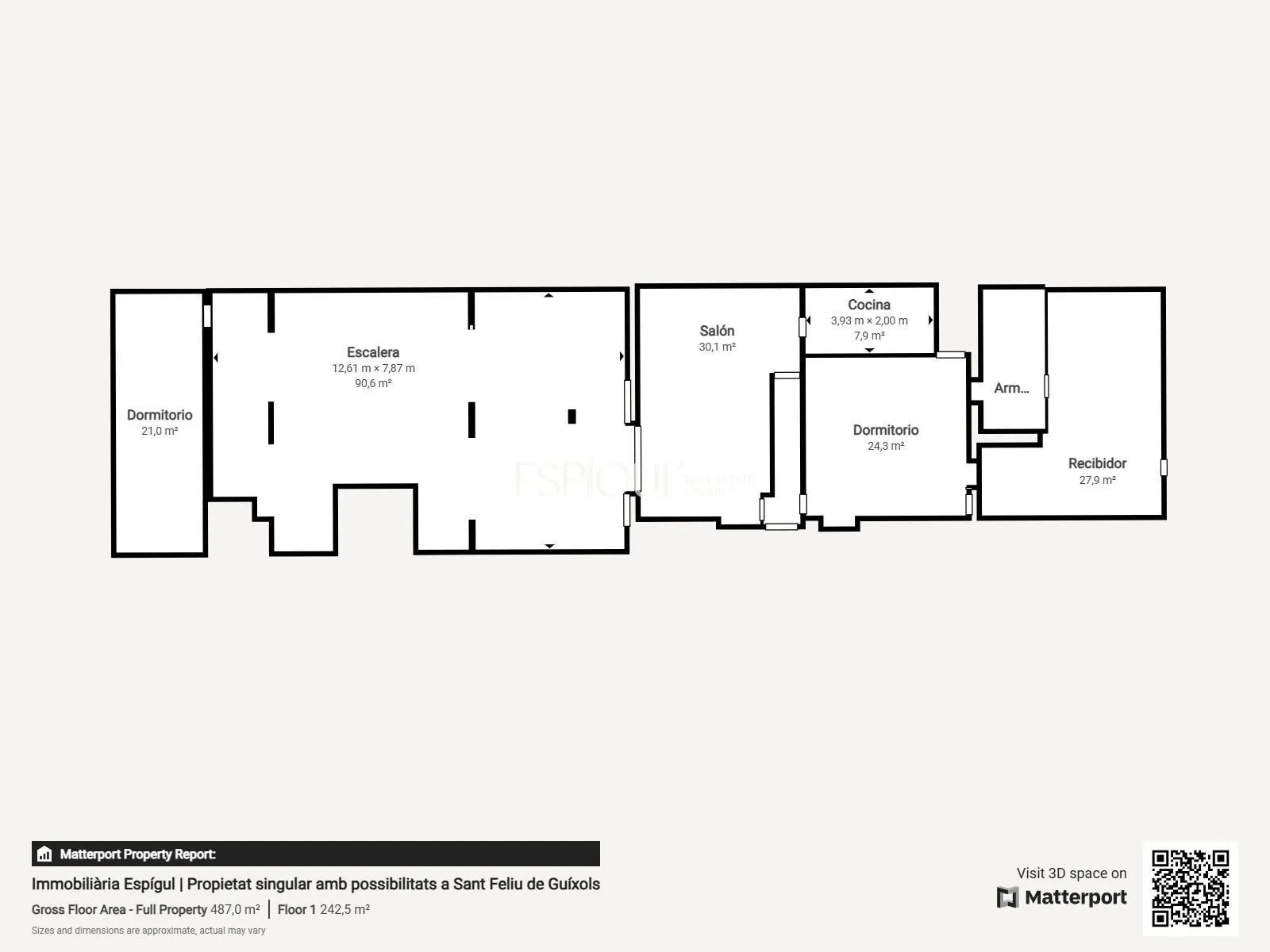
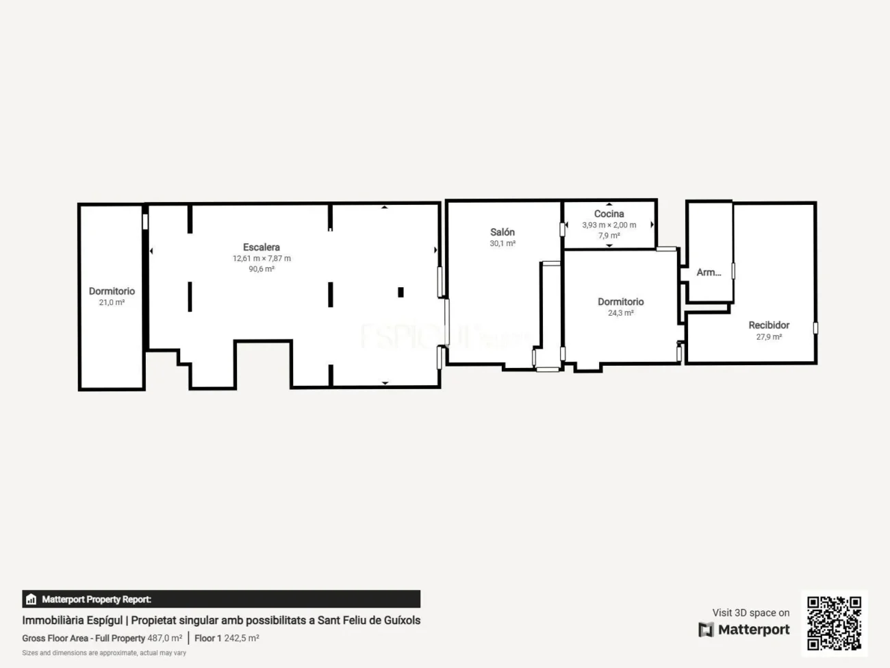
La propietat ocupa una parcel·la de 1.044 m² i té construïts uns 600 m². La seva arquitectura conserva detalls originals com sostres alts, bigues de fusta i grans finestrals, que omplen els espais de llum natural i creen un ambient acollidor i versàtil, perfecte per donar forma a qualsevol tipus de projecte, sempre dins dels paràmetres urbanístics vigents.
Des del seu interior es gaudeix de vistes agradables al jardí i a les muntanyes que envolten la zona, en un entorn tranquil però molt ben situat: a només cinc minuts caminant del centre del poble i molt a prop de les espectaculars cales i platges de la Costa Brava. A més, està propera a serveis d’alt nivell com un club nàutic, camps de golf i una variada oferta gastronòmica.
Un dels grans avantatges d’aquesta finca és que, en comptar amb dues referències cadastrals en una sola propietat, permet construir fins a 2.034 m². Això obre la porta a múltiples opcions: des d’una residència privada de luxe, fins a projectes d’habitatge compartit, allotjament per a persones grans, hotel boutique, espais de coworking o qualsevol iniciativa que necessiti un lloc amb caràcter i personalitat.
En definitiva, aquesta propietat no és simplement una casa: és una oportunitat única per crear alguna cosa extraordinària en una de les zones més atractives de la Costa Brava.
- Construïts 600 m2
- Habitacions 12
- Calefacció Eléctrica
- Certificació energètica G
Ubicació de la propietat
Ref 4053
T’interessa?
Propietats similars
Obra nova a S’Agaró. Vila de luxe aparellada
T’interessa? Programar una trucada
Si voleu més informació sobre aquesta propietat, si us plau, ompliu tots els camps del formulari
Si us plau, proporcioneu les vostres dades i un assessor es posarà en contacte amb vosaltres per proporcionar-vos més informació
Missatge enviat
Gràcies per posar-te en contacte amb Espígul
L’equip revisarà la teva sol·licitud i un assessor es posarà en contacte amb tu aviat