Pis en venda a Bellamar, Castelldefels
Descripció de la propietat
Espígul Real Estate Group té el plaer de presentar-vos aquest encantador immoble reformat situat a l’exclusiva urbanització de Bellamar, una de les zones més cobejades de Castelldefels. Envoltat de natura i amb excel·lent connexió al centre del poble, la platja i les principals vies d’accés, aquesta propietat ofereix tranquil·litat i desconnexió a pocs minuts de tot.
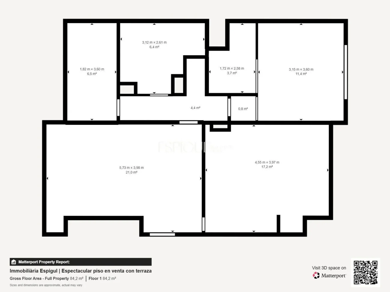
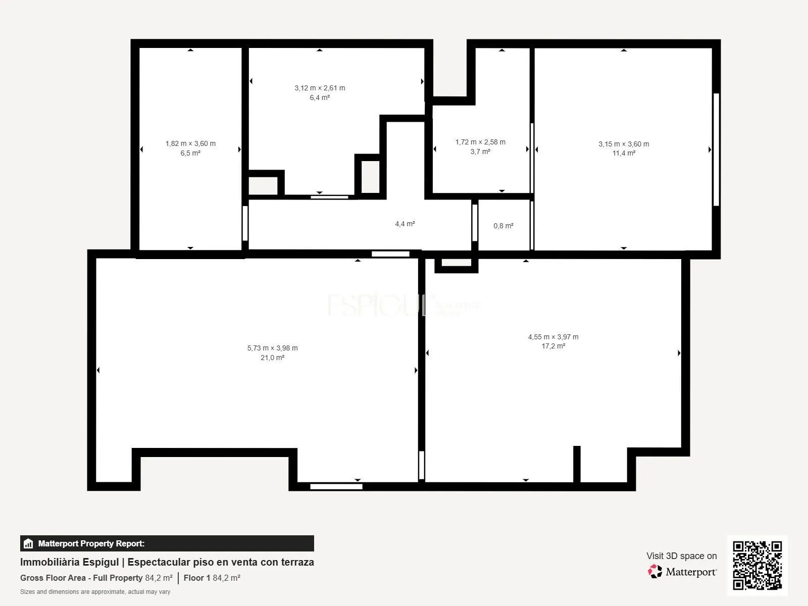
Amb una superfície de 124 m², aquest lluminós habitatge s’obre a una magnífica terrassa de 23 m² útils orientada al sud, ideal per relaxar-se contemplant el jardí, la piscina i una agradable panoràmica de l’entorn amb una bonica franja de mar al fons. El saló, acollidor i ple de llum, incorpora una llar de foc decorativa i es connecta directament amb la terrassa. La cuina i el menjador, integrats en un mateix ambient d’estil contemporani, estan completament equipats i apanellats per mantenir una estètica acurada i uniforme.
La zona de nit ofereix una distribució funcional i ben diferenciada: una elegant habitació principal amb bany en suite d’inspiració japonesa i accés directe a la terrassa; un dormitori individual amb llit abatible integrat en un armari a mida; i un tercer dormitori actualment habilitat com a ampli vestidor. Aquestes dues últimes estances comparteixen un bany complet, també reformat amb estil i funcionalitat.
La finca compta amb només vuit veïns i no disposa d’ascensor, la qual cosa aporta un ambient íntim i tranquil.
La zona comunitària és un dels grans atractius d’aquesta propietat: àmplies zones verdes amb piscina envoltada de vegetació, àrea de jocs infantils, esplanada de gespa natural, pista de tennis i un acollidor local social ideal per a celebracions i trobades.
Completen l’habitatge una plaça d’aparcament rotatòria i un traster per a més comoditat.
Una oportunitat única a Bellamar per a qui busca qualitat de vida en un entorn privilegiat, sense renunciar a la proximitat de tots els serveis.
Sol·licita la teva visita amb Espígul i deixa’t enamorar per aquest habitatge tan especial.
- Construïts 124 m2
- Habitacions 3
- Banys 2
- Calefacció Bomba de calor
- Aire condicionat
- Terrasses 23.00 m2
- Certificació energètica E
Ubicació de la propietat
T’interessa? Programar una trucada
Si voleu més informació sobre aquesta propietat, si us plau, ompliu tots els camps del formulari
Si us plau, proporcioneu les vostres dades i un assessor es posarà en contacte amb vosaltres per proporcionar-vos més informació
Missatge enviat
Gràcies per posar-te en contacte amb Espígul
L’equip revisarà la teva sol·licitud i un assessor es posarà en contacte amb tu aviat