Estudi a Sarrià de Ter – Obra nova
Descripció de la propietat
Et donem la benvinguda al Jardí de Sarrià, una nova promoció d’Espígul situada a Sarrià de Ter. Habitatges d’1, 2, 3 i 4 dormitoris amb una espectacular zona comunitària amb jardí i piscina.
Tots els pisos de 3 i 4 dormitoris disposen de jardí i/o terrassa privada de grans dimensions, oferint així una experiència encara més exclusiva als nostres clients. Compten amb acabats d’alta qualitat, seguint l’estàndard habitual d’Espígul, una de les promotores més reconegudes de Catalunya, amb més de 35 anys d’experiència en el sector de la construcció.
Les obres de construcció començaran a finals de 2025 i la previsió de lliurament és per a l’estiu de 2027. Durant el procés constructiu, es podran personalitzar els materials i s’oferiran millores per dotar al teu nou habitatge d’obra nova a Sarrià de Ter d’un nivell superior de confort i luxe.
Tant si busques una llar per viure-hi com si estàs pensant en una inversió a llarg termini, el Jardí de Sarrià és la teva millor opció. No dubtis a trucar-nos, escriure’ns un correu electrònic o contactar-nos a través de les xarxes socials per rebre més informació.
Grup Espígul: immobles únics, tracte exclusiu
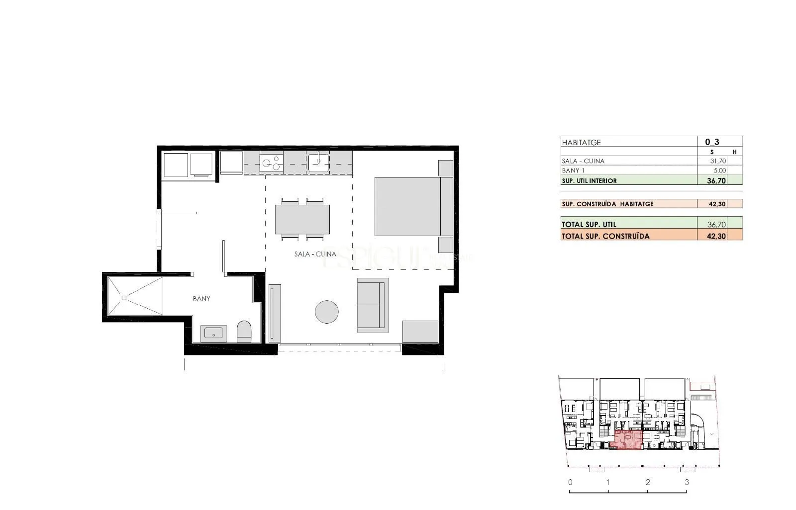
- Construïts 42 m2
- Habitacions 1
- Banys 1
- Calefacció Aerotermia
- Ascensor
- Certificació energètica B
Ubicació de la propietat
Propietats similars
T’interessa? Programar una trucada
Si voleu més informació sobre aquesta propietat, si us plau, ompliu tots els camps del formulari
Si us plau, proporcioneu les vostres dades i un assessor es posarà en contacte amb vosaltres per proporcionar-vos més informació
Missatge enviat
Gràcies per posar-te en contacte amb Espígul
L’equip revisarà la teva sol·licitud i un assessor es posarà en contacte amb tu aviat